GM Service Manual Online
For 1990-2009 cars only
Makes
🢒
Saturn
🢒
1998
🢒
SL2/SC2/SW2
🢒
Body and Accessories
🢒
Doors
🢒 Power Window Schematics
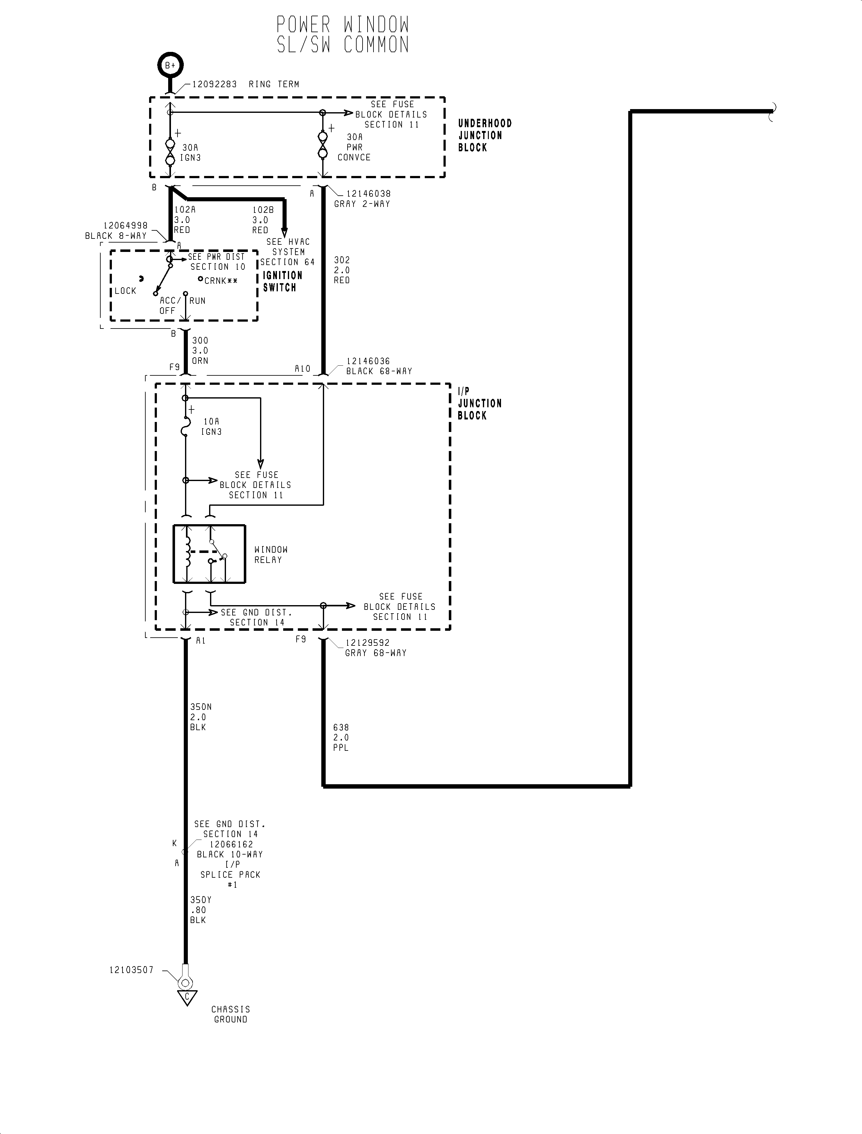
Figure
1:
Power Windows-Sedan and Wagon (1 of 2)
Figure
2:
Power Windows-Sedan and Wagon (2 of 2)
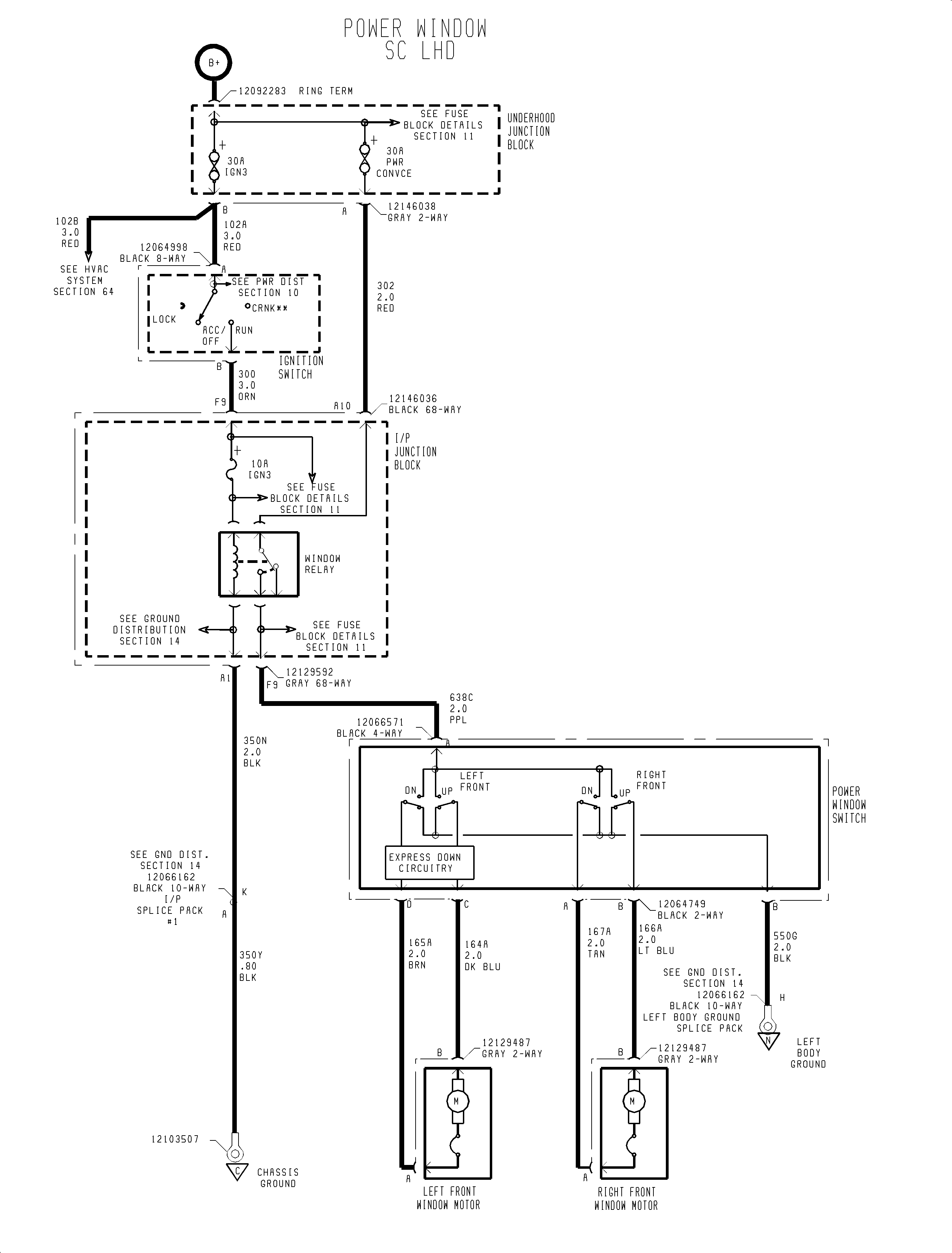
Figure
3:
Power Windows-Coupe