GM Service Manual Online
For 1990-2009 cars only

Frontal Supplemental Inflatable Restraint (SIR) Switch Kits

Subject:Frontal Supplemental Inflatable Restraints (SIR) Switch Kits -- Parts and Service Procedures -- Due to new regulation, this bulletin supersedes 97-T-33 which should be discarded. Retailers Should On Longer Use the Information Contained In 97-T-33. Instead, Use the Information Included With This Bulletin.

Models:1992-1998 Saturn vehicles



Purpose:

Never consider installing an airbag on off switch unless the following conditions are met:

  1. The customer presents a letter from the National Highway Traffic Safety Administration (NHTSA) Authorizing the Installation of the Air Bag ON-OFF Switch.
  2. Important: Make sure to get a photocopy of the customer's letter from the NHTSA and retain the photocopy in the CSO VIN jacket, stapled to the CSO Hardcopy.

  3. The retailer gives the customer a copy of the Notice to GM/Saturn Owners About Air Bag ON-OFF Switches. Refer to Retail Support Team Bulletin 97-SC-07.
  4. The customer still wants the Air Bag ON-OFF Switch installed.

This bulletin provides service information for the installation and removal of air bag ON-OFF switches to turn OFF and ON frontal supplemental inflatable restraints (SIR) (Air bags), along with switch and system diagnosis.

The National Highway Traffic Safety Administration (NHTSA) has given approval and direction for deactivating Frontal Supplemental Inflatable Restraints (SIR) systems in special situations. Within this approval, the method to deactivate the Frontal (SIR) modules (air bags) includes a switch(es) to turn the air bag(s) OFF and ON, and display to indicate SIR system deactivation status.

The air bag ON-OFF switch installation kit contains the necessary components (air bag ON-OFF switch, brackets, attaching hardware, display light, applique sheet for switch and light, tie straps and instruction sheets) for system operation. Each kit also contains an Owner's Handbook insert describing system operation for review by the owner.

The cost of the air bag ON-OFF switch kit and labor to install the switch kits are the responsibility of the customer. Suggested labor times for kit installation are included at the end of this bulletin.

Important: In rare instances, the installation of an air bag ON-OFF switch(es) may turn ON the vehicles AIR BAG warning light. This condition may exist due to the additional resistance of the switch harness when added to the SIR system. For further assistance, call the Saturn Technical Assistance Center at 1-800-828-2112, prompt 1.

The standard SIR System diagnosis can be made by disconnecting the air bag ON-OFF switch from the SIR wiring harness and following the directions for SIR system diagnosis found in the appropriate year SIR Service Manual.

A description of each of the installation kits major components is as follows:

Air Bag ON-OFF Switches:

Each air bag ON-OFF switch kit contains material for one air bag (driver or passenger). The air bag ON-OFF switches are key operated. When the air bag ON-OFF switch is in the OFF position, the air bag will remain OFF until the air bag ON-OFF switch is turned to the ON position. Turning the air bag ON-OFF switch to the ON position will allow the air bag to function.

Caution: To prevent personal injury, air bag ON-OFF switches must not be placed on any instrument panel surface directly in front of the driver's or passenger's leg or knee area.

The recommended location for air bag ON-OF switches on Saturn vehicles is in the instrument panel (glovebox) compartment assembly.

Display Light:

Each air bag ON-OFF switch requires a display light to indicate the ON or OFF status of the air bag. Each display light includes a harness to be connected to the air bag ON-OFF switch.

Caution: To prevent personal injury, air bag display lights must not be placed on any instrument panel surface directly in front of the driver's or passenger's leg or knee area.

The recommended location fro the display lights is at the center of the roof headliner (refer to the location illustration in this bulletin and the instruction sheet).

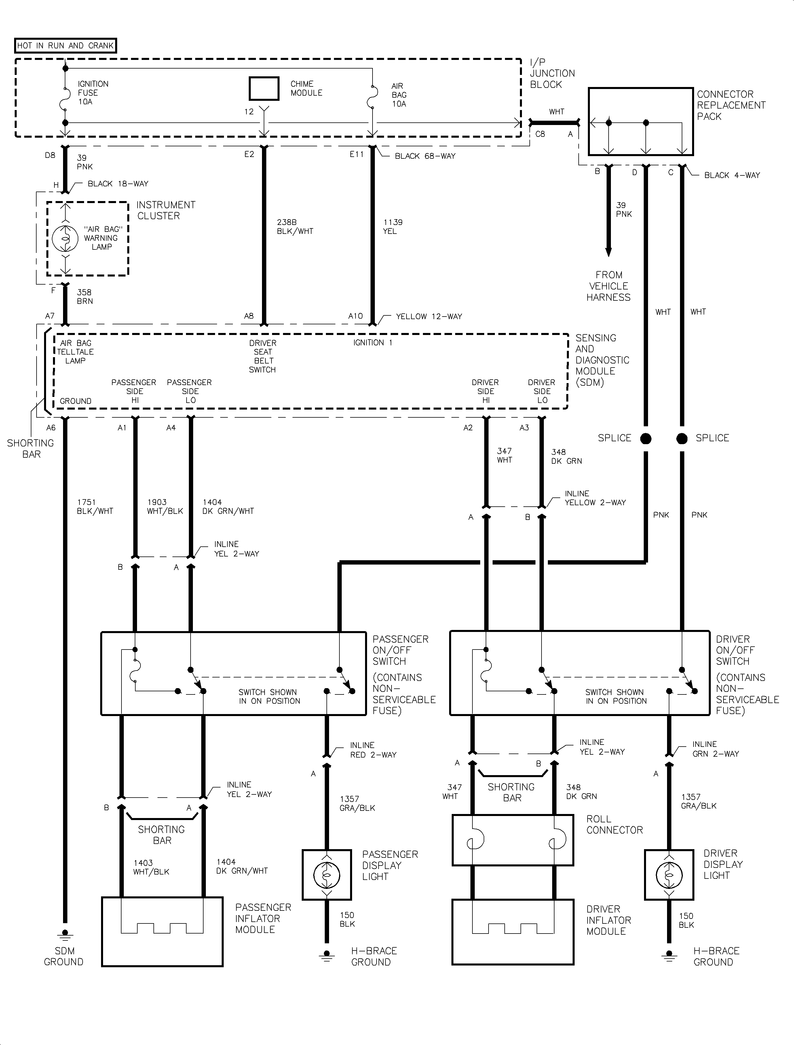
Wiring Connections:

The air bag ON-OFF switch will be connected in series with the yellow 2-way air bag connector. The air bag ON-OFF switch also requires ignition circuit, body ground, and display light connections.

Diagnostics for the switch and display light are included with this bulletin. Refer to the appropriate model year SIR service manual for SIR system diagnosis.

Parts Information

Order the appropriate installation kit(s) (driver's, passenger's or both) from SSPO. Parts information containing the air bag ON OFF switch kit part numbers is located at the end of this bulletin.

Warranty Information:

Air bag, ON-OFF switch kits and installation are NOT considered a warranty repair. Parts and labor charges are the responsibility of the customer.

Service Precautions:

Caution: Switches and telltale lights must not be mounted on any instrument panel surface directly in front of the driver or passenger seating areas. Instrument panel surfaces that may come in contact with knees or head must be kept free of switches and telltale lights.

Caution: As a system Pre-check, perform the following to verify the system operation. Staying well away from both air bags, turn the ignition switch to the run position. Verify that the air bag warning lamp flashes 7 times and then stays OFF. If the air bag warning lamp does not operate as described, perform the SIR Diagnostic System Check found in the SIR Service Manual.

The inflatable restraint sensing and diagnostic module or the diagnostic energy reserve module (Depending on the model year of the vehicle) Maintains a reserve energy supply. When the vehicle power is insufficient to cause deployment of the air bags, the reserve energy supply provides the deployment power. Deployment power is available for as long as 10 minutes after disconnecting the vehicle power by any of the following methods.

   • You turn OFF the ignition switch.
   • You remove the fuse that provides power to the inflatable restraint sensing and diagnostic module or diagnostic energy reserve module.
   • You disconnect the vehicle battery from the vehicle electrical system.

Service Procedure for Installation of Air Bag ON-OFF Switches


    Object Number: 880772  Size: SH
  1. Disconnect the negative battery cable.
  2. Turn the steering wheel so that the vehicle's wheels are pointing straight ahead.
  3. Turn the ignition switch to the LOCK position and remove the key.
  4. Remove the AIR BAG fuse from the I/P junction block (IPLB).
  5. Important: With the AIR BAG fuse removed and the ignition switch ON, the AIR BAG warning lamp will be ON. This is normal operation and does not indicate an SIR system malfunction.

  6. Remove the connector position assurance (CPA) device and disconnect the yellow 2-way connector located near the base of the steering column.

  7. Object Number: 878764  Size: SH
  8. For 1995 Sedans and 1995-1996 Coupes, remove the upper trim panel extensions by carefully lifting up at the clip locations, starting at the rear above the end cap.

  9. Object Number: 880473  Size: SH
  10. For all model years:
  11. 7.1. Remove the upper trim panel screw caps by carefully prying with a small flat-head screwdriver.
    7.2. Remove the upper trim panel screws.

    Important: Be careful not to damage the VIN plate when removing the upper trim panel.

    Be careful, when removing the upper trim panel, not to damage the upper trim panel seal.

  12. Lift the upper trim panel at the clip locations on the rear edge to disengage the clips.
  13. Disengage the forward edge of the upper trim panel by lifting upward at each outer corner, then pull rearward.
  14. Remove the upper trim panel.

  15. Object Number: 878759  Size: SH
  16. Remove the upper trim panel insulator (if equipped).

  17. Object Number: 880978  Size: SH
  18. Remove the connector position assurance (CPA) device and disconnect the yellow 2-way connector located on the pigtail from the passenger inflator module (if equipped).

  19. Object Number: 878799  Size: SH
  20. Remove the right and left IPJB access panels from the console.

  21. Object Number: 878923  Size: SH
  22. Remove the right side A-pillar garnish molding.

  23. Object Number: 879999  Size: SH
  24. Remove the I/P compartment assembly.

  25. Object Number: 878745  Size: SH

    Caution: To prevent personal injury, air bag ON-OFF switches must not be placed on any instrument panel surface directly in front of the driver's or passenger's leg or knee area.

    Important: On 1992-1994 model year vehicles, place the template on the inside of the I/P compartment.

  26. For 1992-1994 model year vehicles:

  27. Object Number: 879880  Size: SH
  28. Place the template, provided with the kit on the inside of the I/P compartment.
  29. Locate and drill two 5 mm (13/16 in) holes in the compartment upper front surface for air bag ON-OFF switch mount location.
  30. Locate and drill one 32 mm (1 ¼in) hole in the I/P compartment upper rear surface fro the air bag ON-OFF switch wiring.
  31. (1)-Template (2)-I/P compartment


    Object Number: 878776  Size: SH

    Important: On 1995-1998 model year vehicles, place I/P compartment facing down, position the template on the top surface of the I/P compartment, and mark the location of all air bag ON-OFF switch mounting and wire routing holes.

  32. For 1995-1998 model year vehicles:
  33. Place the I/P compartment face down and position the template provided with the kit on the top surface of the I/P compartment.
  34. (1) Template (2) I/P compartment

    Important: If only one air bag ON-OFF switch is to be installed, install the air bag ON-OFF switch on the left side of the I/P compartment to allow easy access for the driver of the vehicle.

  35. If installing only one air bag ON-OFF switch:
  36. • Locate and drill one 32 mm (1¼ in) hole in the I/P compartment upper rear surface for the sir bag ON-OFF switch wiring.
    • Locate and drill two 5 mm (13/16 in) holes in the I/P compartment upper rear surface for air bag ON-OFF switch mounting.
  37. If installing both air bag ON-OFF switches:
  38. • Locate and drill two 32 mm (1¼ in) hole in the I/P compartment upper rear surface for the wiring of air bag ON-OFF switches.
    • Locate and drill four 5 mm (13/16 in) holes in the I/P compartment upper rear surface for mounting of air bag ON-OFF switches.

    Object Number: 881394  Size: SH
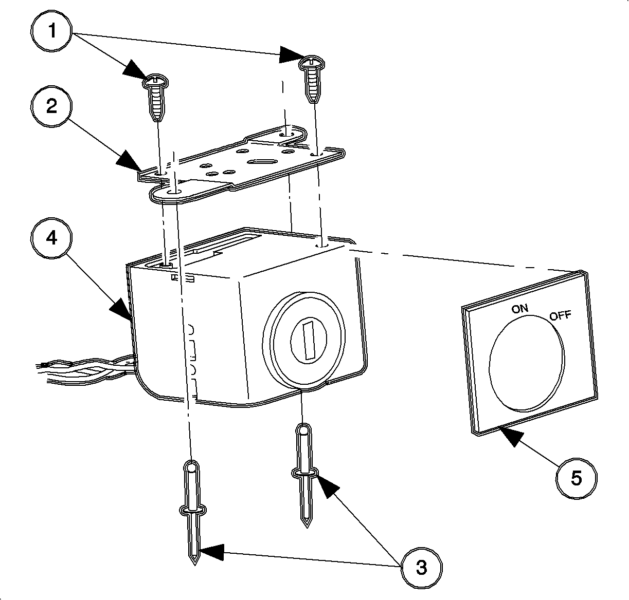
  39. Assemble the air bag ON-OFF switch (or switches) to the mounting brackets using 2 Phillips head screws fro each air bag ON-OFF switch.
  40. (1) Bracket screws (2) Switch bracket (3) Switch mounting rivets (4) Disable switch (5) Applique

  41. Apply the appropriate applique to the air bag ON-OFF switch.

  42. Object Number: 878794  Size: MH
  43. If installing only one air bag ON-OFF switch:
  44. • Route the air bag ON-OFF switch wiring harness through the hole in the glove box.
    • Secure the air bag ON-OFF switch to glove box with 2 pop rivets provided.
    • (1) Driver or Passenger Air Bag ON-OFF Switch.

    Object Number: 878745  Size: SH
  45. If installing both air bag ON-OFF switches:
  46. • Route the driver air bag ON-OFF switch (1) wiring harness through the hole in the left side of the glove box, and secure the air bag ON-OFF switch to the glove box with 2 pop rivets provided.
    • Route the passenger air bag ON-OFF switch (2) wiring harness through the hole in the right side of the glove box, and secure the air bag ON-OFF switch with 2 pop rivets provided.
    • (1) Driver Air Bag ON-OFF Switch
    • (2) Passenger Air Bag ON-OFF Switch

    Object Number: 879764  Size: SH

    Caution: To prevent personal injury, air bag display lights must not be placed on any instrument panel surfaces directly in front of the driver's or passenger's leg or knee area.

    Important: There is one air bag OFF display assembly for each air bag ON-OFF switch installed in the vehicle.

  47. With 2 screws provided in the kit, assemble the display assembly clip to air bag OFF display assembly.
  48. • On vehicles without a sunroof, the opening in the display assembly clip (1) faces toward the front (face) of the air bag OFF display assembly.
    • On vehicles with a sunroof, the opening in the display assembly clip (2) faces the rear of the air bag OFF display assembly.
  49. Apply the appropriate applique to the air bag OFF display assembly.
  50. If two air bag ON-OFF switches are being installed, repeat steps 18 and 19 for the second air bag OFF display assembly.

  51. Object Number: 879776  Size: MH
  52. On vehicles without a sunroof, attach the air bag OFF display assembly to the headliner as shown in the illustration.
  53. • If only one air bag OFF display assembly is used, center the air bag display assembly in the headliner.
    • If 2 air bag display assemblies are used, make sure to place the driver air bag OFF display assembly on the left (Driver's) side of the headliner. Center both air bag OFF display assemblies in the center of the headliner.

       Important: A driver air bag OFF display light must be visible from the driver's seat. A passenger air bag OFF display must be visible from both the driver's and passengers seat.


    Object Number: 879990  Size: SH
  54. On vehicles with a sunroof:
  55. • With a small screwdriver, remove the sunroof bezel.
    • Route the air bag OFF display assembly (or assemblies) wiring through the hole in the headliner towards the front of the vehicle.
    • Mount the air bag OFF display assembly (or assemblies) to the headliner immediately in front of the sunroof switch assembly (1).
       - If only one air bag OFF display assembly is used, center the air bag display assembly in the headliner
       - If 2 air bag display assemblies are used, make sure to place the driver air bag OFF display assembly on the left (Driver's) side of the headliner. Center both air bag OFF display assemblies in the center of the headliner.
    • Install the sunroof bezel by snapping it into place.

       Important: A driver air bag OFF display light must be visible from the driver's seat. A passenger air bag OFF display must be visible from both the driver's and passengers seat.


    Object Number: 879860  Size: SH
  56. Route the wiring from the air bag OFF display assembly (or assemblies) across the front of the headliner and tuck between the headliner and roof panel. Continue routing down the right A-pillar to the I/P compartment opening. To prevent rattling, tape the harness to the A-pillar.
  57. (1) Air Bag OFF Display Assembly (2) Tape (3 Right Side A-pillar Garnish Molding (4) Ground Terminal (5) Air Bag OFF Display Assembly, In-Line Connector

  58. Install the right side A-pillar garnish molding.

  59. Object Number: 878241  Size: SH
  60. Route the ground wire from the air bag OFF display assembly (or assemblies) under the I/P assembly to the H-brace in front of the console assembly.
  61. Locate the blower motor ground on the H-brace and remove the ground fastener.
  62. Attach the air bag OFF display assembly (or assemblies) ground wire ring terminal(s) to the H-brace along with the blower motor ground. Refer to the illustration.

  63. Object Number: 904055  Size: MF
  64. Connect the air bag OFF display assembly (or assemblies) connector(s). If more than one air bag ON-OFF switch is installed, make sure to connect the correct air bag OFF display assembly connector to the appropriate air bag ON-OFF switch assembly wiring connector.
  65. • The driver switch OFF display connector is green.
    • The passenger switch OFF display connector is red.

    Object Number: 879999  Size: SH
  66. Install the I/P compartment assembly.

  67. Object Number: 878745  Size: SH

    Important: Do not cut any air bag ON-OFF switch assembly wires, except for the pink power feed wire as instructed in the following steps. Make sure to loop and tie strap any excessive length of air bag ON-OFF switch assembly wiring harness.

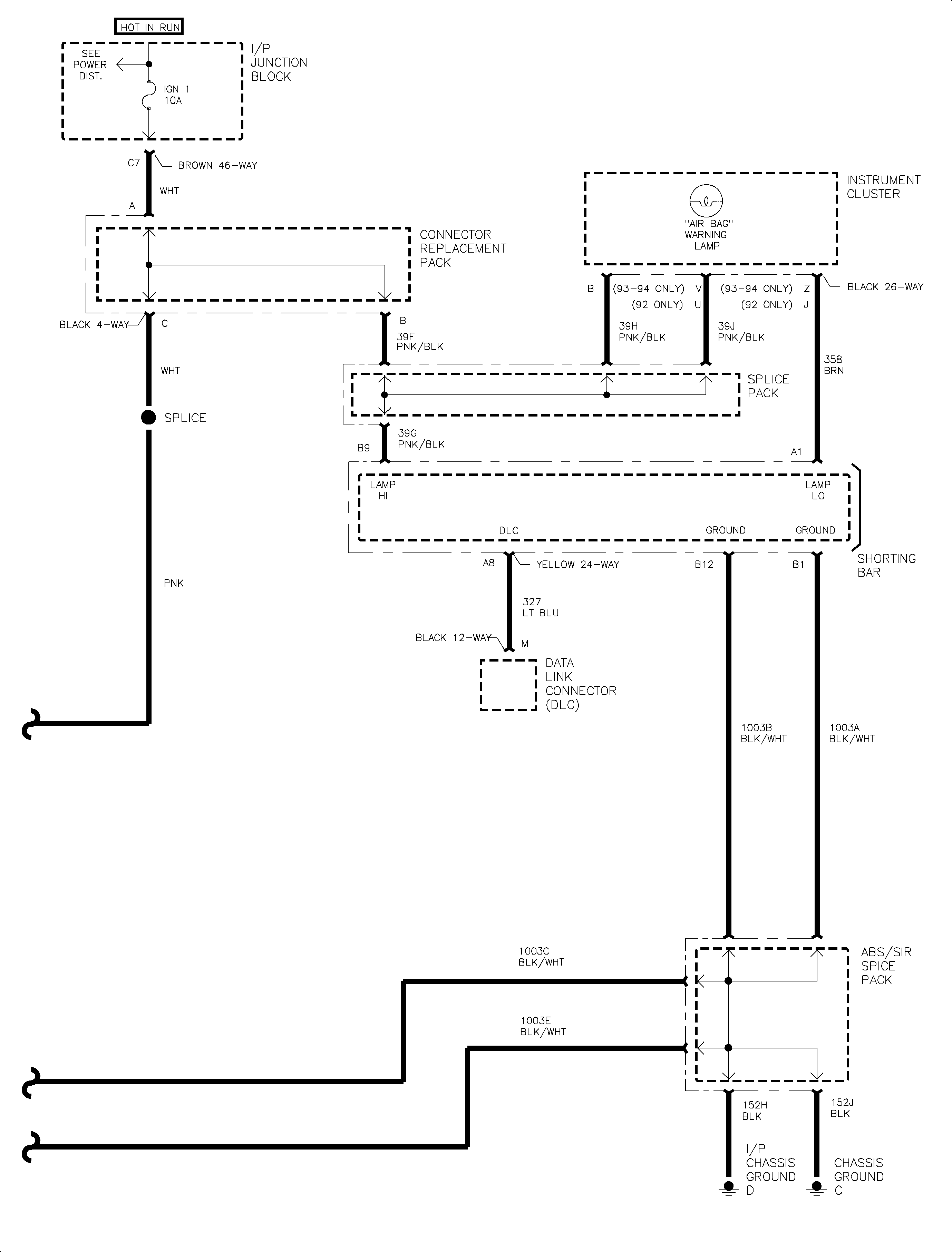
  68. Refer to the appropriate schematic in this bulletin.

  69. Object Number: 880113  Size: SH
  70. For 1992-1994 Vehicles:
  71. 41.1. Disconnect the brown 46-way connector from the instrument panel junction block (IPJB).
    41.2. Back out terminal for circuit 39 (ignition) from cavity C7.

    Object Number: 881346  Size: SH
  72. For 1995-1998 Vehicles:
  73. • Disconnect the black 68-way connector from the instrument panel junction block (IPJB).
    • Back out the terminal for circuit 39 (ignition) from cavity C8.

    Object Number: 881940  Size: SH
  74. Install the terminal backed out in step 43 or 44 (circuit 39) into cavity B of the connector replacement pack P/N 21024610 included in the kit.

  75. Object Number: 877958  Size: SH
  76. Loosen the defroster duct by removing the screws and unsnapping the duct from the mode valve assembly. The defroster duct should only be lifted enough to provide clearance to route the air bag ON-OFF switch wire harnesses.

  77. Object Number: 882484  Size: SH
  78. For driver's side air bag ON-OFF switch:
  79. • Route the yellow air bag ON-OFF switch wiring harness and pink wire over the HVAC module.
    • Continue to route the yellow air bag ON-OFF switch wiring harness along the I/P harness to steering column support brackets, down between the column support bracket to the base of the steering column.
  80. For passenger side air bag ON-OFF switch, route the pink wire from the air bag ON-OFF switch assembly over the HVAC module following the I/P harness, then down on the driver's side of the HVAC module to the IPJB.

  81. Object Number: 881938  Size: MF
  82. Cut the pink wire from the air bag ON-OFF switch assembly, between the switch and the in-line fuse. Cut the wire close to the in-line fuse to allow enough wire length to reach the connector replacement pack P/N 21024610. Discard the in-line fuse.
  83. If installing one air bag ON-OFF switch assembly:
  84. 48.1. Using a salmon crimp and seal connector, provided with the connector replacement pack P/N 21024610, splice the pink wire from the air bag ON-OFF switch assembly to the wire from cavity C of the connector replacement pack.
    48.2. Tape back the unused wire from cavity D of the connector replacement pack P/N 21024610.
    48.3. Proceed to step 52.
  85. If installing 2 air bag ON-OFF switch assemblies:
  86. 49.1. Using a salmon crimp and seal connector, provided with the connector replacement pack P/N 21024610, splice the pink wire from the air bag ON-OFF switch assembly to the wire from the driver's air bag ON-OFF switch assembly to the wire from cavity C of the connector replacement pack.
    49.2. Using a salmon crimp and seal connector, provided with the connector replacement pack P/N 21024610, splice the pink wire from the passenger's air bag ON-OFF switch assembly to the wire from cavity D of the connector replacement pack.
    49.3. Proceed to step 52.
  87. For 1992-1994 vehicles:
  88. 50.1. Install wire terminal from cavity A of the connector replacement pack P/N 21024610, into the IPJB brown 64-way connector at cavity C7.
    50.2. Install the brown 46-way connector to the IPJB.
  89. For 1995-1998 vehicles:
  90. 51.1. Install the wire terminal from cavity A of the connector replacement pack P/N 21024610, into the IPJB black 68-way connector at cavity C8.
    51.2. Install the black 68-way connector to IPJB.
  91. Secure the connector replacement pack P/N 21024610, and any excess wire length with tape to the I/P harness to prevent rattles.
  92. With the ignition switch OFF, turn the air bag switches to the OFF position.
  93. For driver's air bag ON-OFF switch assembly:
  94. 54.1. Using wire ties, secure the yellow disable switch wiring harness and pink wire to the I/P wire harness to ensure that the yellow switch wiring harness and/or pink wire are not subject to chafe or rattle.
    54.2. Connect the yellow 2-way connectors, from the air bag ON-OFF switch, in series to the driver's air bag connectors at the base of the steering column.
    54.3. Use the connector position assurance (CPA) devices to secure the connectors.
    54.4. Loop and secure the excess air bag ON-OFF switch wire harness with tape an/or tie straps to prevent rattle or chafing of the wire harness.
  95. For passenger's air bag ON-OFF switch assemblies:
  96. 55.1. Connect the yellow 2-way connectors, from the air bag ON-OFF switch, in series to the passenger's air bag connectors.
    55.2. Use the connector position assurance (CPA) devices to secure the connectors.
    55.3. Loop and secure the excess air bag ON-OFF switch wire harness with tape an/or tie straps to prevent rattle or chafing of the wire harness.
  97. Install the AIR BAG fuse into the IPJB.
  98. Connect the negative battery cable.
  99. Verify operation of the air bag ON-OFF switch(es) and air bag OFF display(s). Air bag OFF display(s) should light when the air bag ON-OFF switch(es) is turned to the OFF position. Air bag OFF display(s) should go OFF when the air bag ON-OFF switch(es) is turned to the ON position.
  100. • If the system is operating properly, proceed to the next step.
    • If the system is not operating properly, refer to SIR ON-OFF Switch Kit Symptoms Diagnosis in this bulletin. Once the system is operating properly, proceed to the next step.

    Object Number: 878799  Size: SH
  101. Install the right and left IPJB access panels.

  102. Object Number: 877962  Size: SH
  103. Install the defroster duct.

  104. Object Number: 878759  Size: SH

    Important: Make sure to tuck in all flaps.

  105. Install the upper trim panel insulator.

  106. Object Number: 881280  Size: SH

    Important: Be careful when removing or replacing the upper trim panel to prevent damage to the vehicle identification number (VIN) plate.

  107. Install the upper trim panel into the clips at the base of the windshield.
  108. Important: For Sedans and Wagons, make sure the upper trim panel seal is correctly seated on the forward edge before installing the upper trim panel.

  109. For Sedans and Wagons, lower panel, making sure the upper trim panel alignment tabs interlock with the windshield garnish slots.

  110. Object Number: 880473  Size: SH
  111. For all vehicles:
  112. 64.1. Push down at the clip locations to secure.
    64.2. Install and tighten the screws
    64.3. Install screw caps.

    Object Number: 878764  Size: SH
  113. For 1995 Sedans and 1995-1996 Coupes, install the upper trim panel extensions by pushing down at clip and dual lock locations.
  114. Make sure the customer received the owners manual insert.

Service Procedures for Removal of Air Bag ON-OFF Switches.


    Object Number: 880779  Size: SH
  1. Follow steps 1-4 of the Service Procedure for Installation of Air Bag ON-OFF Switches in this bulletin.
  2. Remove the connector position assurance devices from the 2 yellow 2-way connectors located near the base of the steering column and disconnect the connectors.
  3. Follow steps 6-7 of the Service Procedure for Installation of Air Bag ON-OFF Switches in this bulletin.
  4. Remove the connector position assurance devices from the 2 yellow 2-way connectors from the passenger air bag and disconnect the connectors.
  5. Follow steps 9-11 of the Service Procedure for Installation of Air Bag ON-OFF Switches in this bulletin.
  6. Disconnect the air bag OFF display connector(s) to air bag ON-OFF switch(es).
  7. For each air bag ON-OFF switch to be removed from the vehicle:
  8. 7.1. Cut the pink wire from the air bag ON-OFF switch to the white wire from the connector replacement pack.
    7.2. Tape the ends of the cut white wires.

    Object Number: 877958  Size: SH
  9. Loosen the defroster duct by removing the screws and unsnapping the duct from the mode valve assembly. The defroster duct should only be lifted enough to provide clearance to route the air bag ON-OFF switch wire harnesses.
  10. Remove the air bag ON-OFF switches and wiring harnesses from the vehicle.
  11. Remove the air bag OFF display assembly or assemblies.
  12. • On vehicles without a sunroof, remove the air bag OFF display assembly or assemblies and wiring harness from the headliner.
    • On vehicles with a sunroof, using a small screwdriver, remove the sunroof bezel, air bag OFF display assembly or assemblies and wiring harness. Then, reinstall the sunroof bezel by snapping it into place.

    Object Number: 1210241  Size: SH
  13. Remove the wiring for the air bag OFF display assembly or assemblies. Wiring runs across the front of the headliner, tucked between the headliner and roof panel, and continues down the right A-pillar to the I/P compartment opening.

  14. Object Number: 878241  Size: SH
  15. Remove the ground wire ring terminal from the H-brace at the blower motor ground. One ground wire ring terminal for each air bag ON-OFF switch.

  16. Object Number: 881346  Size: SH
  17. Reinstall the blower motor ground.

  18. Object Number: 878923  Size: SH
  19. Install the right side A-pillar garnish molding.

  20. Object Number: 879999  Size: SH
  21. Install the I/P compartment assembly. See also GRAPHIC SMVIS61417AB

  22. Object Number: 880978  Size: SH
  23. Connect the yellow 2-way passenger air bag connector to the yellow 2-way vehicle wiring harness connector. Install the connector position assurance (CPA) device.

  24. Object Number: 880772  Size: SH
  25. Connect the yellow 2-way driver air bag connector, at the base of the steering column, to the yellow 2-way vehicle wiring harness connector. Install the connector position assurance (CPA) device.
  26. Connect the negative battery cable.
  27. Install the AIR BAG fuse to the IPJB junction block.
  28. Refer to the appropriate model year SIR Service Manual and perform the SIR Diagnostic System Check to verify proper operation of the SIR system.

Wire Splicing

With the wiring used in the Saturn vehicles, it is recommended that approved Delphi Packard Electric Crimp and Seal Splice Sleeves, or equivalent, be used.

  1. Remove the insulation from both ends, recommended strip length is 9.5 mm (3/8 in). Caution must be used to prevent cutting the wire strands. Locate the new splice a minimum of 40 mm (1½ in) from an outlet or other splice.
  2. Determine the proper sleeve for the gage of wire. Position the stripped ends in the sleeve until the wires hit stop.
  3. Important: When using the salmon splice sleeve with 0.35 (22gage) wire, remove 19 mm (3/4 in) of insulation. Bend the stripped portion in half to double the thickness of the wire going into the splice sleeve. Twist the stripped, doubled wire and insert it into the splice sleeve.


    Object Number: 880456  Size: SH
  4. Hand crimp the sleeve using the approved crimping tool. Gently tug on the wires to ensure they are secure before applying heat to them.
  5. Caution: Do not use a match or open flame to apply heat to a splice sleeve.


    Object Number: 880444  Size: SH
  6. Apply heat using Ultratorchâ„¢ or equivalent, heating the splice sleeve to 175°C (347°F). Heat until the glue flows around the edges of the splice sleeve.
  7. Check for continuity in the wire.

 

Salmon

Blue

Yellow

Wire Size

0.35, 0.50, 0.80

1.0, 2.0

3.0, 5.0

Gage

22, 20, 18

16, 14

12, 10

Packard P/N*

12089189

12089190

12089190

Special Tools P/N**

217670

217671

271672

*Order through Packard at 1-800-PACKARD (1-800-722-5273)

**Order through Saturn special Tool Catalog. Included with Terminal Repair Kit (SA9138Z).

SIR Disable Switch Kit Symptom Diagnosis

Air Bag Light ON

Step

Action

Yes

No

1

    • Connect a Scan tool.
    • Are there any Driver or Passenger Loop DTCs set?

Go to step 2

Go to step 3

2

    • Record DTCs.
    • Ignition switch OFF.
    • Disconnect Disable switches from the vehicles wiring.
    • Enable the SIR system and clear DTCs.
    • Perform the SIR Diagnostic System Check
    • Do the DTCs reset?

Go to step 3

Go to step 4

3

Follow the service manual diagnostics for the model year of the vehicle.

-

-

4

Replace the Disable switch. Perform the SIR Diagnostic System Check.

-

-

Air Bag OFF Display Light ON with Switch in ON Position

Step

Action

Yes

No

1

    • Ignition switch OFF.
    • Disconnect the display assembly connector -- CKT 1357 from the switch.
    • Ignition ON. Is the display light still ON?

Go to step 2

Go to step 3

2

    • Repair the short-to-battery in circuit 1357.
    • Perform the SIR Diagnostic System Check

-

-

3

    • Replace the disable switch.
    • Perform the SIR Diagnostic System Check

-

-

Air Bag OFF Display Light OFF with Switch in OFF Position

Step

Action

Yes

No

1

    • Ignition switch OFF.
    • Check Ign 1 fuse.
    • Is fuse blown?

Go to step 2

Go to step 5

2

    • With the disable switch in the ON position, check for a short-to-ground in circuit 39.
    • Is circuit 39 grounded?

Go to step 4

Go to step 3

3

    • Disconnect the display light connector.
    • With the disable switch in the ON position. check for a sort-to-ground in circuit 1357 to the lay light.
    • Is circuit 1357 grounded?

Go to step 4

Go to step 10

4

    • Repair the short-to-to ground in circuit 1357.
    • Replace Ign 1 fuse.

-

--

5

    • With the disable switch in the OFF position, check for B+ at the display light connector.
    • Is B+ present?

Go to step 6

Go to step 7

6

    • Check display light ground circuit 150 connection at the H-brace.
    • Is th ground connection good?

Go to step 12

Go to step 8

7

    • Check disable switch circuit 39 connection to IPJB.
    • Is the circuit connection good?

Go to step 11

Go to step 9

8

Repair the ground circuit.

-

-

9

Repair the circuit 39 connection.

-

--

10

    • Replace the disable switch.
    • Replace the Ign 1 fuse.
    • perform the SIR Diagnostic System Check.

-

-

11

    • Replace the disable switch.
    • Perform the SIR Diagnostic System Check.

--

--

12

Replace the display light assembly.

--

--


Object Number: 1210247  Size: FP

Object Number: 1210249  Size: FP

Object Number: 1210252  Size: FP

Parts Requirements:

Disable Switch Kits

Part #

Description

Qty/Kit

Part OF 2104747

Part OF 2104748

Serviced Separately

1ST Design Square Key Head Design 1992-1997 Interim

2104747

Switch Kit-Driver SIR Disable

2104748

Switch Kit-Passenger SIR Disable

N/A

Switch Asm -- Drvr

1

X

--

NO

N/A

Switch Asm -- Pass

1

--

X

NO

1240325

Dis[play Asm -- Drvr

1

X

--

YES

12450326

Display Asm -- Pass

1

--

X

YES

12453799

Applique -- Drvr Display

1

X

--

YES

12453800

Applique -- Pass Display

1

--

X

YES

N/A

Bracket -- Switch Mounting

1

X

X

NO

10125439

ivet -- Switch Mounting

2

X

X

Yes

N/A

Screw -- Bracke to Switch

2

X

X

NO

N/A

Clip -- Display Asm

1

X

X

NO

N/A

Screw -- Clip to Display

2

X

X

NO

21020792

Tie Strap

8

X

X

YES

21024610

Connector Replacement Pack

1

X

x

YES

N/A

Instruction Sheet

1

X

X

NO

N/A

Owner's Manual Insert

1

X

X

NO

N/A

Template -- switch Mounting

1

X

X

NO

Disable Switch Kits

Part #

Description

Qty/Kit

Part OF2104749

Part OF 2104750

Serviced Separately

2ND Design Round Key Head Design 1997 Interim --1998

21024749

Switch Kit -- Driver SIR Disable

21024750

Switch Kit -- Passenger SIR Disable

N/A

Switch Asm --Drvr

1

X

--

NO

N/A

Switch Asm -- Pass

1

--

X

NO

12450325

Display Asm-- Drvr

1

--

X

YES

12450326

Display Asm-- Pass

1

X

--

YES

12453799

Applique-- Drvr Display

1

--

X

YES

12453800

Applioque-Pass Display

1

X

--

YES

N/A

Bracket-- Switch Mounting

1

X

X

NO

10125439

Rivet-Switch Mounting

2

X

X

YES

N/A

Screw-Bracket to Switch

2

X

X

NO

N/A

Clip -- Display Asm

1

X

X

NO

N/A

Screw -- Clip to Display

2

X

X

NO

21020792

Tie Strap

8

X

X

YES

21024610

Connector Replacement Pack

1

X

X

YES

N/A

Instruction Sheet

1

X

X

NO

N/A

Owner's Manual Insert

1

X

X

NO

N/A

Template -- witch Mounting

1

X

X

NO

Claim Information:

Important: This is a customer paid procedure and NOT a warranty repair. The recommended labor times required for installing an air bag ON-OFF switch kit are as follows:

--

Case Type

Description

Labor Operation Code

Time

--

CP

Install Driver Air Bag ON-OFF Switch Kit (1992-1994 vehicles)

T9778

1.7 hrs

--

CP

Install Driver Air Bag ON-OFF Switch Kit(1995-1998 vehicles)

T9778

1.6 hrs

--

CP

Install Passenger Air Bag ON-OFF Switch Kit (1995-1998 vehicles)

T9779

1.6 hrs

--

CP

Install Driver and Passenger Air Bag ON-OFF Kits (1995-1998 vehicles)

T9780

1.9 hrs

--

CP

Remove Driver Air Bag ON-OFF Kit (1992-1994 vehicles)

T9788

1.0 hrs

--

CP

Remove Driver Air Bag ON-OFF Kit (1995-1998 vehicles)

T9788

1.0 hrs

--

CP

Remove Passenger Air Bag ON-OFFKit (1995-1998 vehicles)

T9789

1.0 hrs

--

CP

Remove Driver and Passenger Air Bag ON-OFF Kits (1995-1998 vehicles)

T9790

1.1 hrs

Important: Make sure to:

   • Make a photocopy of the customer's letter from the NHTSA and retain the photocopy in the CSO VIN jacket, stapled to the CSO hardcopy.
   • That the NHTSA Form Installation of Air Bag ON-OFF Switches is completed and mailed to NHTSA at the address shown on the form.