GM Service Manual Online
For 1990-2009 cars only
Makes
🢒
Saturn
🢒
1999
🢒
SL2/SC2/SW2
🢒
Transmission/Transaxle
🢒
Automatic Transaxle - MP6/MP7
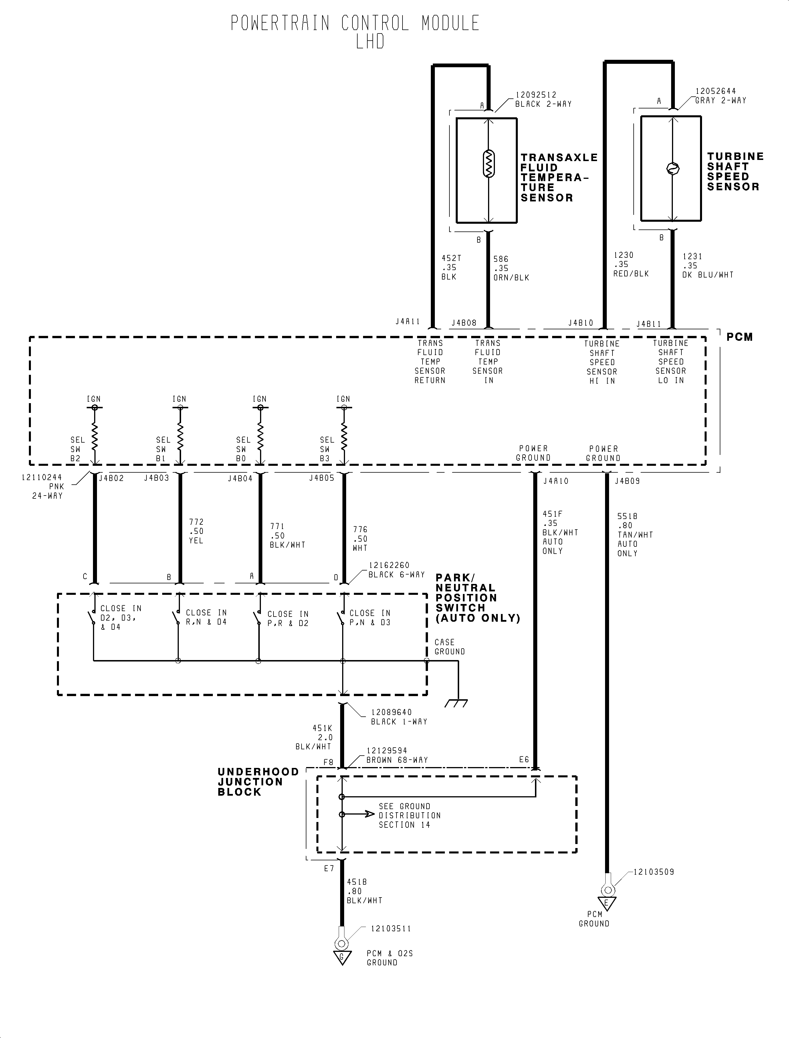
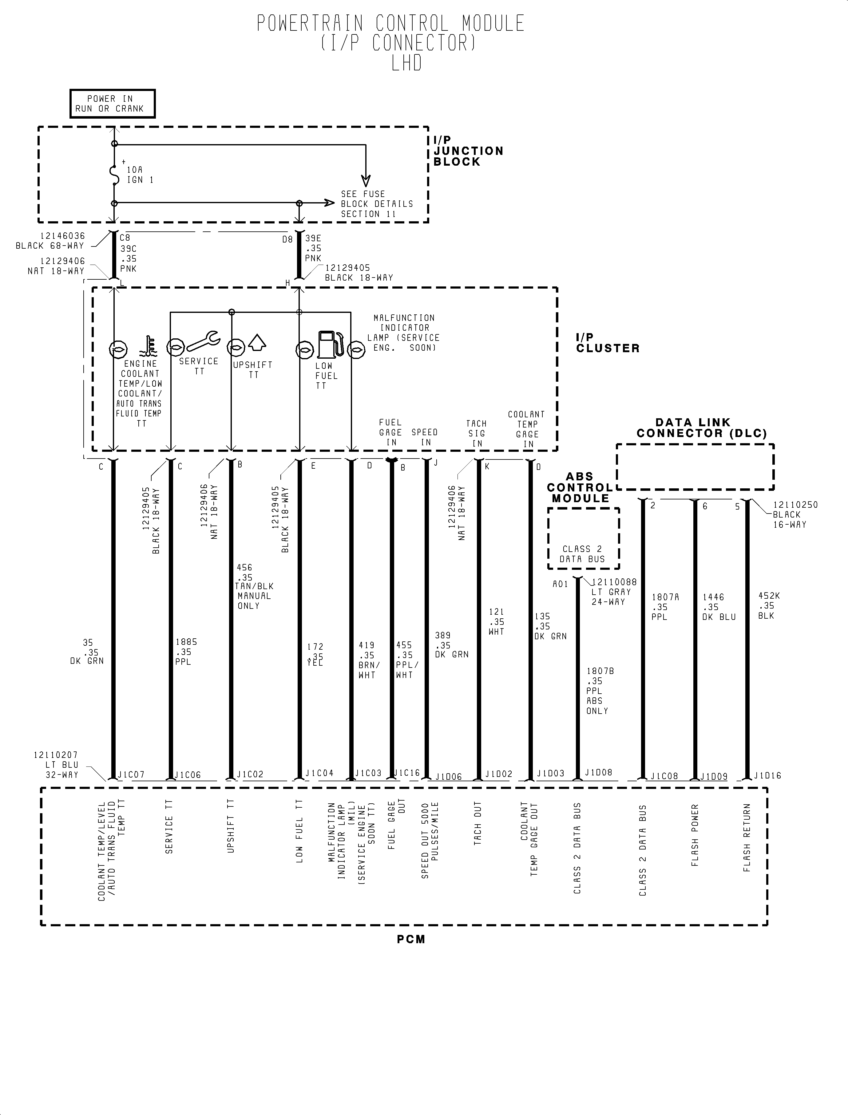
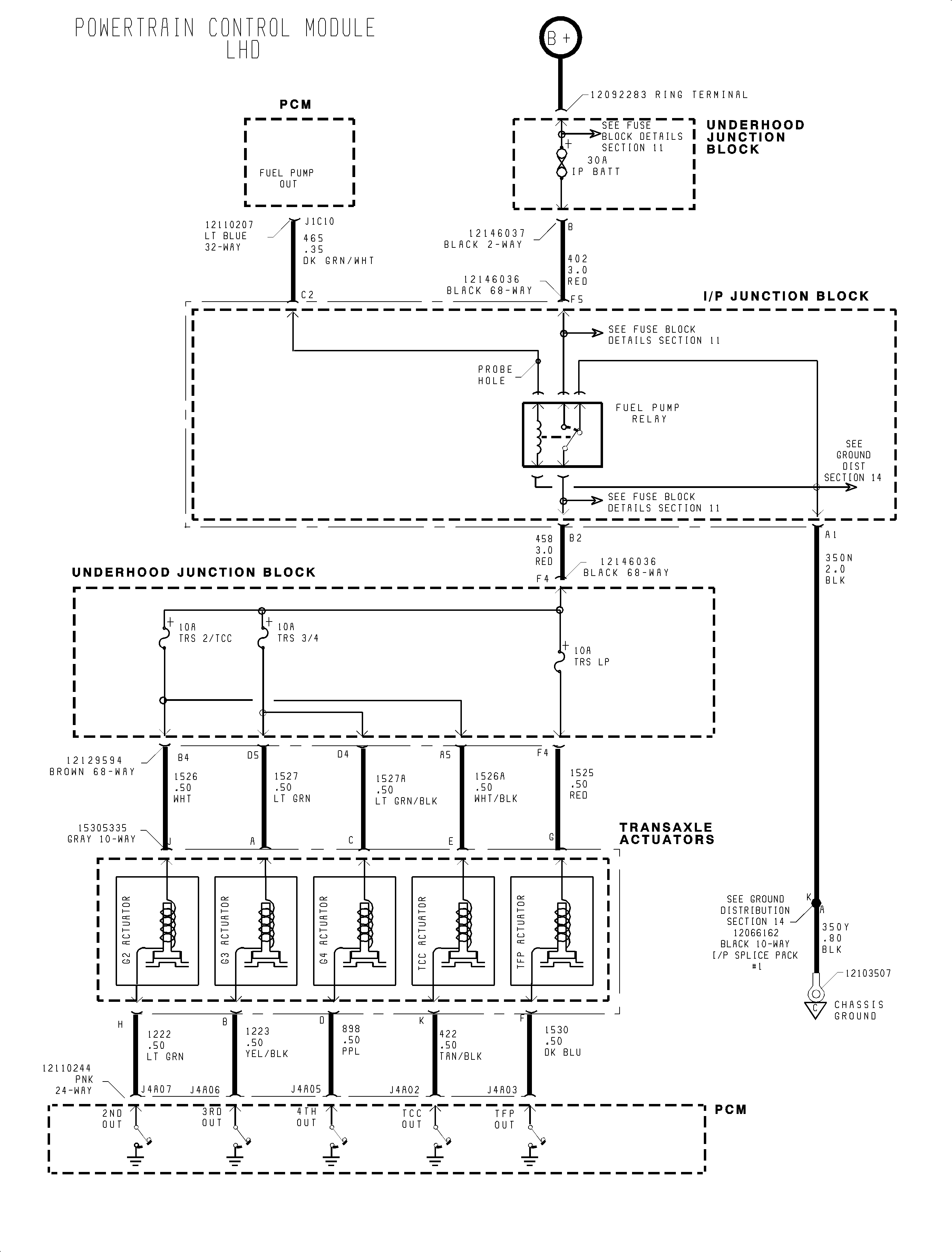
🢒 Automatic Transmission Controls Schematics
Figure
1:
1 of 3
Figure
2:
2 of 3
Figure
3:
3 of 3