GM Service Manual Online
For 1990-2009 cars only
Makes
🢒
Saturn
🢒
2009
🢒
VUE - AWD
🢒
Body Systems
🢒
Mirrors
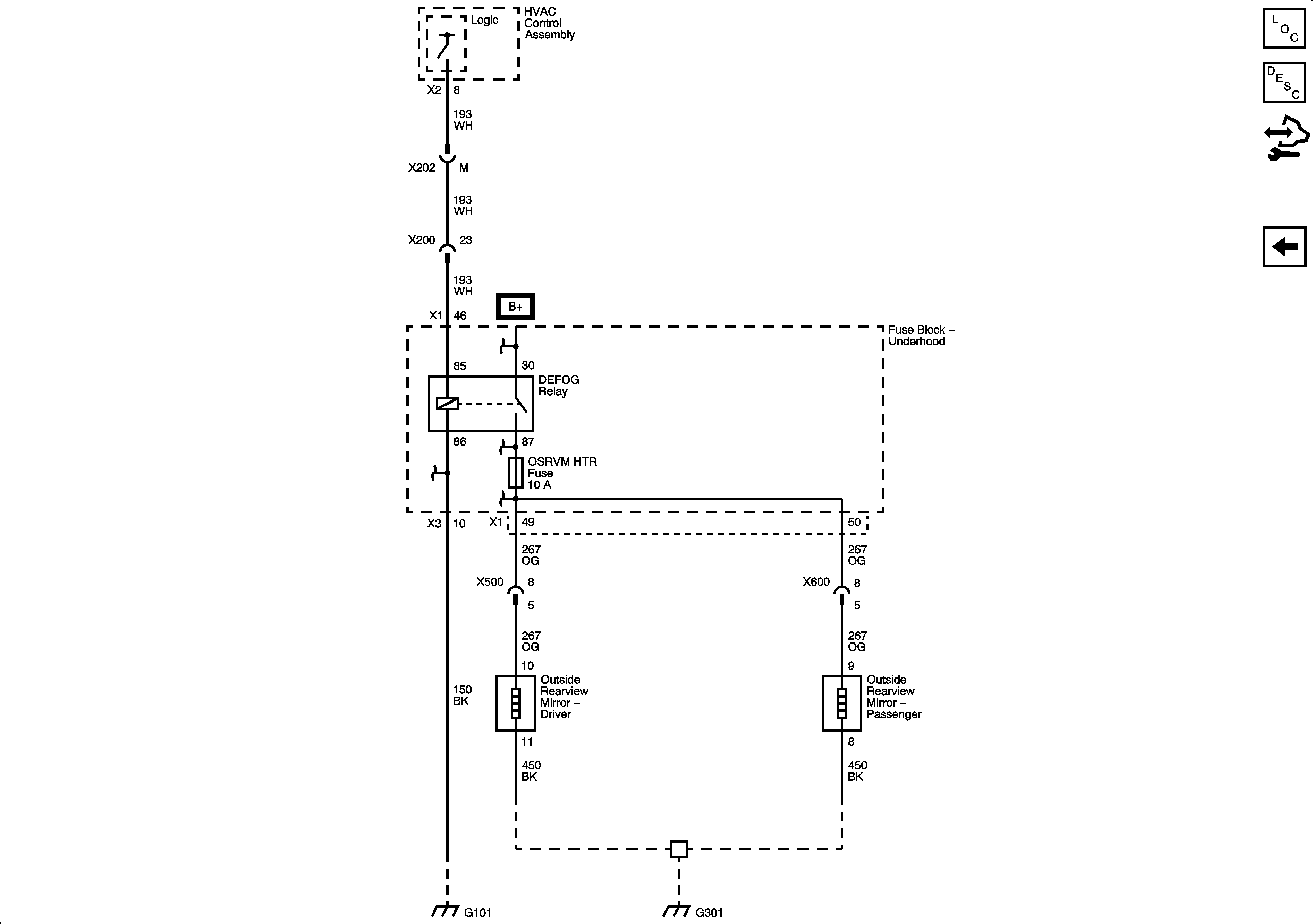
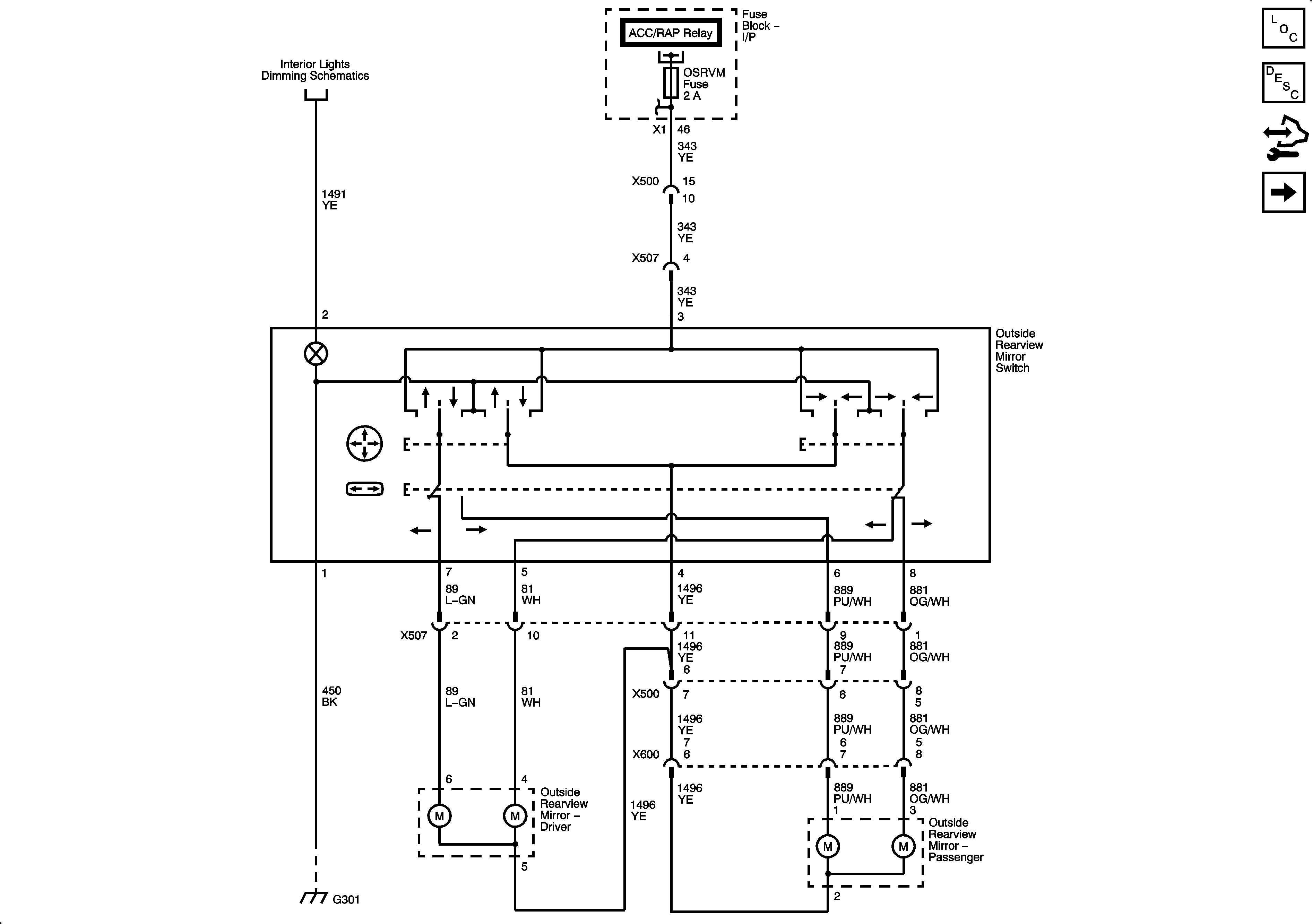
🢒 Outside Rearview Mirror Schematics
Figure
1:
Figure
2:
Outside Heated Mirror Schematics
Master Electrical Component List
Control Module References
Outside Rearview Mirror Schematics