GM Service Manual Online
For 1990-2009 cars only
Makes
🢒
Saturn
🢒
2009
🢒
VUE - AWD
🢒
Brakes
🢒
Hydraulic Brakes
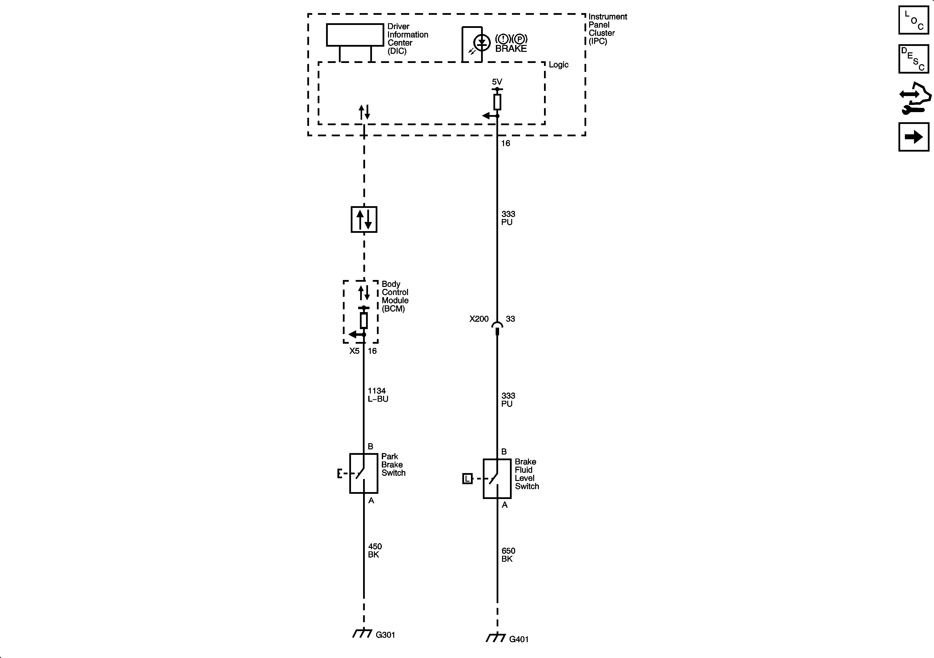
🢒 Hydraulic Brake Schematics
Figure
1:
Figure
2:
Hill Hold Valve (HP7) Brake Sensors
Master Electrical Component List
Control Module References
Hydraulic Brakes Schematics