GM Service Manual Online
For 1990-2009 cars only

Exchange Program - Limited Service Repair Program for the 5AT Automatic Transaxle Assembly (RPO MJ7/MJ8)

Subject:Exchange Program - Limited Service Repair Program for the 5AT Automatic Transaxle Assembly (RPO MJ7/MJ8)

Models:2004-2007 Saturn VUE Vehicles
with 5AT Automatic Transaxle Assembly (RPO MJ7/MJ8)

Attention: Fixed Operations Manager and Technician


This bulletin is being revised to add the 2007 model year. Please discard Corporate Bulletin Number 03-07-30-040B (Section 07 -- Transmission/Transaxle).


Purpose

The purpose of this bulletin is to outline the Limited Service Repair Program for 2004, 2005, 2006 and 2007 Saturn VUE vehicles equipped with the 5AT automatic transaxle assembly (RPO MJ7/MJ8) during the vehicle warranty period.

The Limited Service Repair Program will be used to provide quick and reliable product feedback that product engineering will use to identify and resolve product concerns.

5AT (RPO MJ7 OR MJ8) AUTOMATIC TRANSAXLE ASSEMBLY REPLACEMENT PROGRAM PROCESS OVERVIEW

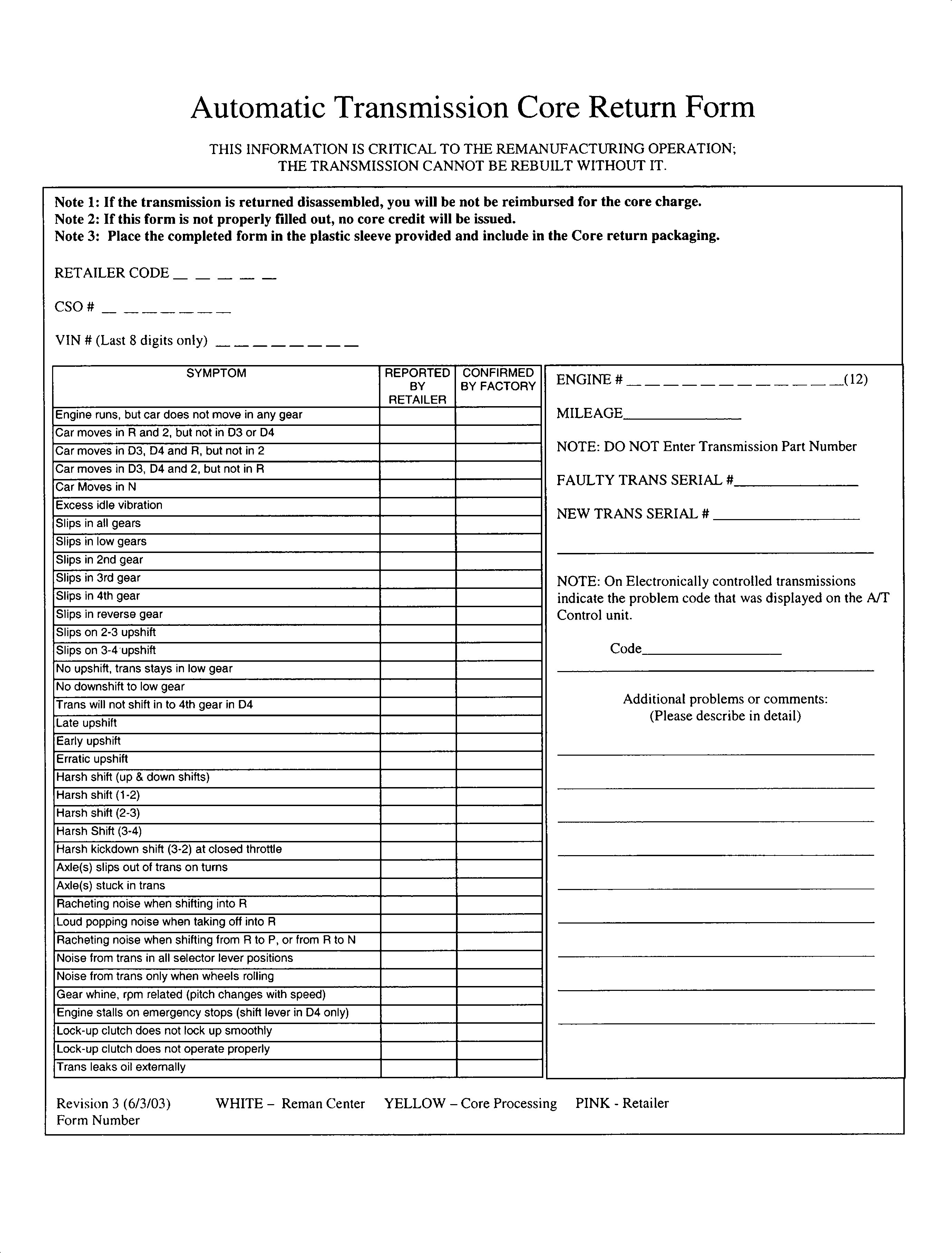
Important: Do not remove any unauthorized components from the transaxle. Do not remove/replace any unauthorized fasteners from the transaxle assembly as the fastener torque data may assist in determining the cause of the leak.

Important: To facilitate effective engineering analysis, do not disassemble the removed transaxle assembly or loosen any supporting fasteners. Also, be sure to completely fill out the Automatic Transmission Core Return Form before returning any parts to the SSPO Core Return Center (in Canada, use the normal core return process to return to your servicing PDC). Retailers will NOT receive credit for returned transaxle cores if the Automatic Transaxle Core Return Form has not been completed.

AUTHORIZED AUTOMATIC TRANSAXLE REPAIRS

The Limited Service Repair Program will be in place for the first 3 years/36,000 miles (in Canada, 3 years/60,000 kilometers) of the powertrain warranty. For repairs outside of the 3 years/36,000 miles (in Canada, 3 years/60,000 kilometers), all repair parts will be available. The RPO MJ7/MJ8 Automatic Transaxle Replacement Program will be administered through the GM Technical Assistance Center (TAC) in the United States and the SSPO Core Return Center. GM TAC can be contacted at 1-877-446-8227, prompt 3, from 8:00 a.m. - 5:00 p.m. (For Canadian vehicles, this program will be administered by the GM of Canada Technical Assistance Center at 1-800-263-7740 for English or 1-800-263-7960 for French; Monday through Friday from 6:30 a.m. - 8:00 p.m. EST.)

Important: All transaxle replacement requests must be reviewed with and approved by the Technical Assistance Center (TAC). Technicians should be prepared to discuss diagnostic information such as line pressures, complaint description information, and related diagnostic trouble code (DTC) information with a TAC engineer. The information captured in this process will enable TAC to provide engineering with product feedback.

Currently, authorized repairs on the RPO MJ7/MJ8 automatic transaxle assembly include all externally mounted or externally serviceable components identified in the illustrations provided in this bulletin. If, for any reason, the repair requires the separation of the case halves (gears, bearings, clutch assemblies, case, housing, valve body, or any internal valve body control component), the RPO MJ7/MJ8 automatic transaxle assembly must be replaced with a remanufactured assembly.


Object Number: 1357165  Size: LF

5AT (MJ7/MJ8) TRANSAXLE ON-VEHICLE REPAIRS

1

Bolt/Screw-Automatic Transaxle Wiring Harness Connector

2

Harness Assembly-Automatic Transaxle Wiring (includes 003)

3

Seal-Automatic Transaxle Wiring Connector

4

Seal-4th Clutch Pressure Switch (horizontal mounting in 2006-2007 VUE).

5

Switch Assembly-4th Clutch Pressure (For 2006-2007 production transaxles and transaxle/transaxle case replacements, a jumper wire + stay is installed or included in kit.)

6

Bolt/Screw-TCC Pressure Control Solenoid Valve

7

Valve Assembly-TCC Pressure Control Solenoid

8

Valve Kit-TCC Pressure Control Solenoid & Apply Solenoid

9

Seal-Fluid Pipe

10

Pipe-TCC Pressure Control Solenoid Valve Apply Fluid

11

Pipe-TCC Pressure Control Solenoid Valve Fluid Feed

12

Gasket-TCC Pressure Control Solenoid Valve

13

Pipe-TCC Pressure Control Solenoid Valve Fluid Drain

14

Pipe-Clutch Pressure Control Solenoid Valve Fluid

15

Pipe-Clutch Pressure Control Solenoid Valve Fluid

16

Bolt/Screw-Clutch Pressure Control Solenoid Valve

17

Bolt/Screw-Clutch Pressure Control Solenoid Valve

18

Valve Assembly-Clutch Pressure Control Solenoid

19

Pipe-Clutch Pressure Control Solenoid Valve Fluid Feed

20

Gasket-Clutch Pressure Control Solenoid Valve

21

Bolt/Screw-Automatic Transaxle Fluid Temperature Sensor

22

Sensor Assembly-Automatic Transaxle Fluid Temperature (includes 023)

23

Seal-Automatic Transaxle Fluid Temperature Sensor

25

Switch Assembly-3rd Clutch Pressure

26

Seal-3rd Clutch Pressure Switch

27

Seal-Automatic Transaxle Input Speed Sensor

28

Sensor Assembly-Automatic Transaxle Input Speed (includes 027)

29

Bolt/Screw-Automatic Transaxle Input Speed Sensor

30

Sensor Assembly-Automatic Transaxle Output Speed (includes 031)

31

Seal-Automatic Transaxle Output Speed Sensor

32

Bolt/Screw-Automatic Transaxle Output Speed Sensor

35

Indicator Assembly-Transaxle Fluid Level

36

Bolt/Screw-Transaxle Fluid Fill Tube

37

Tube Assembly-Transaxle Fluid Fill

38

Seal-Transaxle Fluid Fill Tube

39

Bolt/Screw-Engine Wiring Harness Bracket

40

Bracket-Engine Wiring Harness

41

Seal Assembly-Manual Shift Shaft

42

Switch Assembly-Park/Neutral Position (includes 043, 046)

43

Washer-Park/Neutral Position Switch

44

Bolt/Screw-Park/Neutral Position Switch

45

Lever Assembly-Automatic Transaxle Range Selector

46

Nut-Park/Neutral Position Switch

47

Washer-Automatic Transaxle Range Selector Lever

48

Washer-Automatic Transaxle Range Selector Lever

49

Nut-Automatic Transaxle Range Selector Lever

50

Seal-Transaxle Fluid Cooler Pipe Fitting

51

Bolt/Screw-Transaxle Fluid Cooler Pipe Bracket

52

Bracket-Transaxle Fluid Cooler Pipe

61

Fitting Assembly-Transaxle Fluid Cooler Pipe

63

Cover-Automatic Transaxle Range Selector Lever Link

64

Bolt/Screw-Automatic Transaxle Range Selector Lever Link Position Switch Shield

67

Plug-Automatic Transaxle Fluid Pressure Test Hole

78

Seal-Automatic Transaxle Fluid Pressure Test Hole Plug

79

Plug-Transaxle Fluid Fill

80

Washer-Transaxle Fluid Fill Plug

81

Stud-Automatic Transaxle Range Selector Lever Cable Bracket

82

Gasket-Clutch Pressure Control Solenoid Manifold

83

Pin-Clutch Pressure Control Solenoid Manifold Locating

84

Manifold-Clutch Pressure Control Solenoid

85

Bolt/Screw-Clutch Pressure Control Solenoid Manifold

86

Eye-Transaxle Lifting

87

Bolt/Screw-Transaxle Lifting Eye

88

Eye-Transaxle Lifting

89

Bolt/Screw-Transaxle Lifting Eye

93

Seal-Front Wheel Drive Shaft Oil

94

Bolt/Screw-Output Shaft Access Rear Cover

95

Cover-Output Shaft Access Rear

96

Seal-Output Shaft Access Rear Cover

97

Bolt/Screw-Main Shaft Case Cover Rear

98

Cover-Main Shaft Case Rear

99

Seal-Main Shaft Case Rear Cover

102

Plug-Reverse Idler Gear Access Hole

103

Seal-Reverse Idler Gear Access Hole Plug

104

Plug-Transaxle Fluid Drain

105

Washer-Transaxle Fluid Drain Plug

106

Bolt/Screw-Torque Converter Housing

108

Bracket-Automatic Transaxle Wiring Harness

111

Plug-Automatic Transaxle Case

112

Seal-Automatic Transaxle Case Plug

117

Seal-Front Wheel Drive Shaft Oil

118

Seal-Transfer Case Input Shaft

147

Plug-Automatic Transaxle Case

148

Seal-Automatic Transaxle Case Plug

464A

Seal-Shift Solenoid Valve

464B

Seal-Shift Solenoid Valve

465

Valve Assembly-C Shift Solenoid (includes 464A, 464B)

466

Valve Assembly-A Shift Solenoid (includes 464A, 464B)

467

Bolt/Screw-Shift Solenoid Valve

468

Valve Assembly-TCC Solenoid (includes 464A, 464B)

470

Valve Assembly-B Shift Solenoid (includes 464A, 464B)

FLUID LEAK(S)

  1. Verify the fluid leak is actually ATF oil. (Refer to "Leak Diagnosis" in Transaxle section of the 2004, 2005, 2006 or 2007 Saturn VUE Service Manual or SI.)
  2. Be sure to mark the exact location of the leak(s) on the transaxle assembly with a permanent marker or paint stick.

5AT (MJ7 AND MJ8) TRANSAXLE REPLACEMENT PROCEDURE

Refer to the 5AT (MJ7/MJ8) transaxle removal and installation procedures (SI Document ID #1412018) in the 2004, 2005, 2006 or 2007 Saturn VUE Service Manual.

Notice: Flush transaxle oil cooler and transaxle oil cooler lines before installing a new replacement transaxle assembly. Failure to properly flush the transaxle oil cooler and transaxle oil cooler lines may damage the new replacement transaxle assembly. Fill transaxle with Saturn/GM ATF Z-1 fluid, P/N 22717466.

SHIPPING PREPARATION

Important: Retail facilities that return a partially disassembled transaxle will be billed for all materials furnished.

  1. Place removed transaxle assembly into original shipping container. Ensure transaxle has been drained.
  2. Important: A return envelope and shipping instructions are included with replacement transaxles. If the envelope or the shipping instructions are lost, contact the Saturn Service Parts Assistance Center at 1-800-828-2112, prompt #2 (in Canada, contact the Technical Assistance Center).

  3. Place a copy of the service order and completed Automatic Transaxle Core Return Form in the return envelope and attach the envelope to the transaxle you will return to Saturn.
  4. Transaxle core part content should match service part transaxle content.
  5. Do not ship loose parts in the transaxle container. Disassembled components must be reattached to the transaxle core.
  6. Make sure that the Retailer return address and the TAC case numbers are clearly visible on the outside of the shipping container.

Important: Retailers will NOT receive credit for returned transaxle cores if the Automatic Transaxle Core Return Form has not been completed. (U.S. retailers, please refer to Parts and Accessories Bulletin 03-PA-02 for more information.) NO credit will be provided for incorrect, incomplete, or disassembled transaxle cores. Transaxle core damage caused as the result of collision, fire, flood, or misuse are not eligible to participate in this program.

SHIPPING INSTRUCTIONS

  1. Core returns are to be shipped to the SSPO Core Return Center in Spring Hill, TN (in Canada, use the normal core return process to return to your servicing PDC) upon completion of the repair. U.S. retailers, please refer to "Special Transactions" in the Saturn Parts Policies and Procedures Manual for an overview of the core return process.
  2. Using the Automatic Transaxle Core Return Form, completely fill in the following information: part description, core part, service part number, retailer code, CSO number, and the last eight (8) digits of the vehicle identification number (VIN). Transaxle cores received without a completed Automatic Transaxle Core Return Form will result in the loss of a $1200 core credit to the Saturn retailer. (U.S. retailers, please refer to Parts and Accessories Bulletin 03-PA-02 for additional information.)

Object Number: 1369925  Size: FP

FAULTY TRANSAXLE SERIAL NUMBER

In order to provide engineering with quick product feedback, the faulty transaxle serial number needs to be recorded on the automatic transaxle core return form. The transaxle serial number can provide valuable manufacturing and testing information for engineering the use during root cause investigation analysis. The transaxle serial number is located below the vehicle battery on the upper right-hand side of the transaxle case.

The transaxle serial number contains 11 characters. The first four (4) digits indicate transaxle type and the fifth (5) digit indicates model year usage. One (1) equals 2004, two (2) equals 2005, three (3) equals 2006, (4) equals 2007. Refer to the transaxle serial number below:

MDRA1000001

(M) Manufacturing Factory

(DRA) Transaxle Model Type (DRA is FWD / DPA is AWD)

(1) First model year of production for this transaxle type (2004 Saturn equals 1)

(2) (2005 Saturn equals 2)

Claim Information

To receive credit for any repairs during the warranty coverage period, submit a claim through the Saturn Dealer System, or if another procedure is performed, refer to the appropriate Electronic Labor Time Guide for the correct Labor Operation Code and Time.

Labor Operation

Description

K5220

LEVER, SHIFT CONTROL (AT TRANS)-REPLACE

K5228

SWITCH, PARK/NEUTRAL POSITION-REPLACE

K5267

LINES, BOTH OIL COOLER-REPLACE

K5295

FITTINGS, TRANS OIL COOL LINES-REPLACE

K6130

INDICATOR, TRANS OIL LEVEL-REPLACE

K6140

TUBE/SEAL, TRANS FILLER-REPLACE

K6150

PLUG &/OR WSHER, TRANS FLD DRN-REPLACE

K6300

BOLTS, TORQUE CONVERTER TO FLYWHEEL - REPLACE

K6305

SENSOR, TRANSAXLE TEMPERATURE-REPLACE

K6311

SENSOR ASSY, SPEED INPUT-REPLACE

K6312

SENSOR ASSY, SPEED OUTPUT-REPLACE

K6353

SOLENOID, PRESSURE CONTROL-REPLACE

K6534

SWITCH AND/OR SEAL, 3RD CLUTCH PRESSURE - REPLACE

K6535

SWITCH, 4TH CLUTCH PRESSURE-REPLACE

K6538

MANIFOLD AND/OR GASKET, CLUTCH PRESSURE CONTROL SOLENOID - REPLACE

K6557

TCC PWM SOLENOID - REPLACE

K6721

MOUNT/BRACKET, LEFT TRANS-REPLACE

K6722

MOUNT ASSEMBLY, FRONT, TRANSAXLE - REPLACE

K6723

MOUNT ASSEMBLY, REAR, TRANSAXLE - REPLACE

K6732

BRACKET, TRANSAXLE MOUNT - REPLACE

K6900

SEAL, TRANSAXLE SHAFT OIL, RIGHT

K6901

SEAL, TRANSAXLE SHAFT OIL, LEFT

K6907

SEAL, TRANSAXLE SHAFT OIL, BOTH

K7000

TRANSMISSION ASM, -REPLACE

K7020

CONVERTER ASSEMBLY, TRANSAXLE - REPLACE

K7228

COVER AND/OR GASKET, SIDE-REPLACE