GM Service Manual Online
For 1990-2009 cars only

DTC P1574 2.2L


Object Number: 1402857  Size: MF

Circuit Description

This diagnostic test functions on the assumption that a sudden decrease in vehicle speed is caused by a brake pedal application. When the ECM detects that there is a 4.2 km/h (2.6 mph) or greater decrease in vehicle speed within 0.25 seconds and a transition of the cruise/brake switch without a transition of the stop lamp switch, the ECM sets DTC P1574.

Conditions for Running the DTC

    •  DTCs P0502, P0503, P0719, and P0724 are not set.
    • The engine speed is greater than 700 RPM.
    • The traction control system or the antilock brake system are not active and have not failed.
    • The vehicle speed is greater than 48 km/h (30 mph) in order to enable the diagnostic.
         The diagnostic will disable when the wheel speed is less than 16 km/h (10 mph).

Conditions for Setting the DTC

    • The vehicle speed decreases by at least 4.2 km/h (2.6 mph) within 0.25 seconds.
    • The ECM detects a cruise/brake transition.
    • The ECM does not detect a stop lamp switch transition.

Action Taken When the DTC Sets

    • The ECM sets the stop lamp switch status to released.
    • The ECM disables the operation of the cruise control system.

Conditions for Clearing the DTC

    •  A history DTC will clear after 40 malfunction free warm-up cycles.
    • The ECM receives a clear code command from the scan tool.

Diagnostic Aids

In order to avoid a misdiagnosis, perform the following:

    • Inspect for proper operation of the stop lamps. Refer to Exterior Lighting Systems Description and Operation in Lighting Systems.
    • Inspect for proper adjustment of the stop lamps. Refer to Stop Lamp Switch Adjustment in Lighting Systems.
    • Inspect for proper adjustment of the cruise control release switch. Refer to Cruise Release Switch Adjustment .
    • For an intermittent condition, refer to Testing for Intermittent Conditions and Poor Connections in Wiring Systems.

Step

Action

Yes

No

Schematic Reference : Cruise Control Schematics

Connector End View Reference: Cruise Control Connector End Views or Lighting Systems Connector End Views in Lighting Systems

1

Did you perform the Cruise Control Diagnostic System Check?

Go to Step 2

Go to Diagnostic System Check - Cruise Control

2

  1. Install a scan tool.
  2. Turn the ignition ON, with the engine OFF.
  3. Press the brake pedal.
  4. With the scan tool, observe the Brake Switch parameter in the PCM General Info - Inputs data list.

Does the Brake Pedal Switch parameter display Released?

Go to Step 3

Go to Diagnostic Aids

3

Do the stop lamps operate properly?

Go to Step 4

Go to Stop Lamps Inoperative in Lighting Systems

4

Test the stop lamp switch signal circuit for an open or for a high resistance. Refer to Circuit Testing and to Wiring Repairs in Wiring Systems.

Did you complete the repair?

Go to Step 7

Go to Step 5

5

Inspect for poor connections at the harness connector of the engine control module (ECM). Refer to Testing for Intermittent Conditions and Poor Connections and to Connector Repairs in Wiring Systems.

Did you find and correct the condition?

Go to Step 7

Go to Step 6

6

Important: Program the replacement ECM.

Replace the ECM. Refer to Engine Control Module Replacement in Engine Controls - 2.2L (L61).

Did you complete the replacement?

Go to Step 7

--

7

  1. Use the scan tool in order to clear the DTCs.
  2. Operate the vehicle within the conditions for running the DTC.

Does the DTC reset?

Go to Step 2

System OK

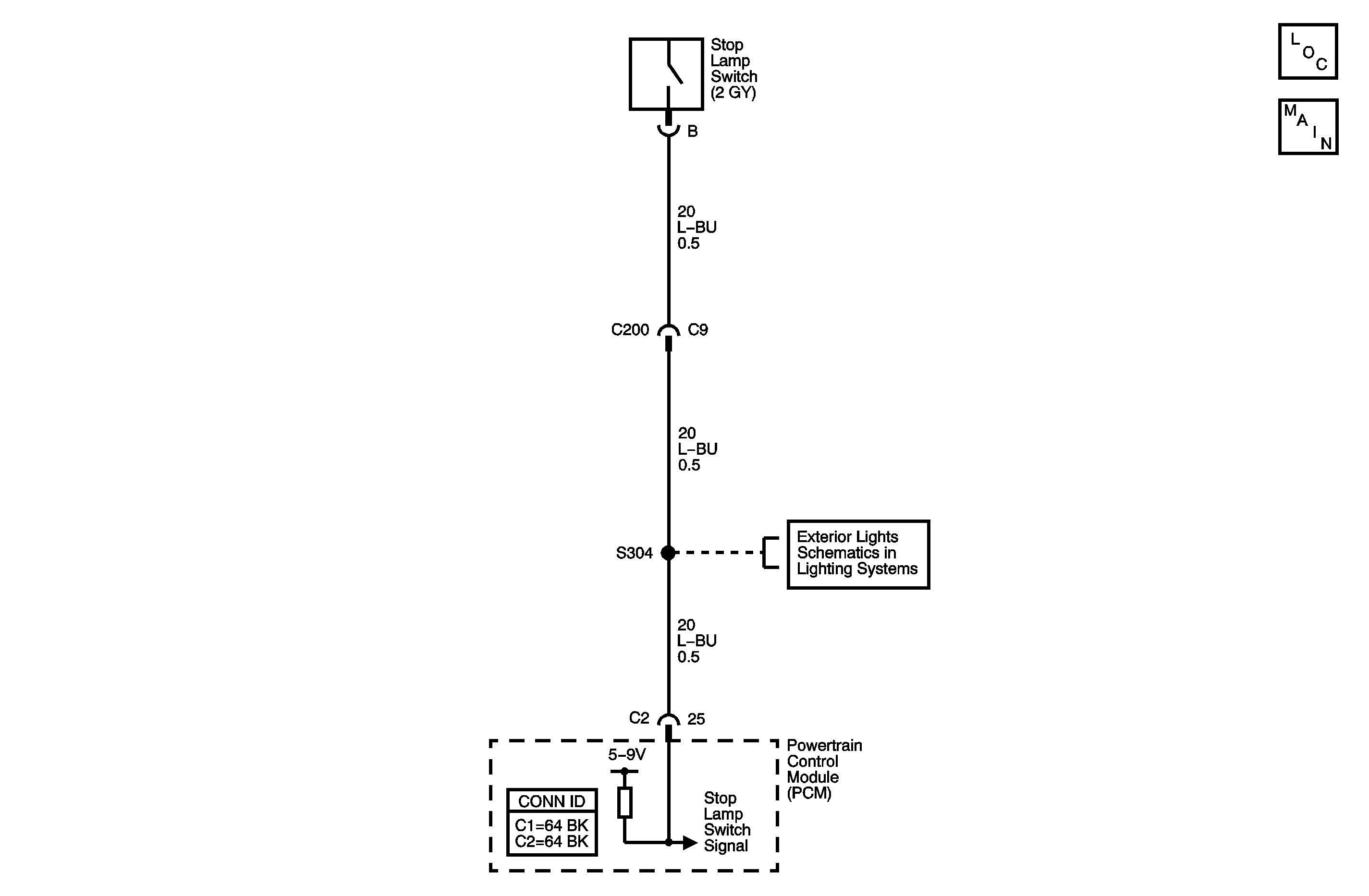
DTC P1574 3.5L


Object Number: 1402859  Size: MF

Circuit Description

This diagnostic test functions on the assumption that a sudden decrease in vehicle speed is caused by a brake pedal application. When the powertrain control module (PCM) detects that there is a 4.2 km/h (2.6 mph) or greater decrease in vehicle speed within 0.25 seconds and a transition of the cruise/brake switch without a transition of the stop lamp switch, the PCM sets DTC P1574.

Conditions for Running the DTC

    •  DTCs P0502, P0503, P0719, and P0724 are not set.
    • The engine speed is greater than 700 RPM.
    • The traction control system or the antilock brake system are not active and have not failed.
    • The vehicle speed is greater than 48 km/h (30 mph) in order to enable the diagnostic.
         The diagnostic will disable when the wheel speed is less than 16 km/h (10 mph).

Conditions for Setting the DTC

    • The vehicle speed decreases by at least 4.2 km/h (2.6 mph) within 0.25 seconds.
    • The PCM detects a cruise/brake transition.
    • The PCM does not detect a stop lamp switch transition.

Action Taken When the DTC Sets

    • The PCM sets the stop lamp switch status to released.
    • The PCM disables the operation of the cruise control system.
    • The Service Vehicle Soon (SVS) light may be illuminated.

Conditions for Clearing the DTC

    •  A history DTC will clear after 40 malfunction free warm-up cycles.
    • The PCM receives a clear code command from the scan tool.

Diagnostic Aids

In order to avoid a misdiagnosis, perform the following:

    • Inspect for proper operation of the stop lamps. Refer to Exterior Lighting Systems Description and Operation in Lighting Systems.
    • Inspect for proper adjustment of the stop lamps. Refer to Stop Lamp Switch Adjustment in Lighting Systems.
    • Inspect for proper adjustment of the cruise control release switch. Refer to Cruise Release Switch Adjustment .
    • For an intermittent condition, refer to Testing for Intermittent Conditions and Poor Connections in Wiring Systems.

Step

Action

Yes

No

Schematic Reference : Cruise Control Schematics

Connector End View Reference: Cruise Control Connector End Views or Lighting Systems Connector End Views in Lighting Systems

1

Did you perform the Cruise Control Diagnostic System Check?

Go to Step 2

Go to Diagnostic System Check - Cruise Control

2

  1. Install a scan tool.
  2. Turn the ignition ON, with the engine OFF.
  3. Press the brake pedal.
  4. With the scan tool, observe the Brake Switch parameter in the PCM General Info - Inputs data list.

Does the Brake Pedal Switch parameter display Released?

Go to Step 3

Go to Diagnostic Aids

3

Do the stop lamps operate properly?

Go to Step 4

Go to Stop Lamps Inoperative in Lighting Systems

4

Test the stop lamp switch signal circuit for an open or for a high resistance. Refer to Circuit Testing and to Wiring Repairs in Wiring Systems.

Did you complete the repair?

Go to Step 7

Go to Step 5

5

Inspect for poor connections at the harness connector of the powertrain control module (PCM). Refer to Testing for Intermittent Conditions and Poor Connections and to Connector Repairs in Wiring Systems.

Did you find and correct the condition?

Go to Step 7

Go to Step 6

6

Important: Program the replacement PCM.

Replace the PCM. Refer to Powertrain Control Module Replacement in Engine Controls - 3.5L (L66)

Did you complete the replacement?

Go to Step 7

--

7

  1. Use the scan tool in order to clear the DTCs.
  2. Operate the vehicle within the conditions for running the DTC.

Does the DTC reset?

Go to Step 2

System OK