GM Service Manual Online
For 1990-2009 cars only

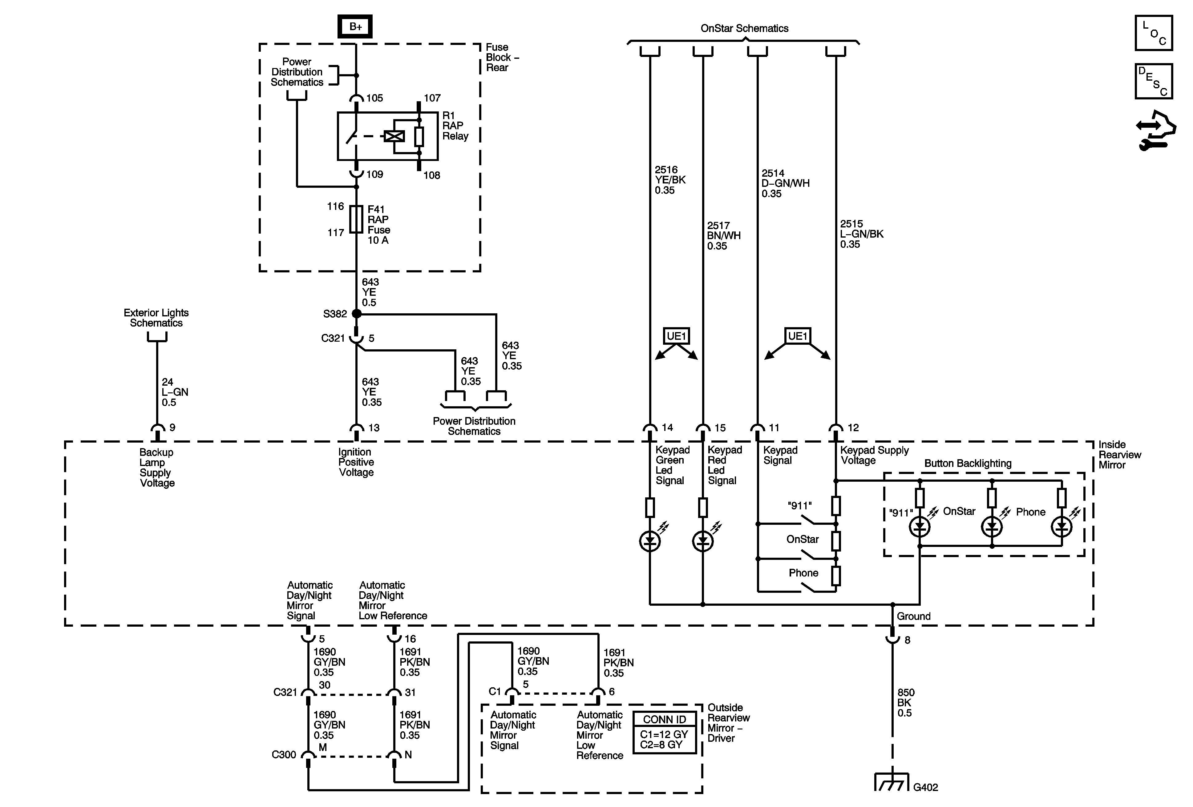
Object Number: 1794075  Size: FS
Master Electrical Component List
Automatic Day-Night Mirror Description and Operation
Control Module References
Rear Fuse Block B+
UE1
Center High Mounted Stop Lamp, Auxiliary Tail Lamps
RAP Relay, CTSY/RF TRN, S/ROOF, SHFTR SOL, RAP Fuses
G402