GM Service Manual Online
For 1990-2009 cars only
Makes
🢒
Buick
🢒
1998
🢒
Riviera
🢒 Cell 81: Airbag Indicator
Cell 81: Airbag Indicator
Cell 81: Airbag Indicator
Instrument Panel, Gages, and Console Component Views
Cell 81: Security Indicator
Cell 81: Fuel Tank Unit
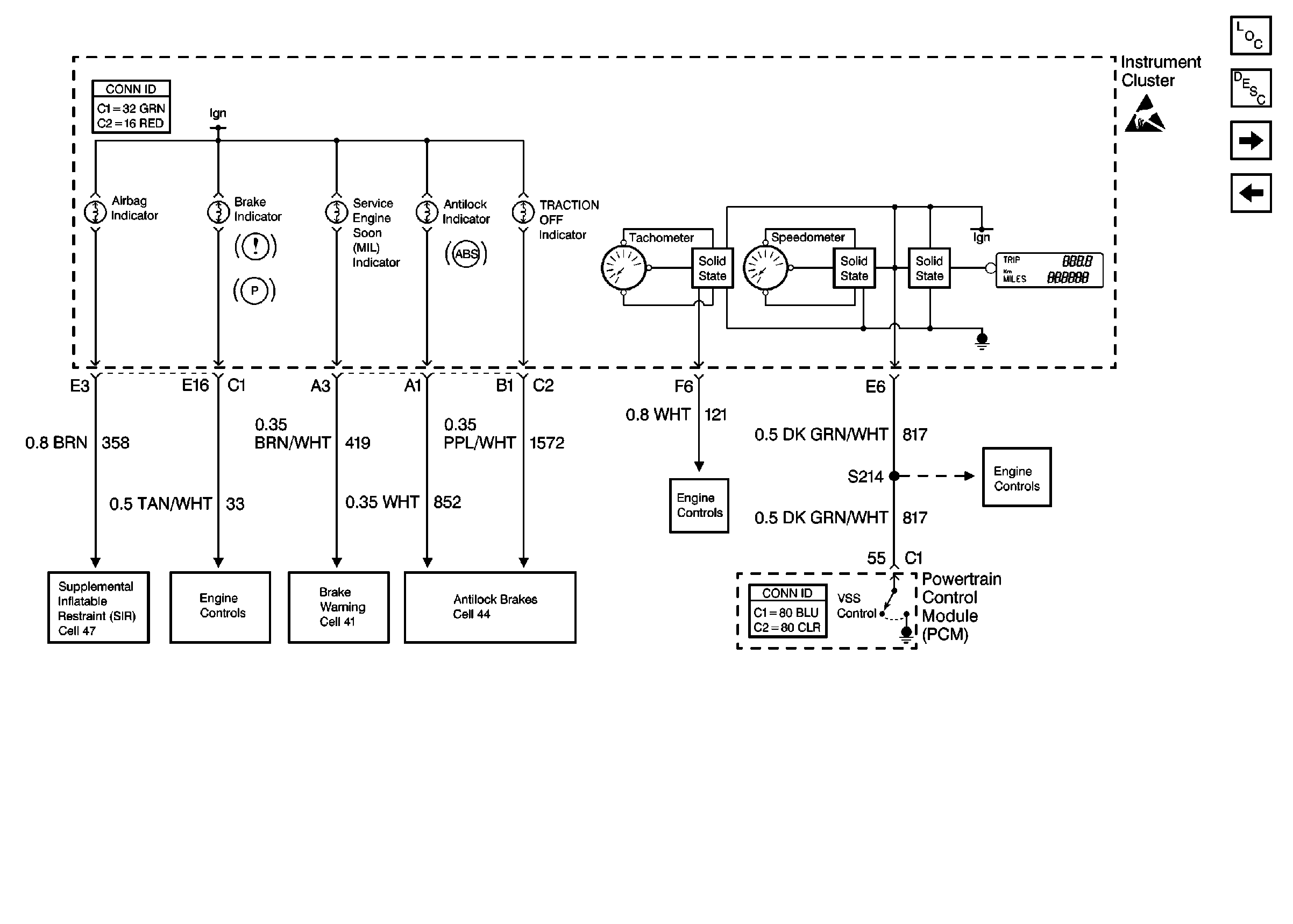
Engine Controls Schematics
Handling ESD Sensitive Parts Notice
SIR Handling Caution