GM Service Manual Online
For 1990-2009 cars only
Makes
🢒
Cadillac
🢒
2005
🢒
CTS
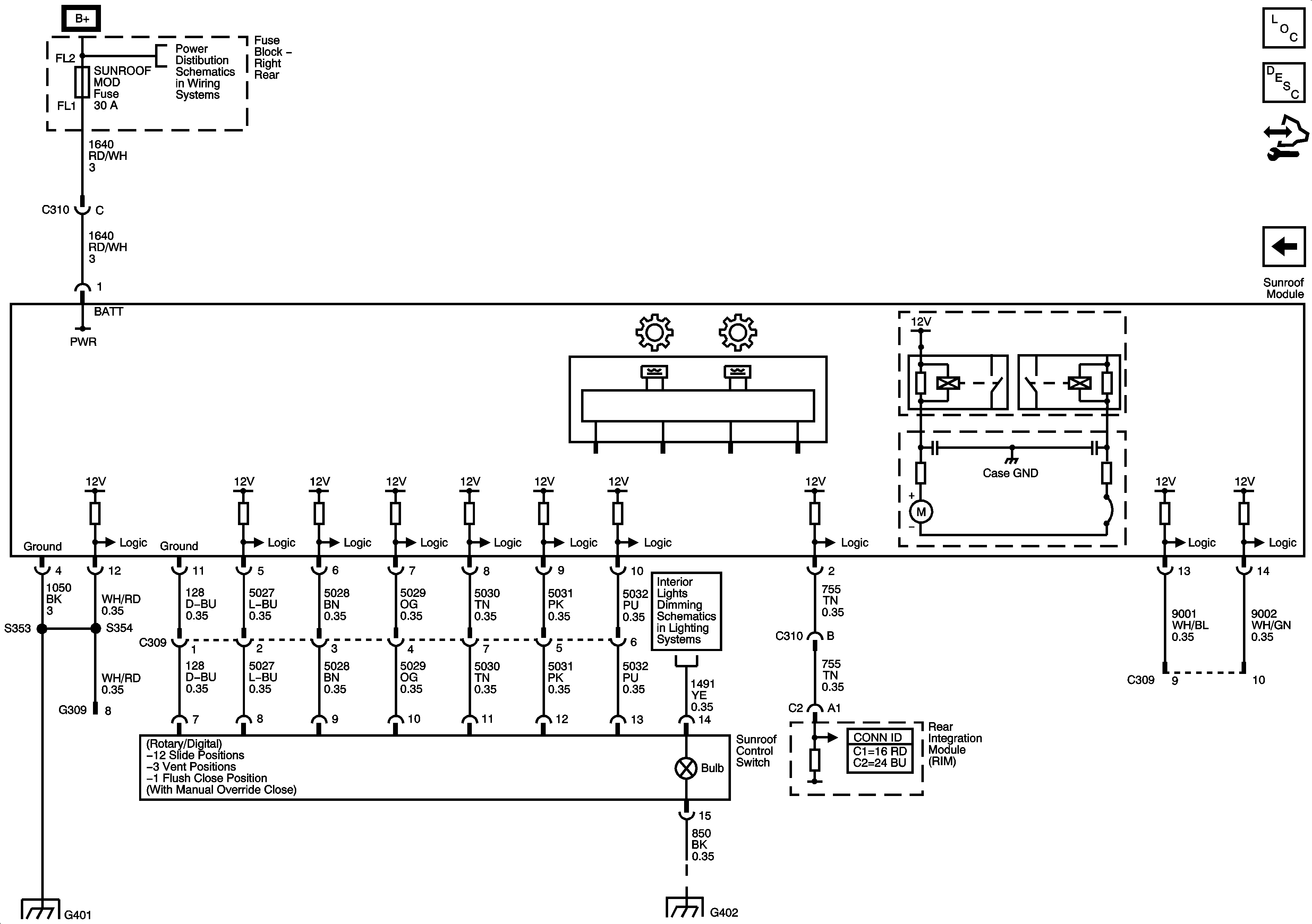
🢒 Power Sunroof Without Jumper Harness
Power Sunroof Without Jumper Harness
Master Electrical Component List
Sunroof Description and Operation 2 connector module
Control Module References
Early Production
Right Rear Fuse Block B+ Bus
Power, Ground and Serial Data - 1 of 2
G401
G402 - 1 of 2