GM Service Manual Online
For 1990-2009 cars only
Makes
🢒
Cadillac
🢒
2007
🢒
CTS
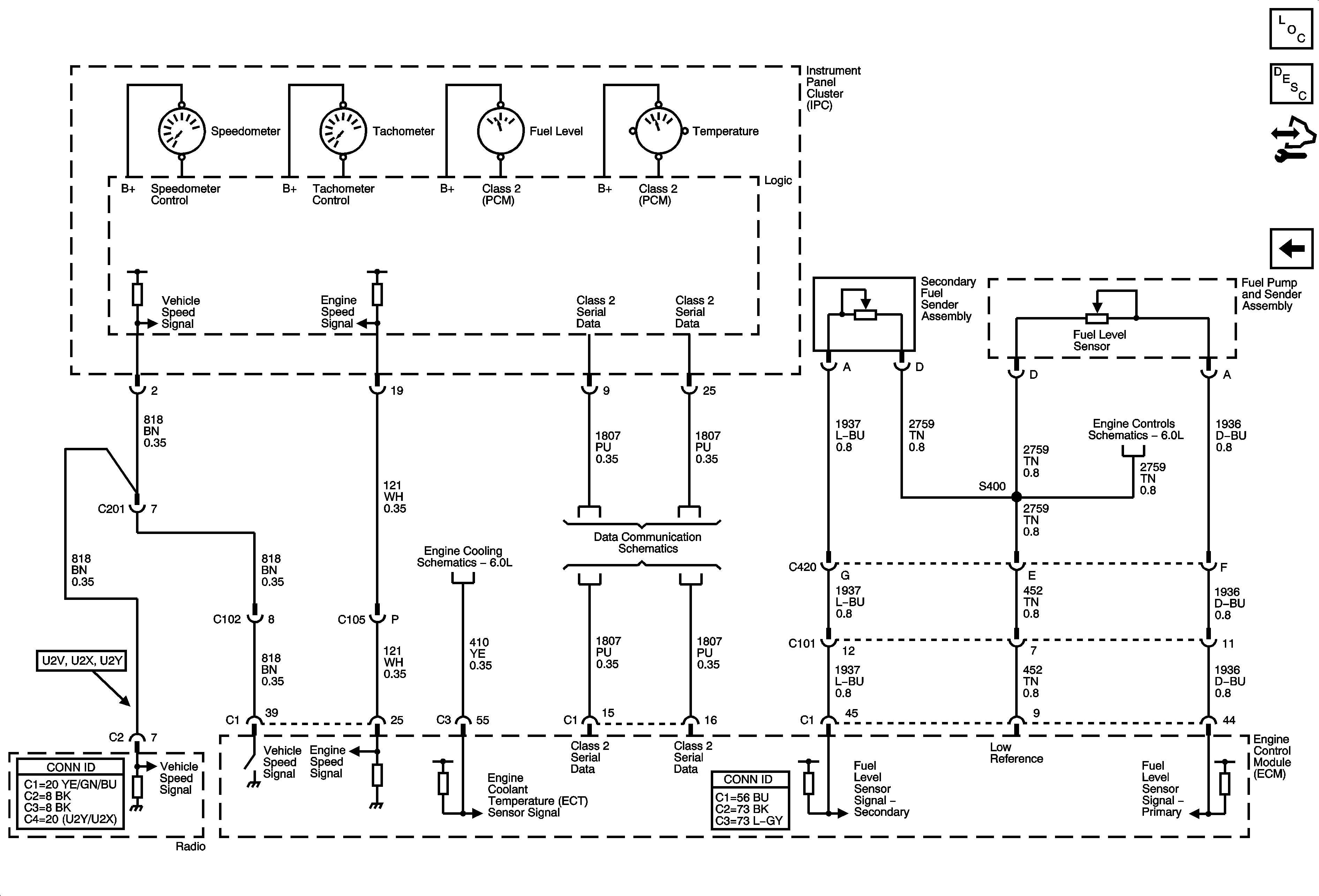
🢒 Gages - 6.0L (LS2)
Gages - 6.0L (LS2)
Gages - 6.0L (LS2)
Master Electrical Component List
Instrument Cluster Description and Operation
Control Module References
Gages 2.8L/3.6L (LP1/LY7)
Cooling Fans - 6.0L (LS2)
Class 2 Serial Data Bus - LHD (1 of 2)
Fuel Controls - EVAP Controls