GM Service Manual Online
For 1990-2009 cars only
Makes
🢒
Cadillac
🢒
2007
🢒
CTS
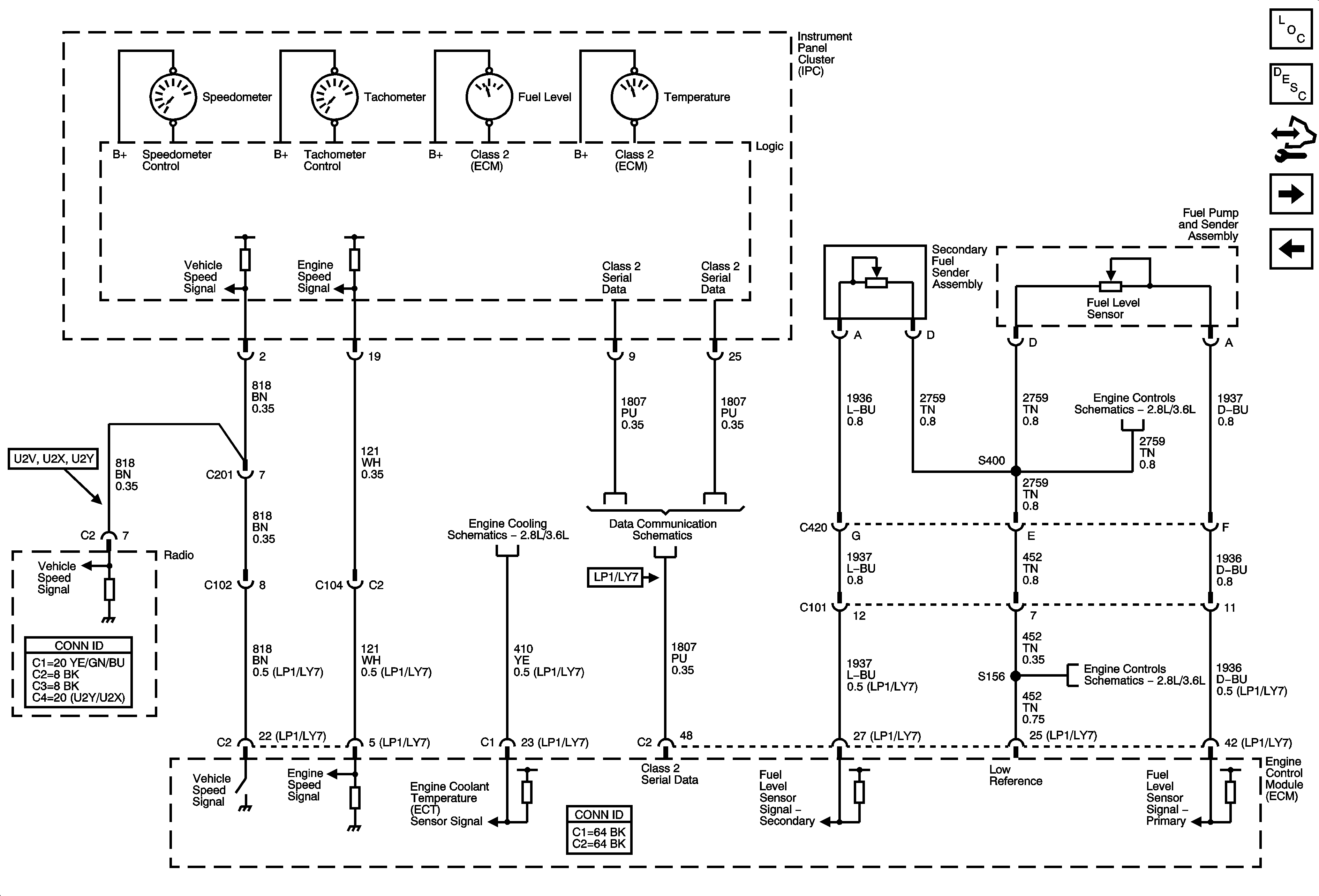
🢒 Gages 2.8L/3.6L (LP1/LY7)
Gages 2.8L/3.6L (LP1/LY7)
Gages - 2.8L/3.6L (LP1/LY7)
Master Electrical Component List
Instrument Cluster Description and Operation
Control Module References
Gages - 6.0L (LS2)
Engine Oil Pressure (EOP) Sensor, Engine Oil Level/Temp. Sensor, TFT and Indicator
Cooling Fans - 2.8L/3.6L (LP1/LY7)
Class 2 Serial Data Bus - LHD (1 of 2)
Fuel Controls - EVAP Controls and IMRC Solenoid
Fuel Controls - EVAP Controls and IMRC Solenoid