GM Service Manual Online
For 1990-2009 cars only

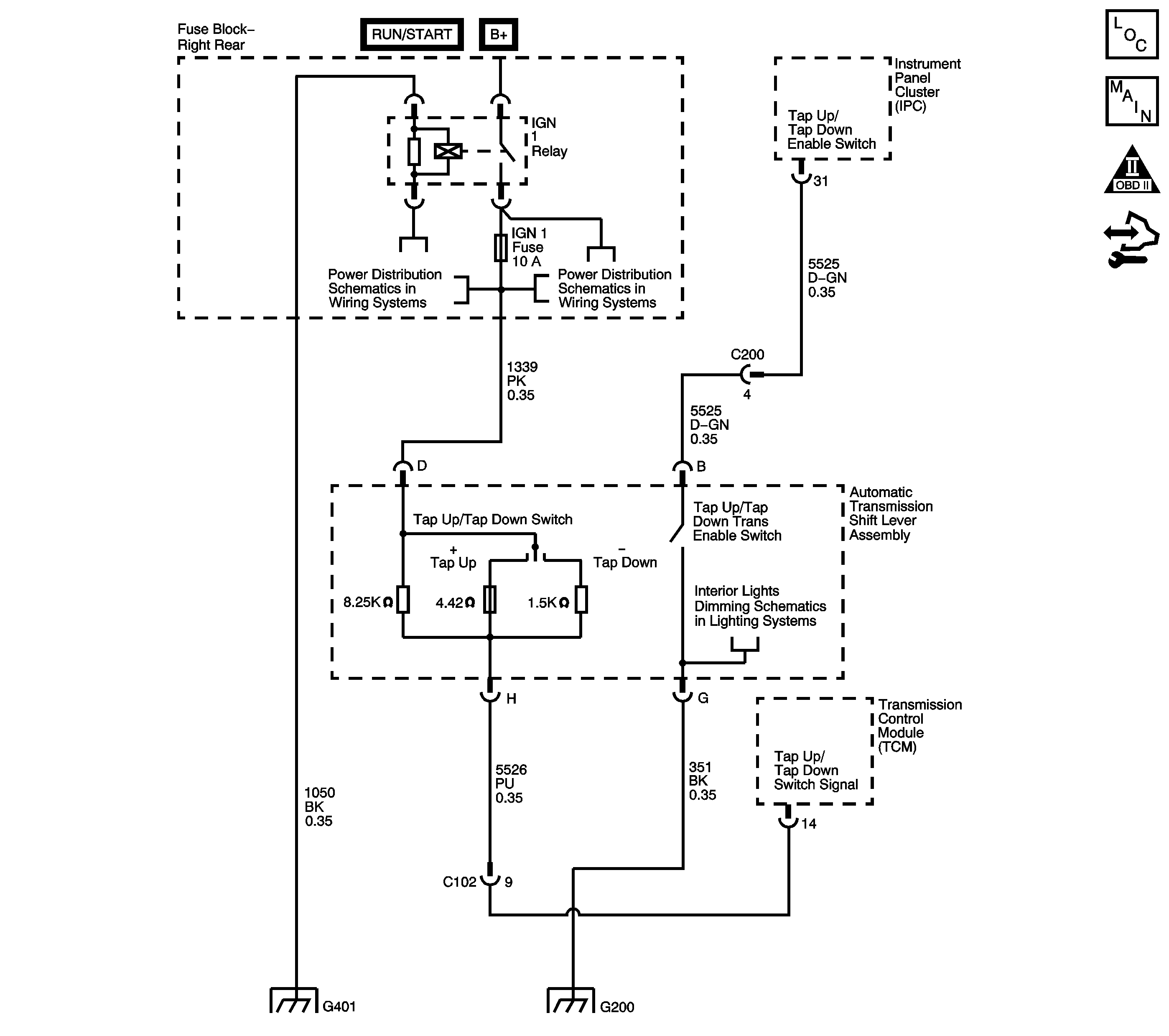
Object Number: 1680309  Size: LF
Master Electrical Component List
Automatic Transmission Controls Schematics
OBD II Symbol Description Notice
Control Module References

Circuit Description

The TAP Shift system allows the driver to manually shift gears by using the TAP Shift switches located on the automatic transmission shifter. Pushing the Up switch will command an upshift and pushing the Down switch will command a downshift. The TAP Shift system is activated when the gear selector is in the manual, M, position and is deactivated in all other positions.

If the transmission control module (TCM) detects the downshift circuit active for an extended period of time, then DTC P0816 sets. DTC P0816 is a type C DTC.

DTC Descriptor

This diagnostic procedure supports the following DTC:

DTC P0816 Downshift Switch Circuit

Conditions for Running the DTC

    • No TAP up/TAP down DTC P0826.
    • No IMS DTCs P1815, P1820, P1822, P1823, P1825 or P1826.
    • The engine run time is greater than 5 seconds.
    • The time since last gear selector range change is greater than 6 seconds.

Conditions for Setting the DTC

The TCM detects a downshift request for 2 seconds in PARK or for 600 seconds.

Action Taken When the DTC Sets

    • The TCM does not request the ECM to illuminate the malfunction indicator lamp (MIL).
    • The TCM disables TAP shift operation.
    • The TCM records the operating conditions when the Conditions for Setting the DTC are met. The TCM stores this information as a Failure Record.
    • The TCM stores DTC P0816 in TCM history.

Conditions for Clearing the DTC

    • A scan tool can clear the DTC.
    • The TCM clears the DTC from TCM history if the vehicle completes 40 warm-up cycles without a non-emission related diagnostic fault occurring.
    • The TCM cancels the DTC default actions when the fault no longer exists and the DTC passes.

Step

Action

Value(s)

Yes

No

1

Did you perform the Diagnostic System Check - Vehicle?

--

Go to Step 2

Go to Diagnostic System Check - Vehicle

2

  1. Install a scan tool.
  2. Turn ON the ignition, with the engine OFF.
  3. Important: Before clearing the DTC, use the scan tool in order to record the Failure Records. Using the Clear DTC Information function erases the Failure Records from the TCM.

  4. Record the DTC Failure Records.
  5. Clear the DTC.
  6. Select Driver Shift Request Status on the scan tool.

Does the scan tool Driver Shift Request parameter display None?

--

Go to Testing for Intermittent Conditions and Poor Connections

Go to Step 3

3

  1. Select Driver Shift Request status on the scan tool.
  2. Disconnect the floor shift control connector.

Does the Driver Shift Request Status change to Invalid?

--

Go to Step 6

Go to Step 4

4

  1. Using the J 35616 GM terminal test kit, connect a DMM between the ignition 1 voltage circuit and the Tap Up/Tap Down signal circuit of the Floor Shift Control.
  2. Measure the resistance.

Is the resistance within the specified range?

8.11-8.39K ohms

Go to Step 5

Go to Step 6

5

Test signal circuit for a short to voltage condition.

Refer to Testing for a Short to Voltage and Wiring Repairs .

Did you find and correct a condition?

--

Go to Step 8

Go to Step 7

6

Replace the Floor Shift Control.

Refer to Transmission Control Replacement .

Did you complete the replacement?

--

Go to Step 8

--

7

Replace the TCM. Refer to Control Module References for replacement, setup and programming.

Did you complete the replacement?

--

Go to Step 8

--

8

Perform the following procedure in order to verify the repair:

  1. Select DTC.
  2. Select Clear DTC Information.
  3. Operate the vehicle under the following conditions:
  4. • Start the engine.
    • Observe Driver Shift Request on the scan tool.
    • Ensure the Driver Shift Request is not downshift or up and downshift for at least 1 second.
  5. Select Specific DTC.
  6. Enter DTC P0816.

Has the test run and passed?

--

Go to Step 9

Go to Step 2

9

With a scan tool, observe the stored information, capture info and DTC info.

Does the scan tool display any DTCs that you have not diagnosed?

--

Go to Diagnostic Trouble Code (DTC) List - Vehicle

System OK