GM Service Manual Online
For 1990-2009 cars only

Object Number: 373765  Size: MF
HVAC Components
Temperature Sensors

Circuit Description

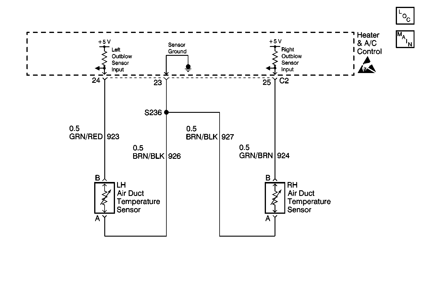
The air outlet temperature sensor is located in the left air duct attached to the air distribution module. In this position, it is exposed to airflow through the module before the air enters the passenger compartment. This provides a sample of the outlet air temperature.

The sensor is a thermistor used to control the signal voltage at the heater and A/C control. The heater and A/C control supplies a reference voltage (about 5 volts) on CKT 923 to the sensor and measures the voltage drop in the circuit to obtain a temperature signal. This signal is an input that tells the heater and A/C control how much cooling or heating will be required to deliver to the passenger compartment. After an initial start-up, the heater and A/C control uses the temperature input from the inside air temperature sensor for automatic control. Eventually the air outlet temperature sensor input overrides the input from the inside air temperature sensor and becomes the primary temperature input to the heater and A/C control.

When the air outlet temperature is cold, the thermistor resistance is high; therefore, the heater and A/C control will receive a high signal voltage input. If the air outlet temperature is hot, the thermistor resistance is low, the heater and A/C control will receive a low signal voltage input.

Conditions for Setting the DTC

    • With the ignition in the ON position, CKT 923 is tested continuously every 200 ms.
    • CKT 923 stays at 4.5 V or higher.

Action Taken When the DTC Sets

    • Stores a DTC 13 in the heater and A/C control memory.
    • The system will use 41°C (106°F) as a default value.

Conditions for Clearing the DTC

    • The conditions for the fault are no longer present.
    • Using a scan tool.
    • A history DTC will clear after 20 consecutive ignition cycles if the conditions for the fault is no longer present.

Diagnostic Aids

    • If the DTC is a history or an intermittent. Try performing the tests shown while moving the harness wiring and connectors, this can often cause the malfunction to appear.
    • Visually inspect the sensor connector and harness for damage, corrosion or water intrusion.
    • Test for adequate terminal tension, mis-routed harness, rubbed through wire insulation, and broken wire inside the insulation.

Test Description

The numbers below refer to the step numbers on the diagnostic table.

  1. Determines if the malfunction is present.

  2. If the LH air outlet temperature voltage is at or near zero volts, indicates the heater and A/C control and the sensor wiring are OK.

  3. When moving related harnesses and harness connectors, visually/physically inspect wiring and connectors for the following:

  4. • Wire insulation that is rubbed through, causing an intermittent short.
    • Wiring broken inside the insulation.
    • Poor mating of the connector halves or a terminal not fully seated in the connector body (backed out).
    • Improperly formed or damaged terminals. All connector terminals in the related circuits should be carefully reformed or replaced to insure proper contact tension.
    • Poor terminal to wire connection. Inspect for poor crimps, crimping over wire insulation rather than the wire.
    • Dirt or corrosion on terminals. Inspect connector seals for being there and for being damaged.
  5. If the LH air outlet temperature sensor voltage is at or near zero volts, indicates the signal circuit is OK.

  6. Disconnecting the heater and A/C control will allow using the DMM to test continuity of the circuits. This will aid in locating a shorted circuit.

  7. Disconnecting the heater and A/C control will allow using the DMM to test continuity of the circuits. This will aid in locating an open circuit.

Step

Action

Value(s)

Yes

No

1

Did you perform the HVAC Systems Diagnostic System Check?

--

Go to Step 2

Go to Diagnostic System Check

2

  1. Install a scan tool.
  2. Select LH AIR OUT TEMP SENSOR from the Heating and Air Conditioning data list and display the voltage parameter.

Is the scan tool display greater than the specified value?

4.5 V

Go to Step 3

Go to Step 4

3

  1. Turn OFF the ignition.
  2. Disconnect the left air outlet sensor.
  3. Connect a 3-amp fused jumper wire between the sensor connector terminals A and B.
  4. Turn ON the ignition, with the engine OFF.
  5. Observe the voltage parameter on the scan tool.

Is the scan tool display less than the specified value?

0.2 V

Go to Step 5

Go to Step 6

4

While monitoring the scan tool, move related harnesses and harness connectors at the component and the heater and A/C control.

Does the sensor value change while a related harness or connector is being moved?

--

Go to Step 7

Go to Diagnostic Aids

5

Replace the LH air outlet temperature sensor.

Is the replacement complete?

--

Go to Step 10

--

6

Jumper sensor signal CKT 923 to a known good ground.

Is the air outlet temperature sensor voltage less than the specified value?

0.2 V

Go to Step 8

Go to Step 9

7

Locate and repair damaged connector or wiring harness.

Is the repair complete?

--

Go to Step 10

--

8

  1. Turn OFF the ignition.
  2. Disconnect the heater and A/C control connector C2.
  3. Test the LH air outlet temperature sensor ground circuit for an open.

Is the ground circuit open?

--

Go to Step 11

Go to Step 12

9

  1. Turn OFF the ignition.
  2. Disconnect the heater and A/C control connector C2.
  3. Test the LH air outlet temperature sensor signal circuit for an open.

Is the signal circuit open?

--

Go to Step 13

Go to Step 12

10

  1. Reassemble any connectors/components removed.
  2. Install the scan tool and clear codes.
  3. Retest for the DTC.

Does the DTC reset?

--

Go to Step 2

System OK

11

Repair open ground circuit.

Is the repair complete?

--

Go to Step 10

--

12

Replace and program the heater and A/C control.

Is the replacement complete?

--

Go to Step 10

--

13

Repair open sensor signal wire.

Is the repair complete?

--

Go to Step 10

--