GM Service Manual Online
For 1990-2009 cars only
Makes
🢒
Cadillac
🢒
2007
🢒
DTS
🢒
Body Hardware and Trim
🢒
Interior Trim and Paneling
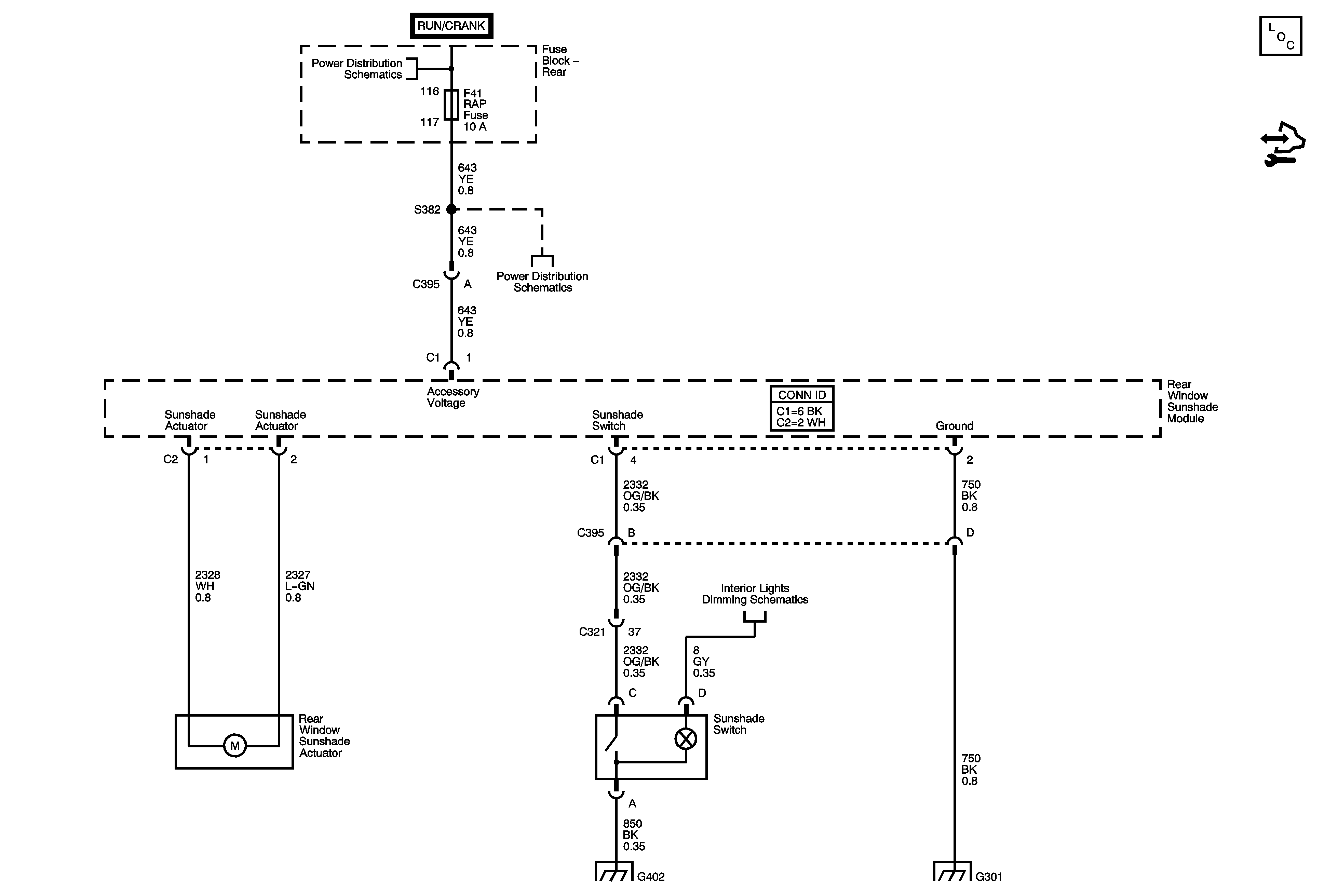
🢒 Sunshade Schematics
Rear Window Sunshade - DE9
Master Electrical Component List
Control Module References
Rear Fuse Block B+
Rear Fuse Block - RAP Relay, CTSY/RF TRN, S/ROOF, SHFTR SOL, RAP, REAR SEAT LUM Fuses
Window, Traction Control, Sun Shade, Sunroof Switches, Reverse Lockout Solenoid, Garage Door Opener, Rear Compartment Courtesy Lamp
G402
G301