GM Service Manual Online
For 1990-2009 cars only
Makes
🢒
Cadillac
🢒
2007
🢒
DTS
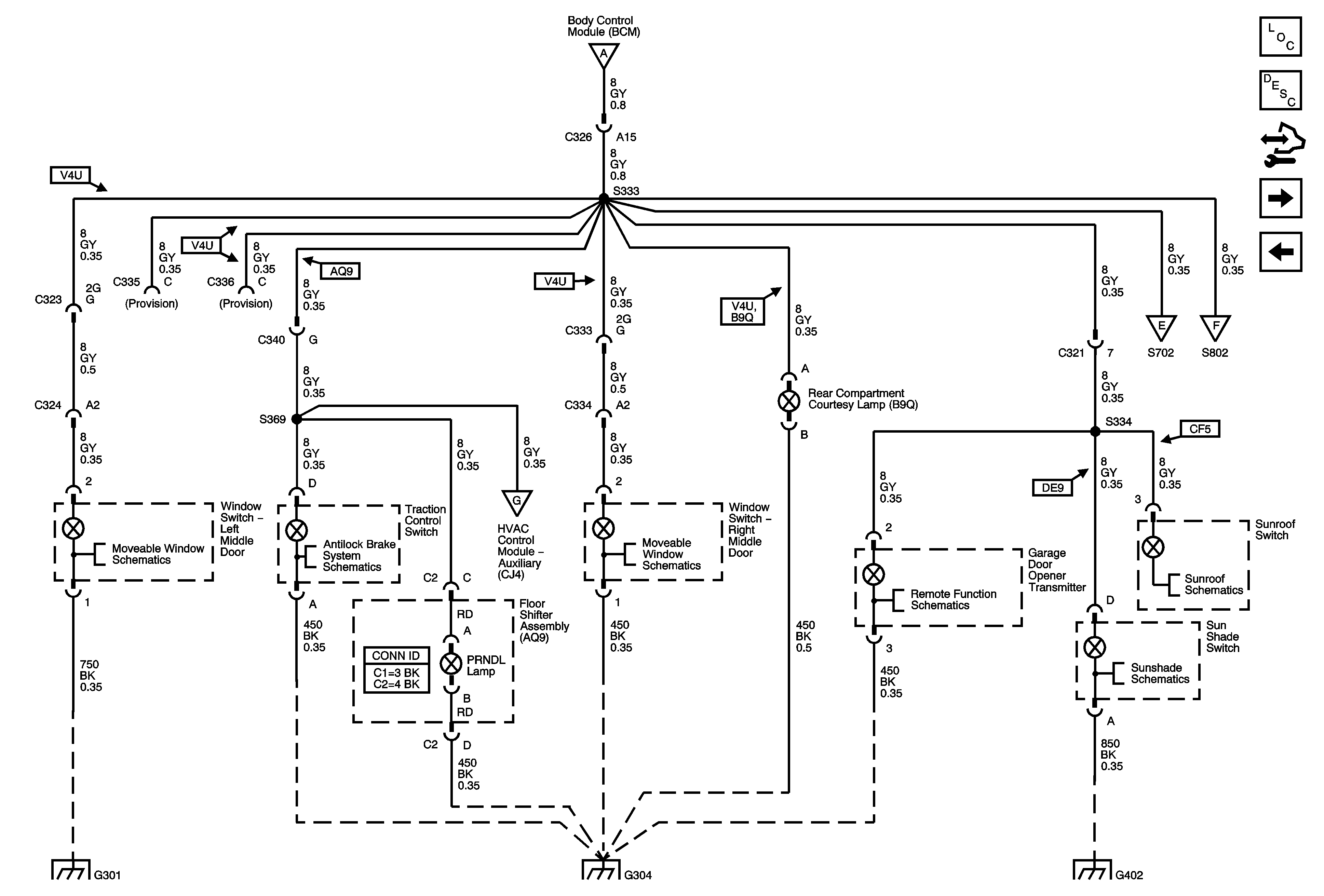
🢒 Window, Traction Control, Sun Shade, Sunroof Switches, Reverse Lockout Solenoid, Garage Door Opener, Rear Compartment Courtesy Lamp
Window, Traction Control, Sun Shade, Sunroof Switches, Reverse Lockout Solenoid, Garage Door Opener, Rear Compartment Courtesy Lamp
Window, Traction Control, Sun Shade, Sunroof Switches, Reverse Lockout Solenoid, Garage Door Opener, Rear Compartment Courtesy Lamp
Interior Lighting Systems Description and Operation
Window, Heated Seat, Seat Lumbar Switches
Hazard, Headlamp, Driver Information Display Switches, Ashtray, HVAC Control Module, Radio, Clock
Hazard, Headlamp, Driver Information Display Switches, Ashtray, HVAC Control Module, Radio, Clock
Upfitter WIndow Provisions - V4U
Brake Pedal Position, Traction Control Switch, Data Link Communications
HVAC Control Module, Steering Wheel, Heated Seat KA6, Telltale Assembly Info Center
Upfitter WIndow Provisions - V4U
G301
G304
Garage Door Opener
Sunroof w/ CF5
Rear Window Sunshade DE9
G402
Window, Heated Seat, Seat Lumbar Switches
Window, Heated Seat, Seat Lumbar Switches