GM Service Manual Online
For 1990-2009 cars only
Makes
🢒
Cadillac
🢒
2002
🢒
Escalade EXT
🢒
Body and Accessories
🢒
Seats
🢒 Power Seats Schematics
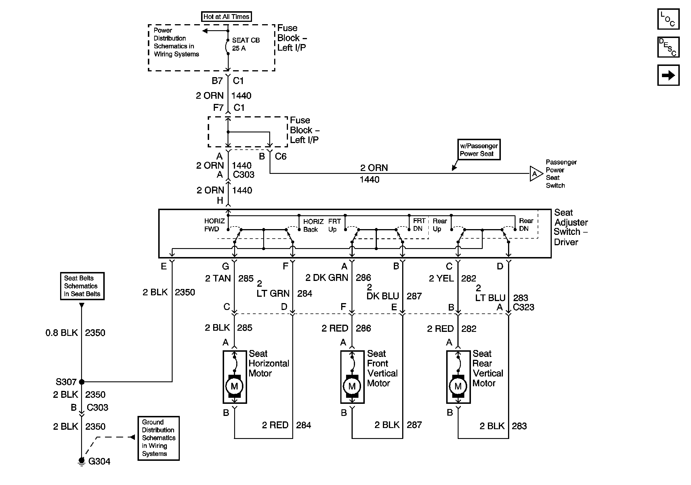
Figure
1:
Driver
Master Electrical Component List
Power Seats System Description and Operation
Front Passenger
SEATS Circuit Breaker and MIR/LOCK Fuse
Seat Belt Switch
G304
Front Passenger
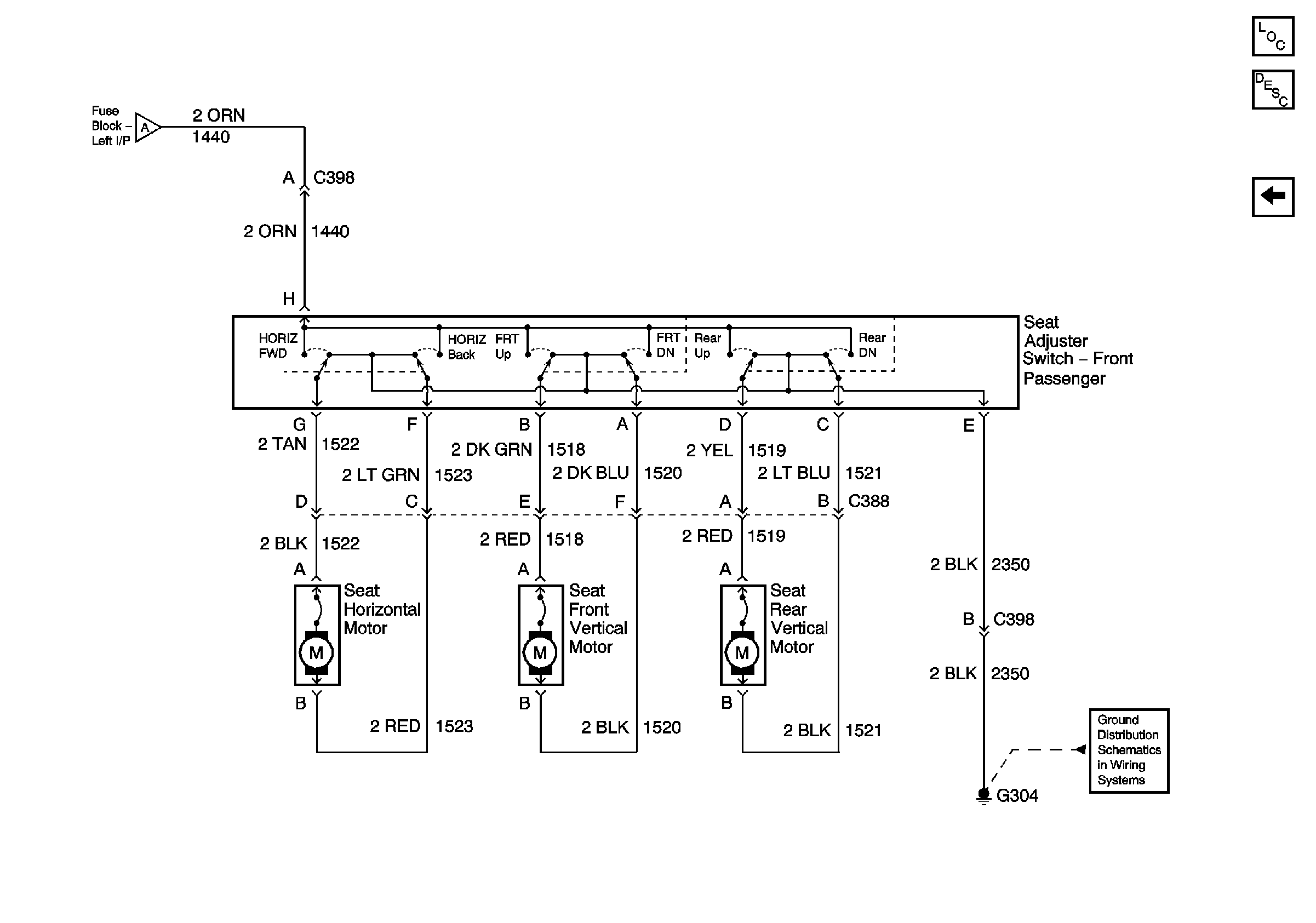
Figure
2:
Front Passenger
Master Electrical Component List
Power Seats System Description and Operation
Driver
G304
Driver