GM Service Manual Online
For 1990-2009 cars only
Makes
🢒
Cadillac
🢒
2005
🢒
Escalade EXT
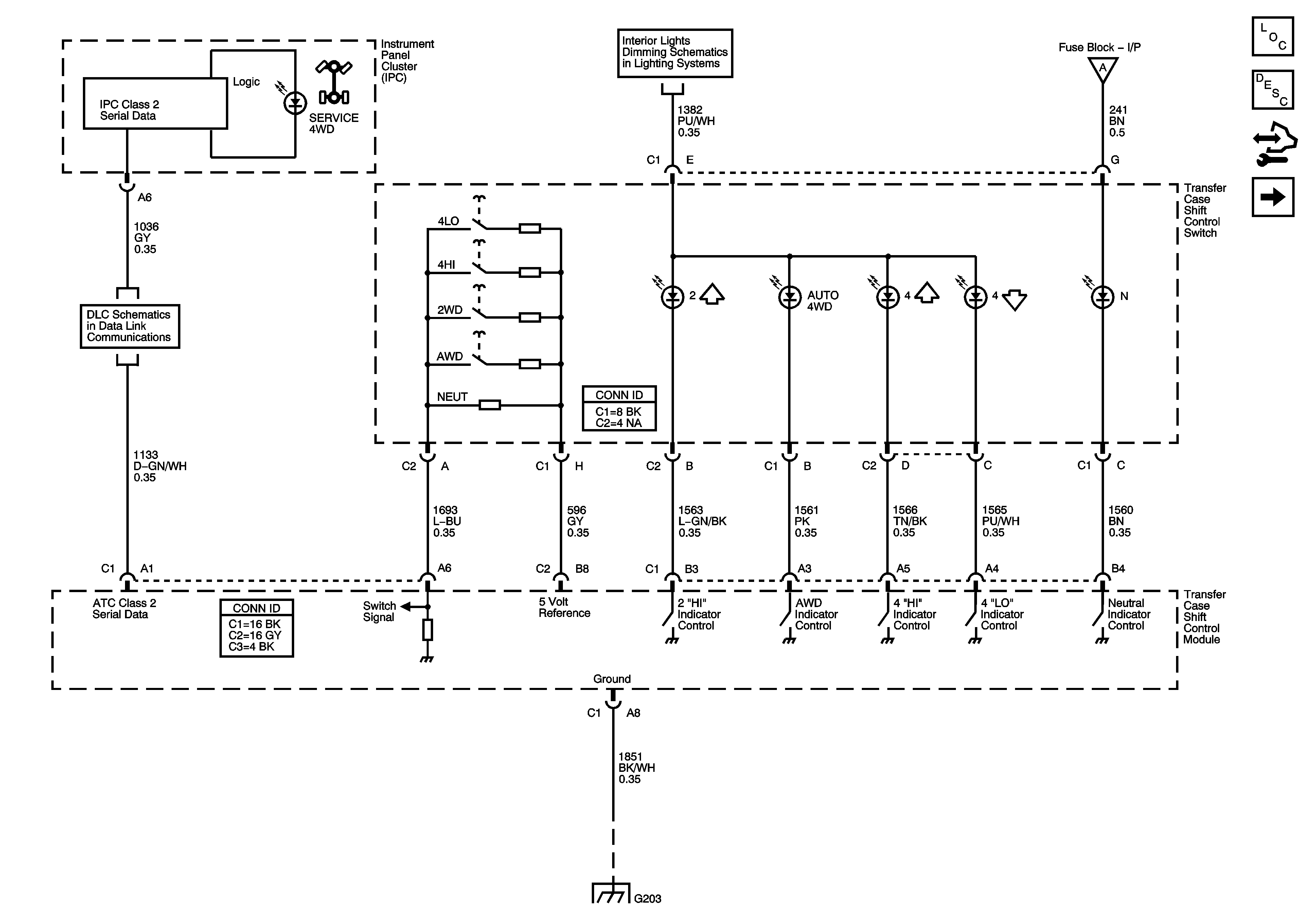
🢒 Power, Ground, Serial Data, and Encoder Circuits
Power, Ground, Serial Data, and Encoder Circuits
Power, Ground, Serial Data , and Switch Inputs
Master Electrical Component List
Transfer Case Description and Operation
Control Module References
Propshaft Speed Sensors and Front Axle Actuator
Power, Ground, DLC, and Splice Pack SP205
Dimming Control and LED DImming Supply Voltage - 2 of 2
Propshaft Speed Sensors and Front Axle Actuator
G203 - 2 of 3