GM Service Manual Online
For 1990-2009 cars only
Makes
🢒
Cadillac
🢒
2005
🢒
Escalade EXT
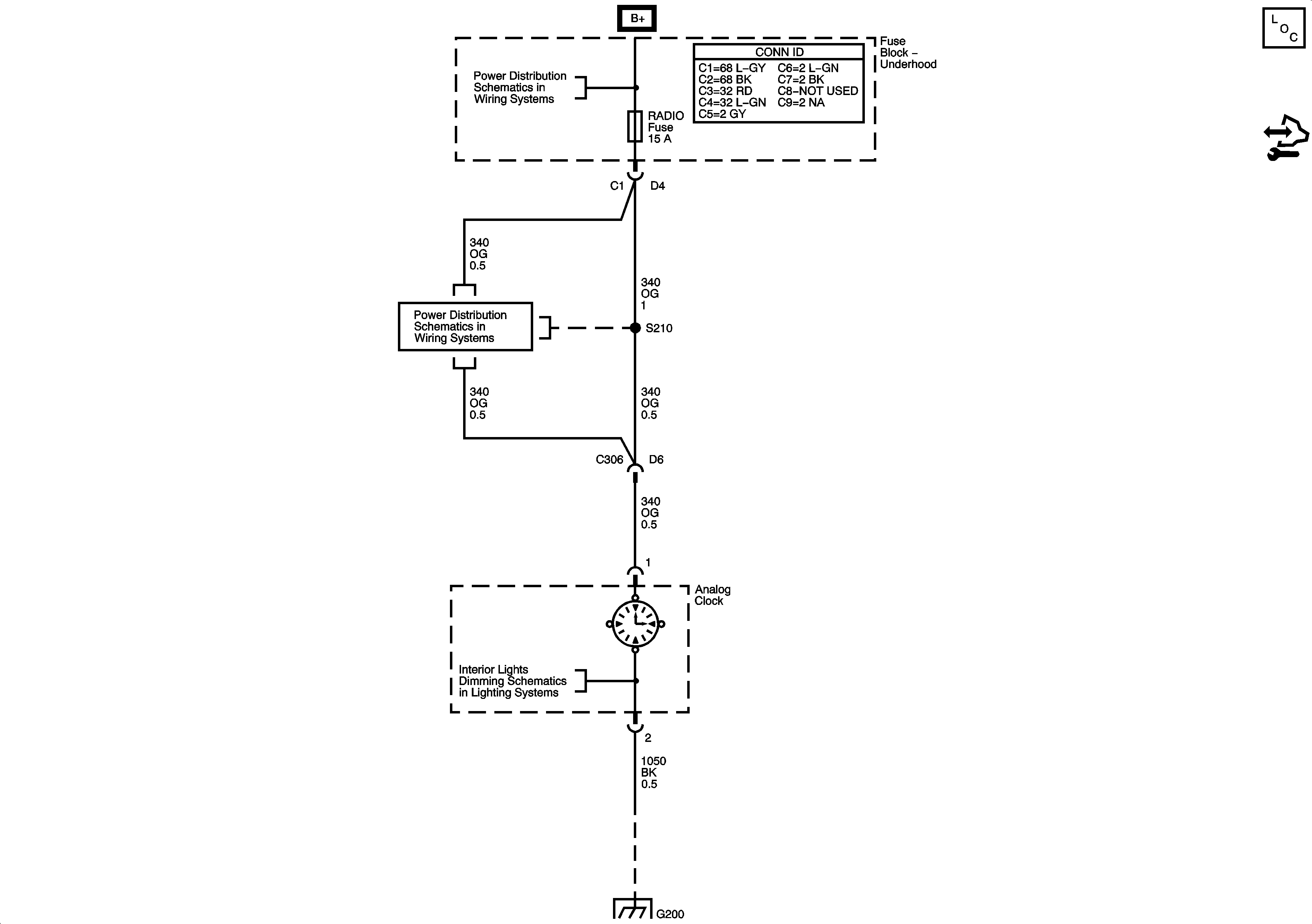
🢒 Analog Clock
Analog Clock
Master Electrical Component List
Control Module References
B+ Bus - 1 of 2
RADIO, RADIO AMP, and S/ROOF Fuses
I/P Dimming Supply Voltage - 1 of 8
G200 - 2 of 3