GM Service Manual Online
For 1990-2009 cars only
Makes
🢒
Cadillac
🢒
2005
🢒
Escalade EXT
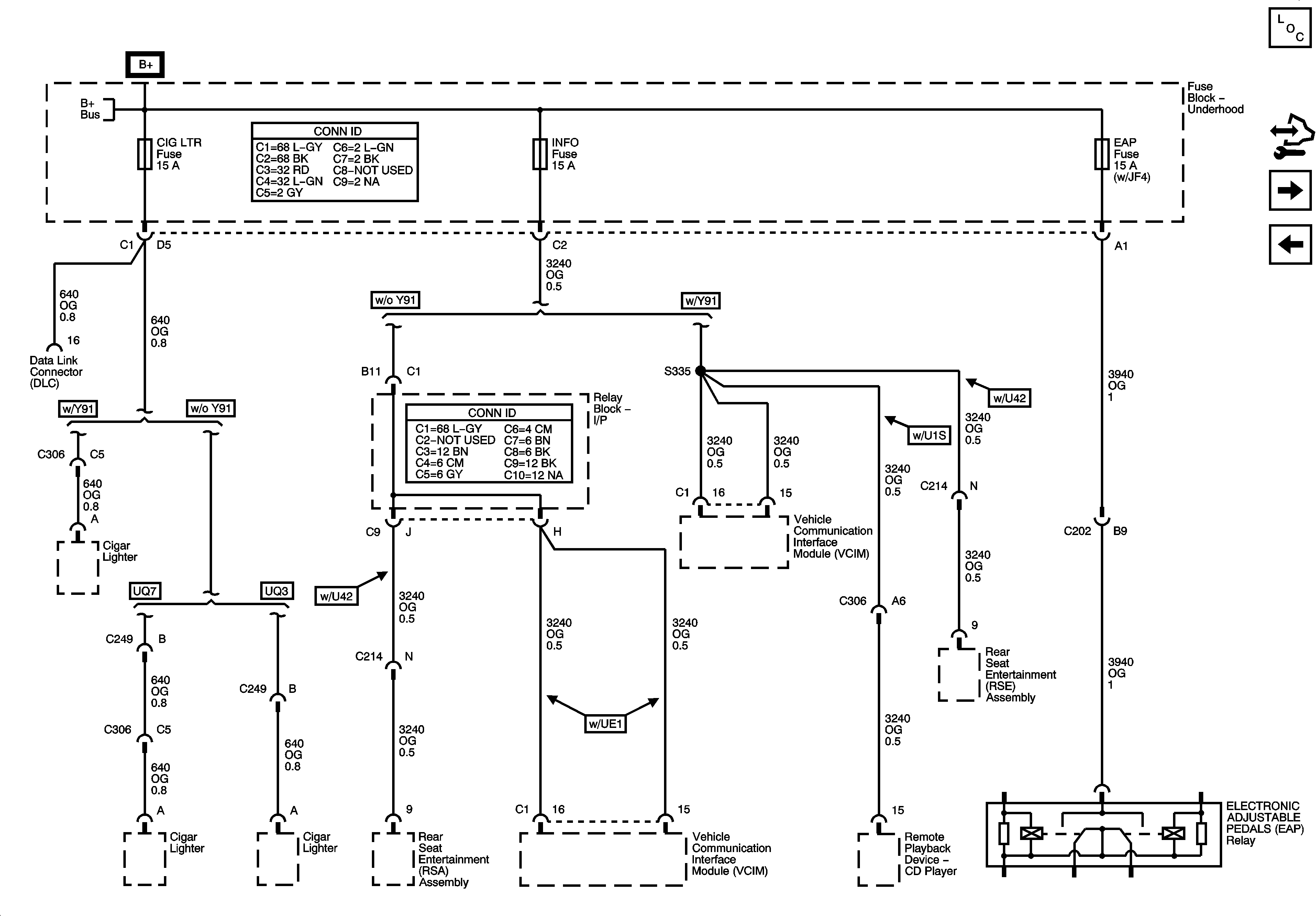
🢒 CIG LTR, EAP, and INFO Fuses
CIG LTR, EAP, and INFO Fuses
CIG LTR, EAP, and INGO Fuses
Master Electrical Component List
Control Module References
RADIO, RADIO AMP, and S/ROOF Fuses
ABS, MBEC 1, RTD, STUD 2, and VSES/ECAS Fuses; RT DOORS and SEATS Circuit Breakers
B+ Bus - 1 of 2