GM Service Manual Online
For 1990-2009 cars only
Makes
🢒
Cadillac
🢒
2007
🢒
Escalade EXT
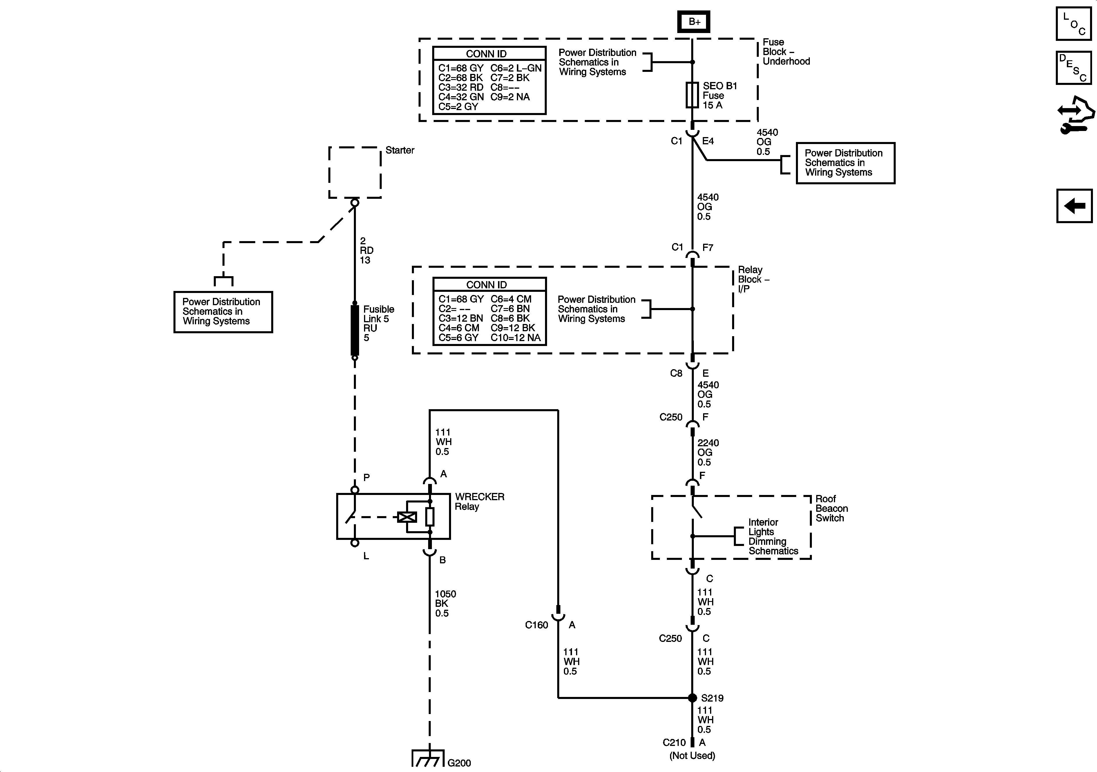
🢒 Wrecker Lighting (5X7)
Wrecker Lighting (5X7)
Wrecker Lighting (5X7)
Master Electrical Component List
Exterior Lighting Systems Description and Operation
Control Module References
Emergency Vehicle Lighting (5Y0)
B+ Bus Bar
IPC/DIC, LH HID, RH HID, SEO B1, SEO B2, and TBC BATT Fuses
Battery Supply - 1 of 2
IPC/DIC, LH HID, RH HID, SEO B1, SEO B2, and TBC BATT Fuses
LED Dimming Supply - 2 of 2
G115 and G200 - 1 of 2