GM Service Manual Online
For 1990-2009 cars only
Makes
🢒
Cadillac
🢒
2007
🢒
Escalade EXT
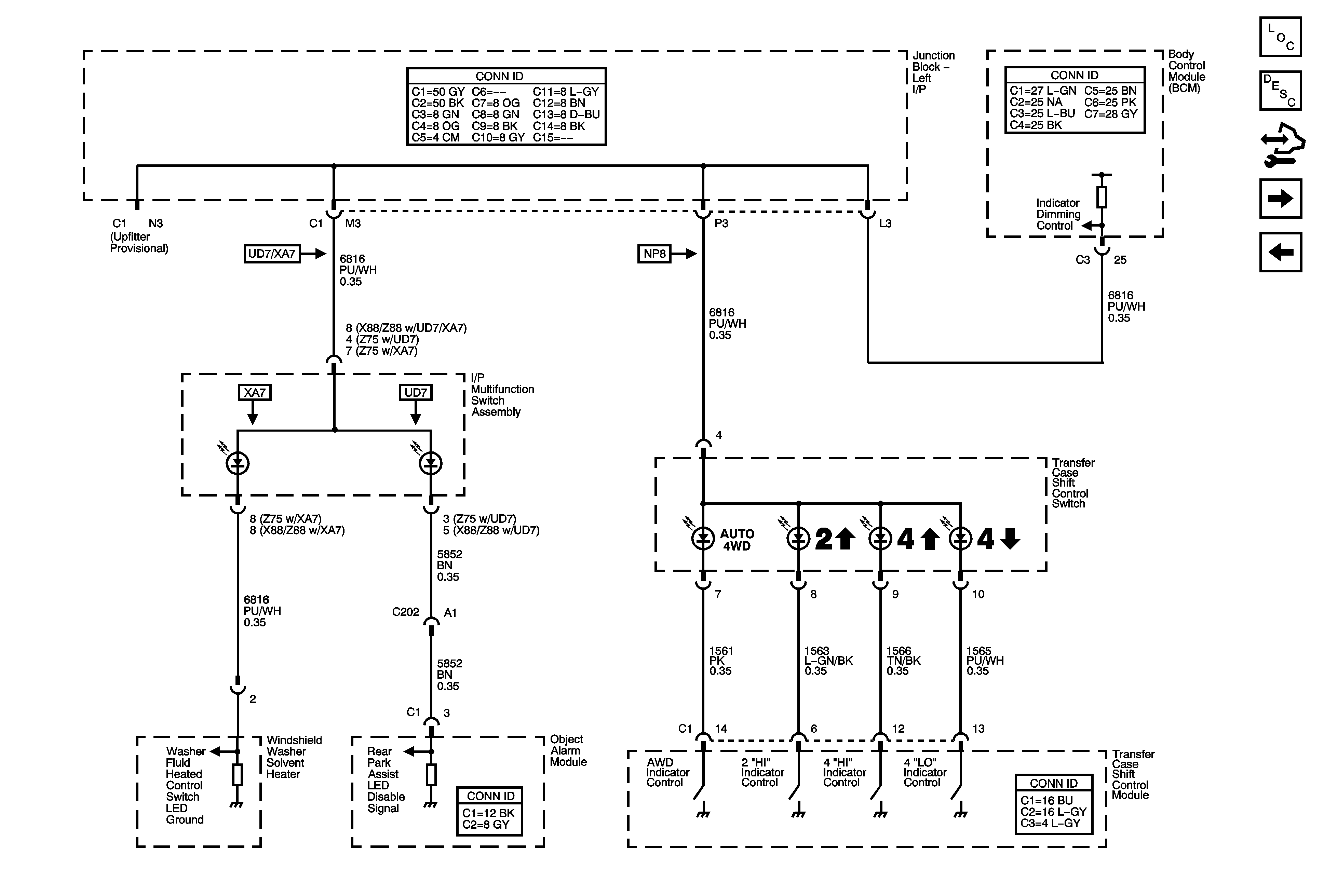
🢒 LED Dimming - 3 of 3
LED Dimming - 3 of 3
LED Dimming - 3 of 3
Master Electrical Component List
Interior Lighting Systems Description and Operation
Control Module References
I/P Bulb Dimming
LED Dimming - 2 of 3