GM Service Manual Online
For 1990-2009 cars only
Makes
🢒
Cadillac
🢒
2007
🢒
Escalade EXT
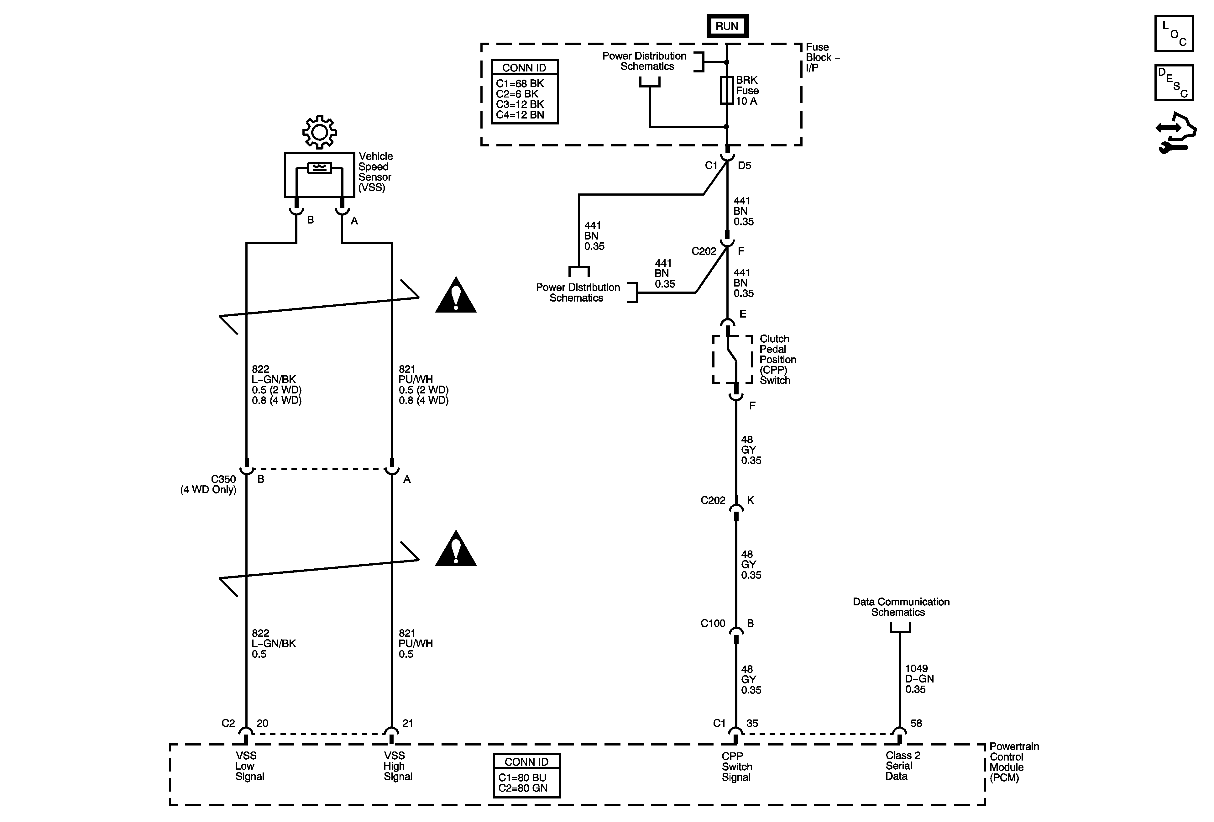
🢒 Manual Transmission NV3500 Schematics
Manual Transmission NV3500 Schematics
Master Electrical Component List
Transmission System Description and Operation
Control Module References
Ignition Switch - START, RUN, and ACC/RUN/START BUS BARS, IGN A, and CRNK Fuses
4WD, BRK, CRUISE, HTR/AC, and HVAC 1 Fuses
Power, Ground, DLC and Splice Pack SP205
Manual Transmission Schematic Icons
Manual Transmission Schematic Icons