GM Service Manual Online
For 1990-2009 cars only
Figure 1:

Module Power, Ground, and Serial Data and Front Sensors


Object Number: 1907009  Size: FS
Master Electrical Component List
SIR System Description and Operation
Control Module References
Steering Wheel and I/P Module
Master Electrical Schematic Icons
RUN/CRANK Bus - AIRBAG IGN, MISC IGN and SEO/ALC Fuses
AIRBAG, SEO B1, and SEO B2 Fuses
Data Communication Schematics
Passenger Presence System
Passenger Presence System
Side Impact Modules and Sensors (ASF)
G300, G302, G311, G312, G313, and G314
Figure 2:

Steering Wheel and I/P Modules


Object Number: 1907015  Size: FS
Master Electrical Component List
SIR System Description and Operation
Control Module References
Side Impact Modules and Sensors (ASF)
Module Power, Ground, and Serial Data and Front Sensors
Master Electrical Schematic Icons
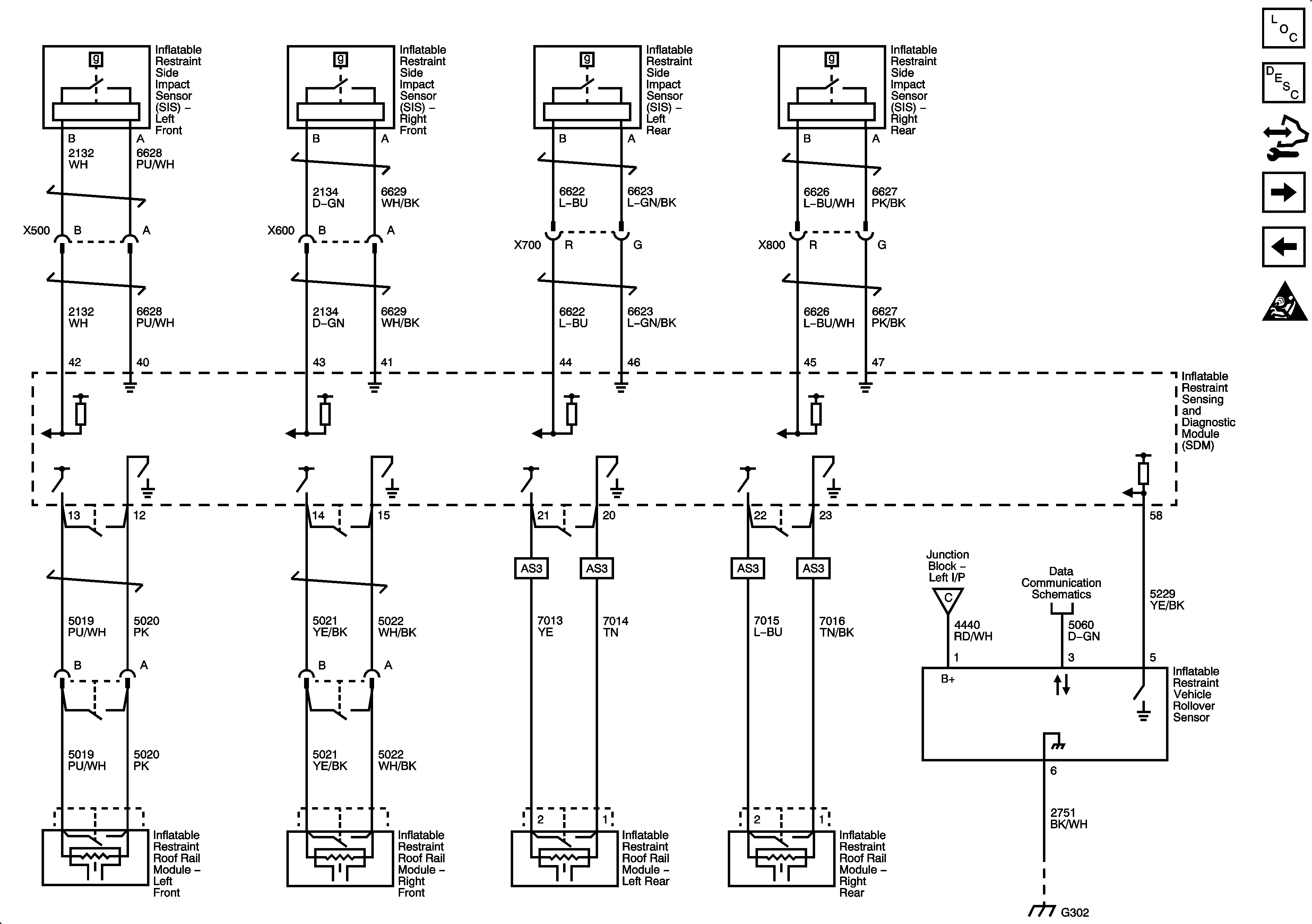
Figure 3:

Side Impact Modules and Sensors (ASF)


Object Number: 1907021  Size: FS
Master Electrical Component List
SIR System Description and Operation
Control Module References
Passenger Presence System
Steering Wheel and I/P Module
Module Power, Ground, and Serial Data and Front Sensors
Low Speed Bus - JX200 - 3 of 3 and JX300
G300, G302, G311, G312, G313, and G314
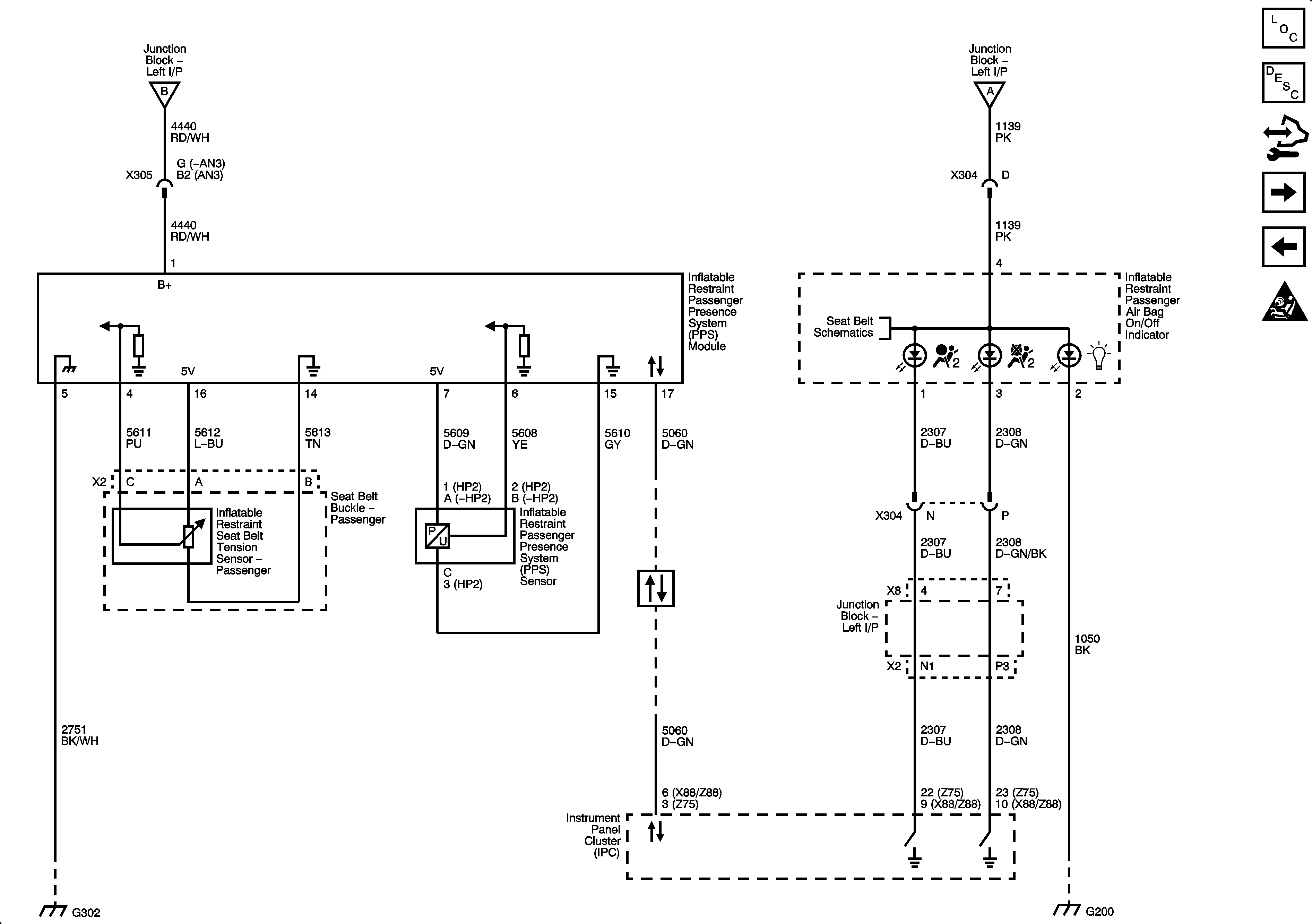
Figure 4:

Passenger Presence System


Object Number: 1907025  Size: FS
Master Electrical Component List
SIR System Description and Operation
Control Module References
Pretensioners and Driver Seat Position Sensor
Side Impact Modules and Sensors (ASF)
Master Electrical Schematic Icons
Module Power, Ground, and Serial Data and Front Sensors
Module Power, Ground, and Serial Data and Front Sensors
Seat Belts Schematics
Data Communication Schematics
G300, G302, G311, G312, G313, and G314
G200 - 1 of 2
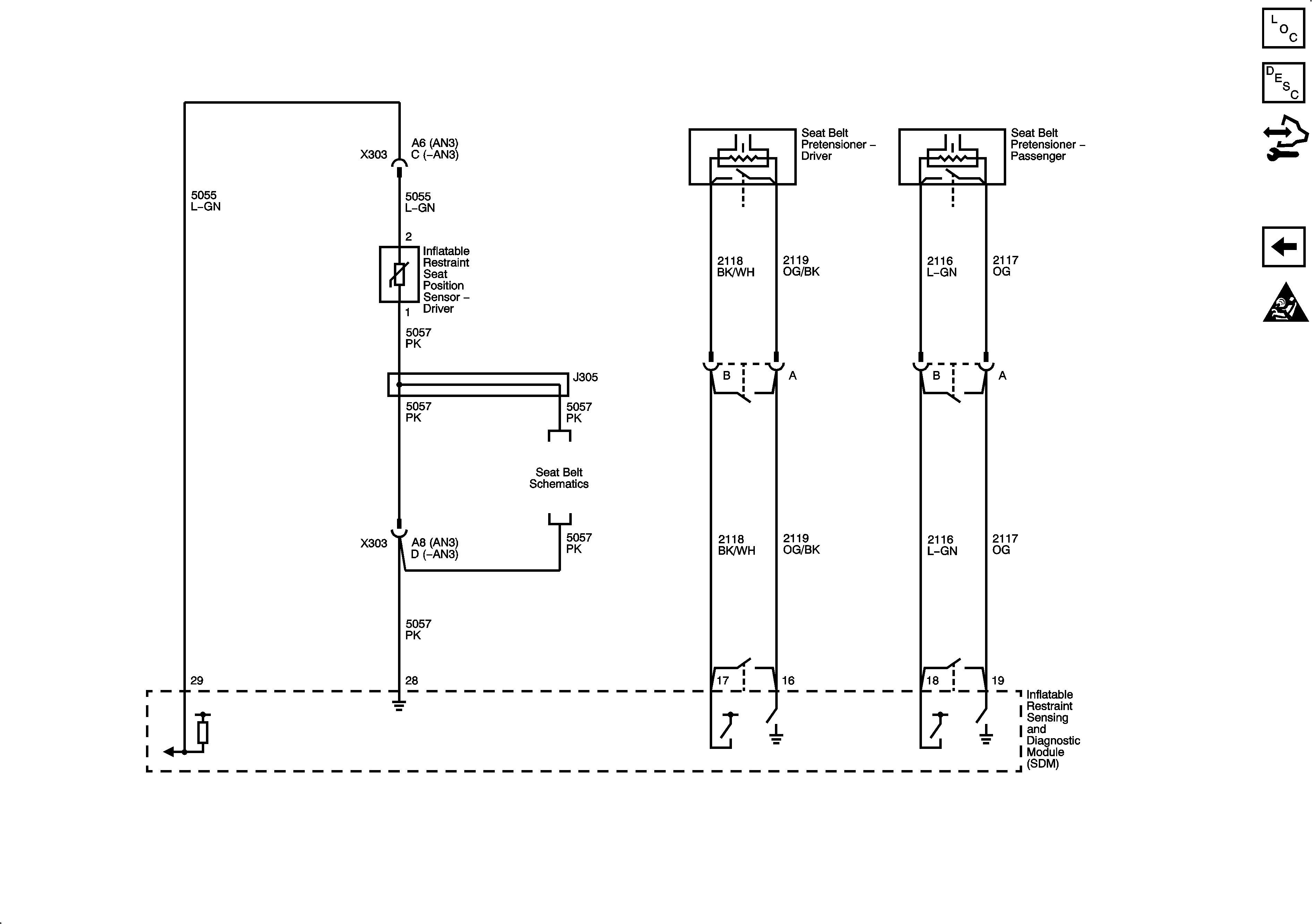
Figure 5:

Pretensioners and Driver Seat Position Sensor


Object Number: 1907029  Size: FS
Master Electrical Component List
SIR System Description and Operation
Control Module References
Passenger Presence System
Master Electrical Schematic Icons
Seat Belts Schematics