GM Service Manual Online
For 1990-2009 cars only
Makes
🢒
Cadillac
🢒
2005
🢒
SRX
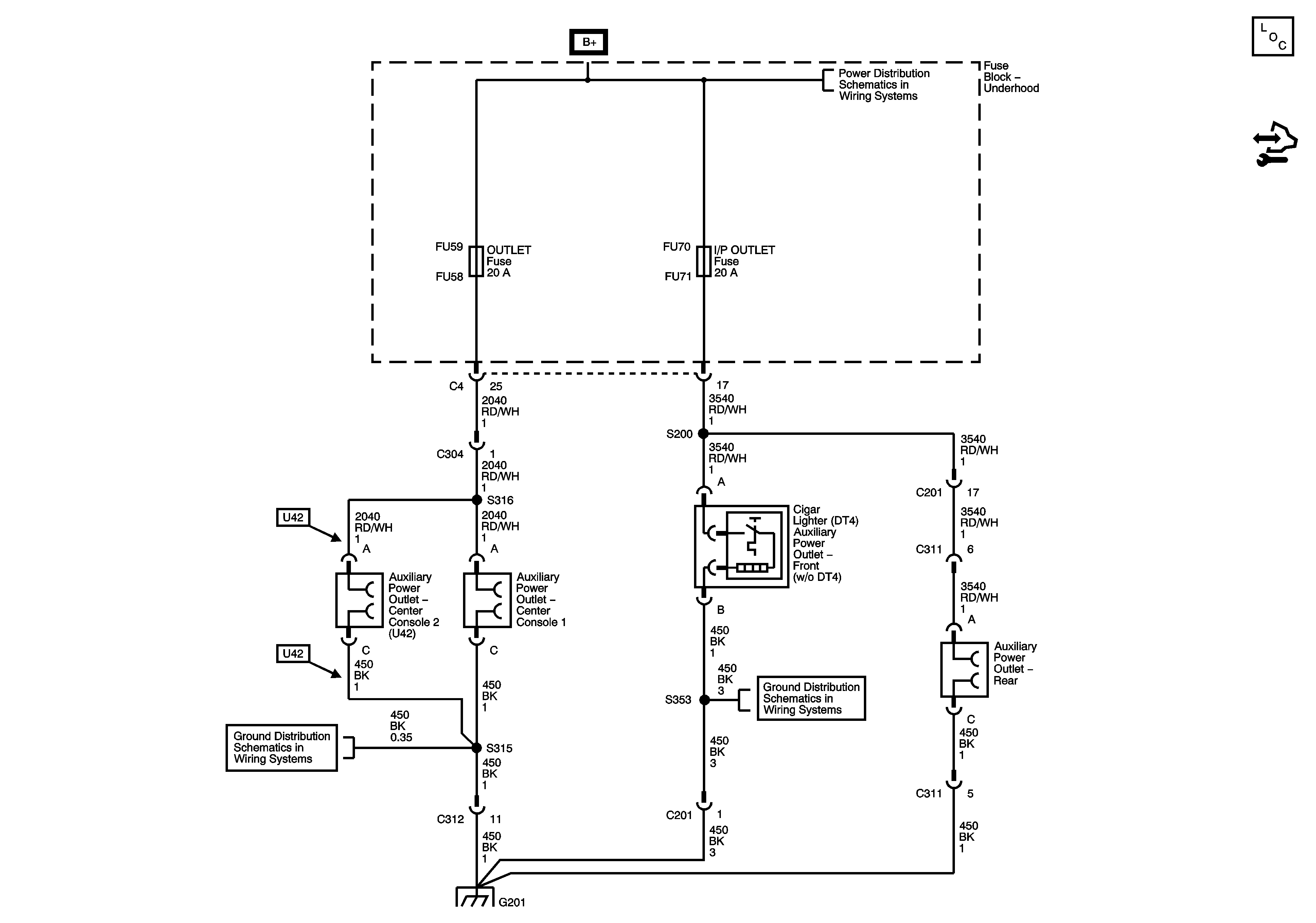
🢒 Cigar Lighter and Auxiliary Outlet Schematic
Cigar Lighter and Auxiliary Outlet Schematic
Master Electrical Component List
Control Module References
Fuse Block - Underhood B+ Bus Schematic
G201
G201
G201