GM Service Manual Online
For 1990-2009 cars only
Makes
🢒
Cadillac
🢒
2005
🢒
SRX
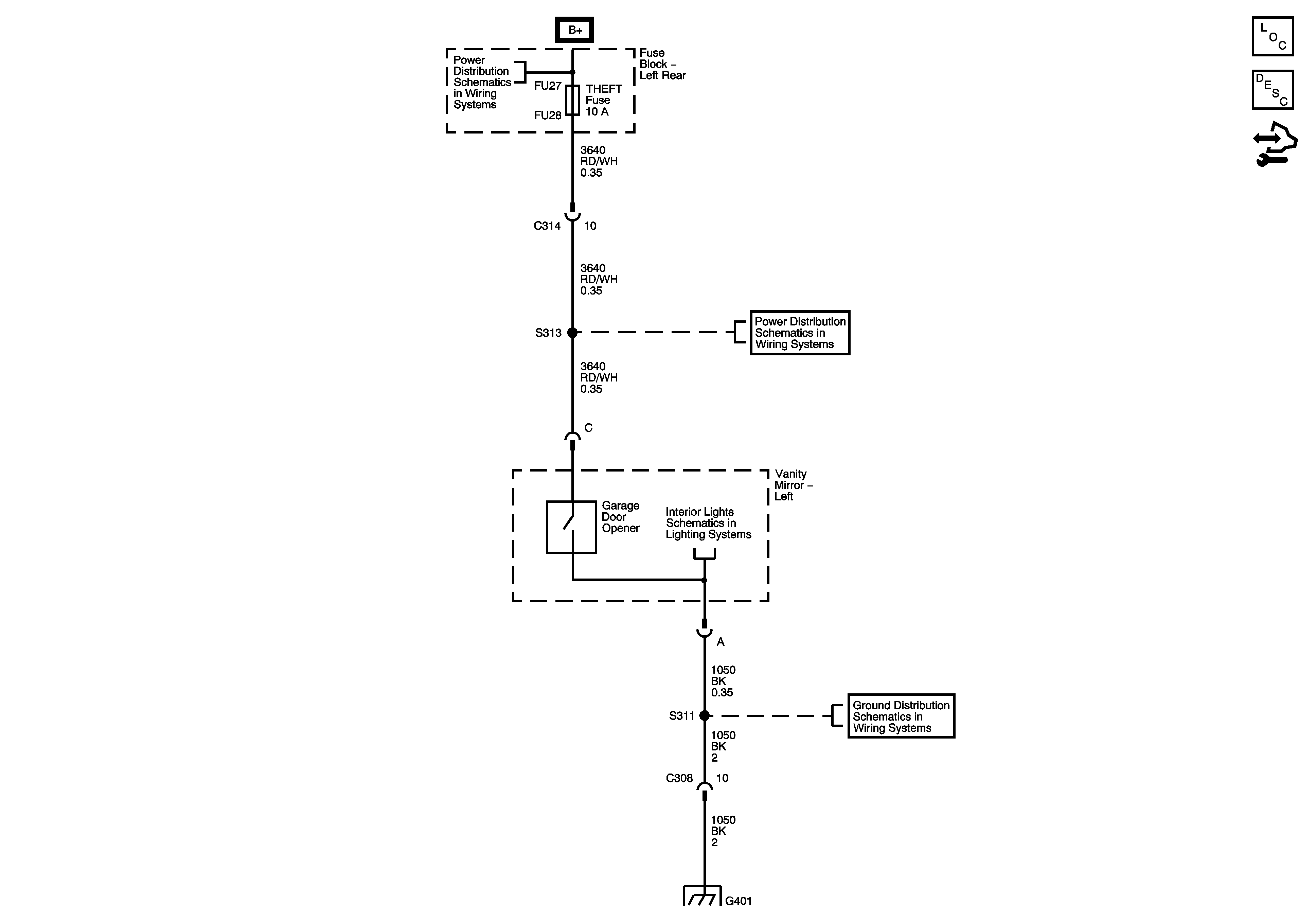
🢒 Garage Door Opener Schematic
Garage Door Opener Schematic
Master Electrical Component List
Garage Door Opener Description and Operation
Control Module References
Fuse Block - Left Rear B+ Bus
FFSM, FFS SW, and THEFT Fuses and SEAT Circuit Breaker
Courtesy/Reading Lamps
G401 - 2 of 2
G401 - 2 of 2