GM Service Manual Online
For 1990-2009 cars only

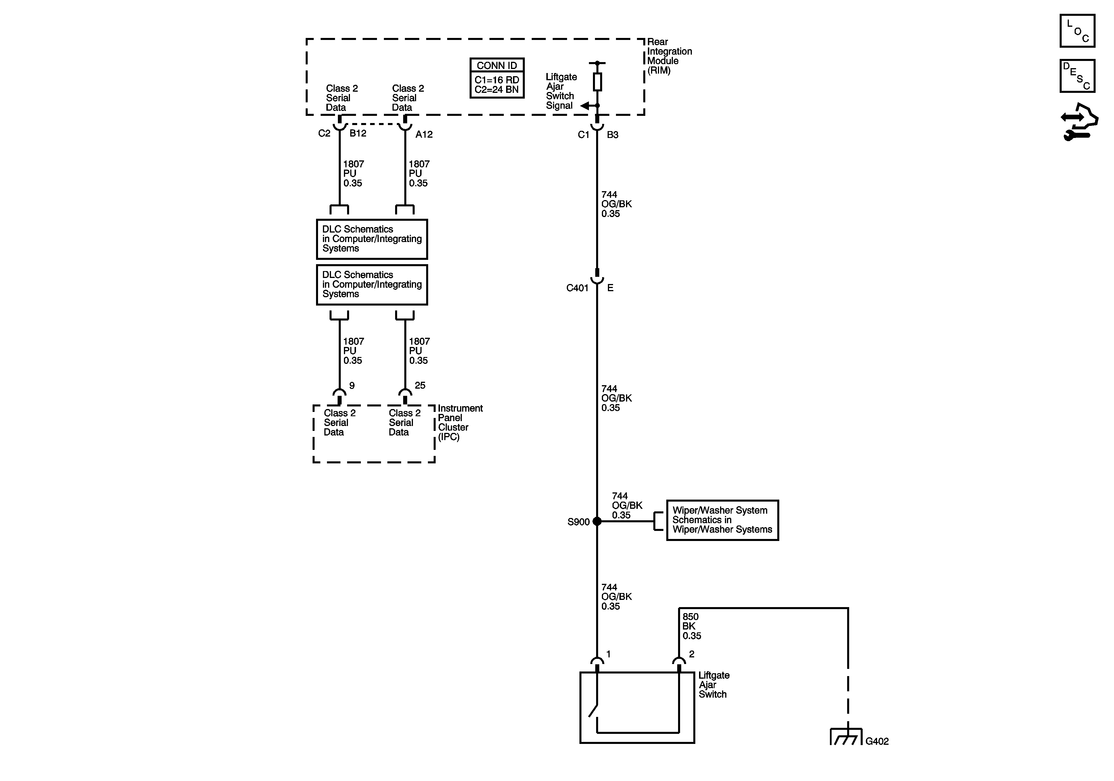
Liftgate Adjar Schematic


Object Number: 1453004  Size: FS
Master Electrical Component List
Luggage Compartment Description and Operation
Control Module References
Class 2 Serial Data - 2 of 2
Class 2 Serial Data - 1 of 2
Rear Wiper/Washer
G402 - 2 of 2