GM Service Manual Online
For 1990-2009 cars only
Makes
🢒
Cadillac
🢒
2007
🢒
STS
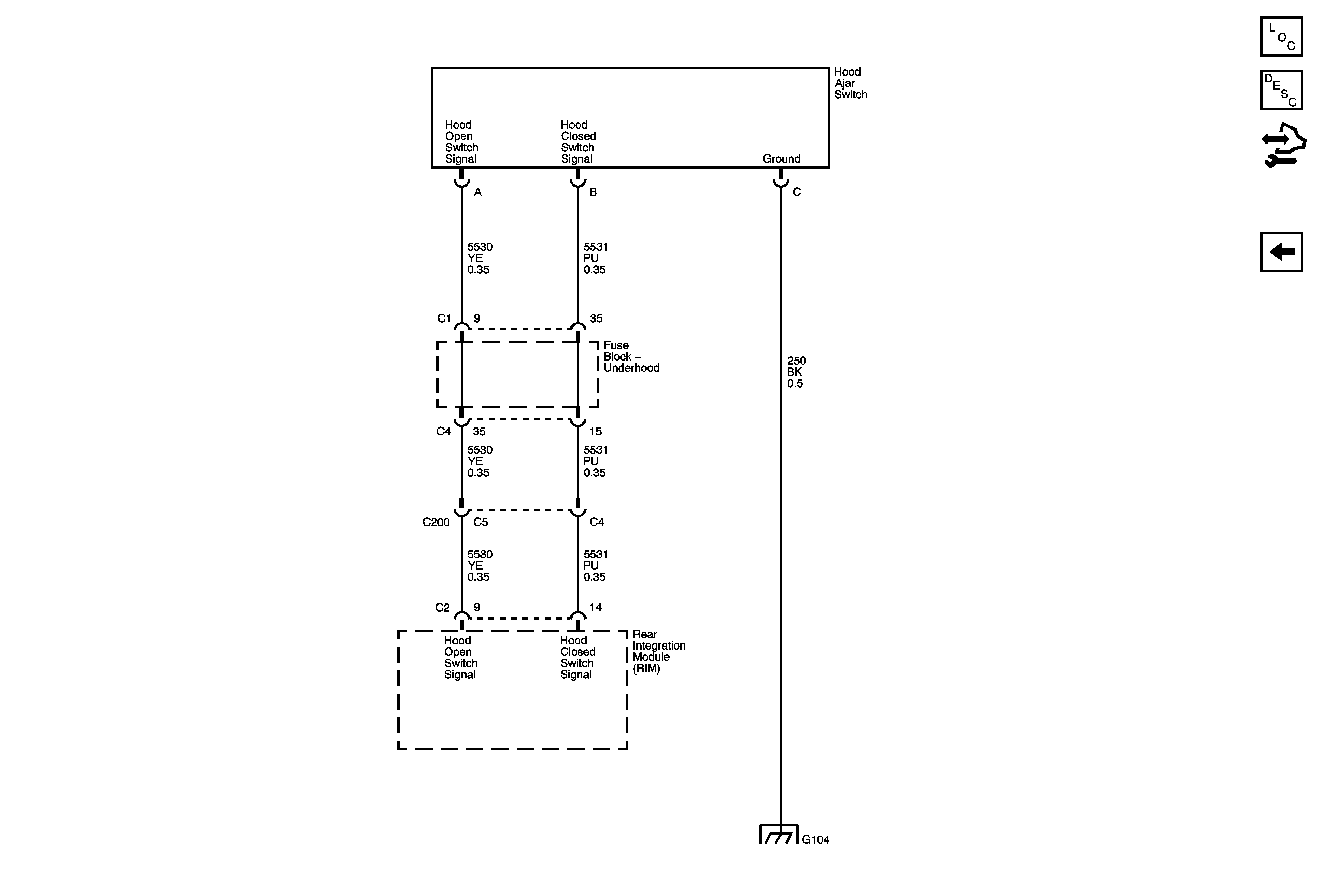
🢒 Hood Ajar Switch
Hood Ajar Switch
Hood Ajar Switch Schematic
Master Electrical Component List
Charging System Description and Operation
Control Module References
Charging System
G104 (1 of 2)