GM Service Manual Online
For 1990-2009 cars only
Makes
🢒
Cadillac
🢒
2009
🢒
STS
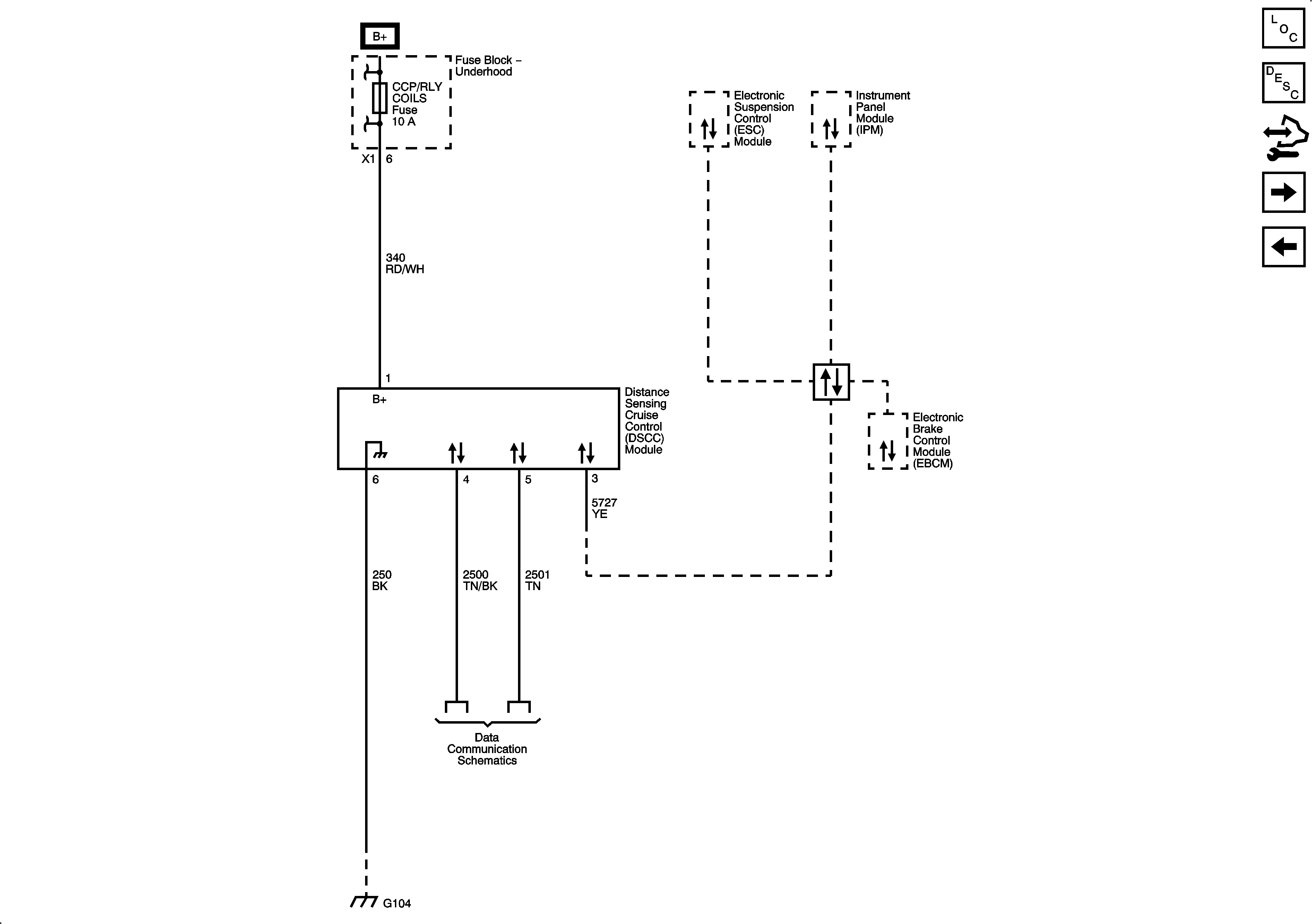
🢒 Distance Sensing Cruise Control Module - K59
Distance Sensing Cruise Control Module - K59
Distance Sensing Cruise Control Module - K59
Master Electrical Component List
Cruise Control Description and Operation (Adaptive Cruise Control)
Control Module References
DLC, Brake Pedal Position Sensor
Cruise Control Switch, Steering Wheel Controls