GM Service Manual Online
For 1990-2009 cars only
Makes
🢒
Cadillac
🢒
2000
🢒
Seville
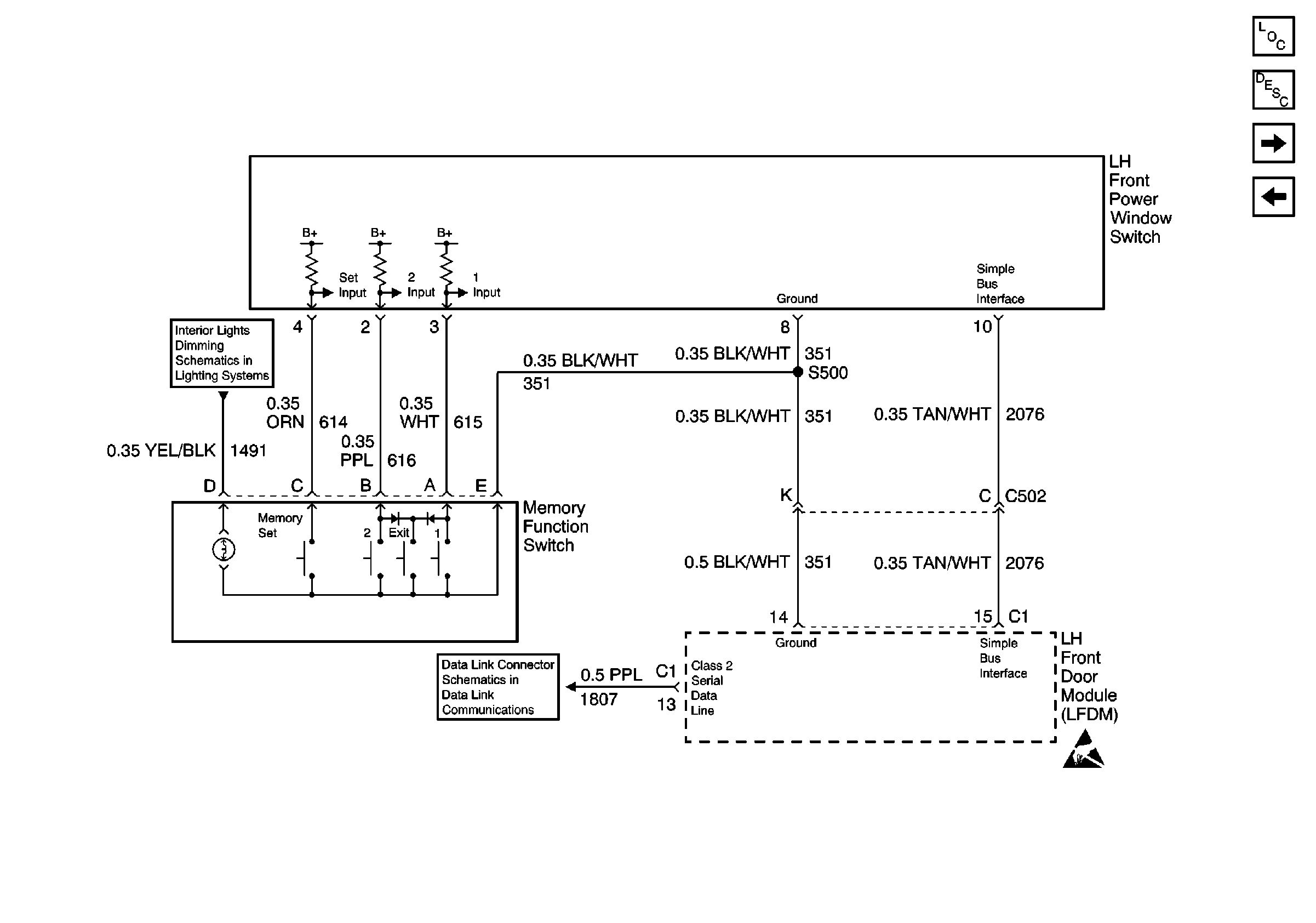
🢒 Memory Function Switch
Memory Function Switch
Memory Function Switch
Power Seat Systems Components
Memory Seat Circuit Description
PWR, GND, LH Seat Switch, and MSM
Class 2 Serial Data Line (RH Drive)
Front Door Dimming
Recline, Headrest Motors and Position Sensors; Class 2