GM Service Manual Online
For 1990-2009 cars only
Makes
🢒
Chevrolet
🢒
2002
🢒
Astro - 2WD
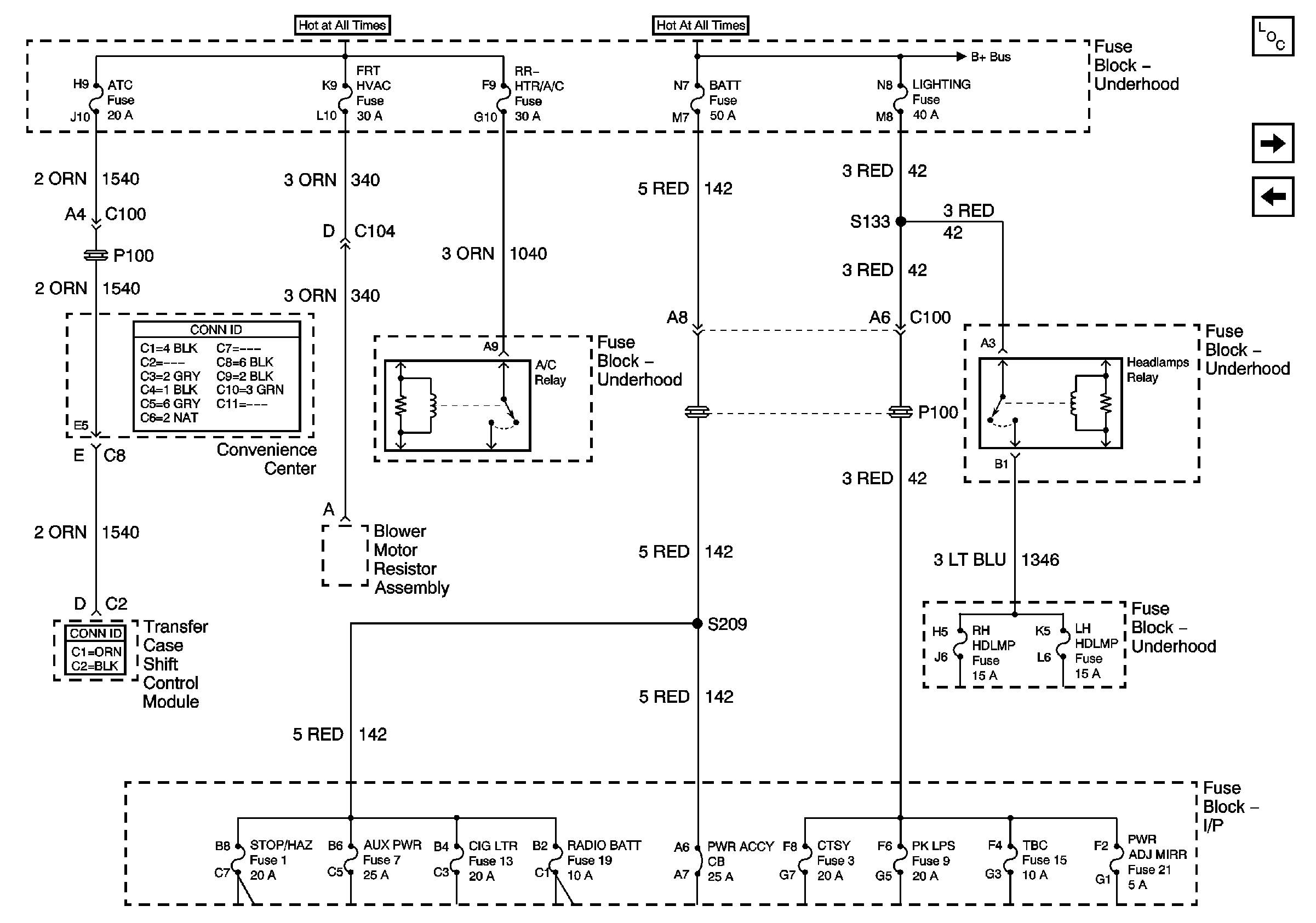
🢒 Battery and Lighting Fuse
Battery and Lighting Fuse
Battery and Lighting Fuse
Master Electrical Component List
Upfitter Battery and Upfitter Accy Fuse
Battery and Fuse Block - Underhood
Battery and Fuse Block - Underhood