GM Service Manual Online
For 1990-2009 cars only
Makes
🢒
Chevrolet
🢒
2000
🢒
Blazer - 2WD
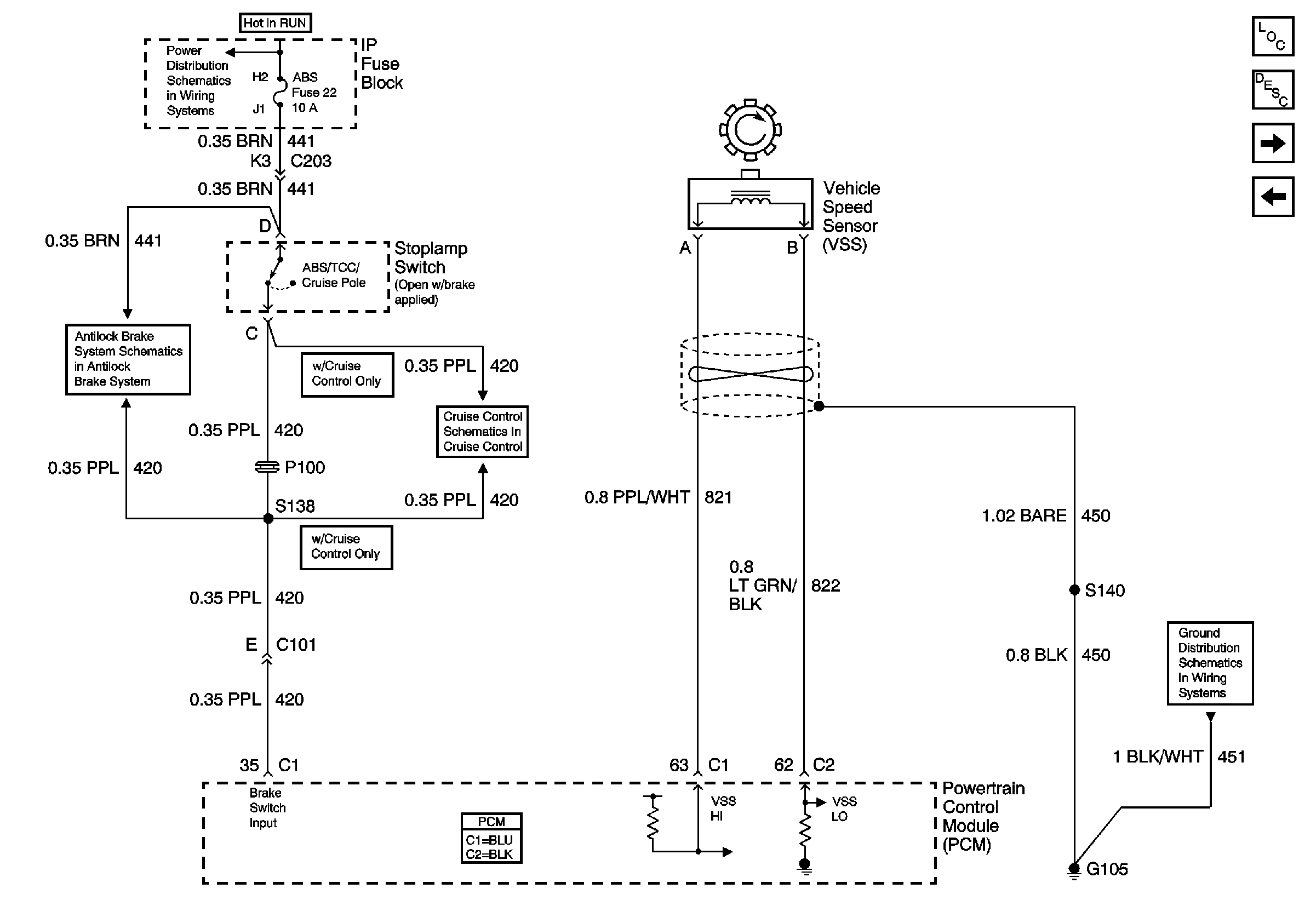
🢒 Brake Switch, VSS Inputs (2.2L)
Brake Switch, VSS Inputs (2.2L)
Brake Switch, VSS Inputs (2.2L)
Automatic Transmission Components
Electronic Component Description
Valve Controls (4.3L)
Switch Inputs and PNP Switch (2.2L)
Ign ACC, RUN and RAP Bus Bar
Power and Ground (310 ABS)
Clutch Pedal Position Switch and Stoplamp Switch
Powertrain Control Module Connector End Views
Handling ESD Sensitive Parts Notice
G103 and G105 (2.2L)