GM Service Manual Online
For 1990-2009 cars only
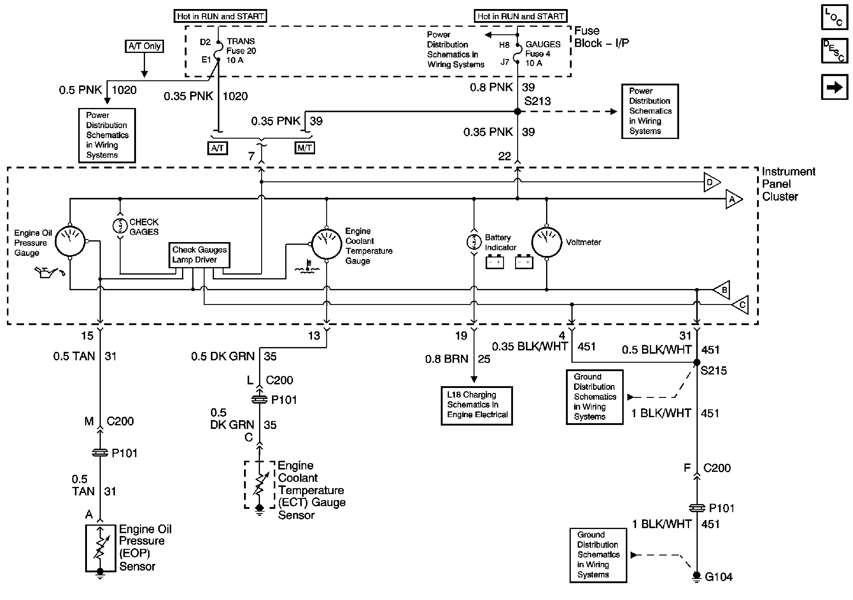
Figure 1:

Oil Pressure, Coolant Temperature, and Voltage Gages, Battery and Check Gages Indicators


Object Number: 1449210  Size: FS
Master Electrical Component List
Instrument Cluster Description and Operation
Speedometer, Tachometer, and Fuel Gage
Pwr Wdos Circuit Breaker, Wiper, Radio, Clock, and Trans Fuses
IGN A Fuse and Ignition Switch
IGN A Fuse and Ignition Switch
Gages Fuse and Turn-B/U Fuse
Speedometer, Tachometer, and Fuel Gage
G104, L18, 1 of 2, All Except HO2S Circuit
L18 Charging
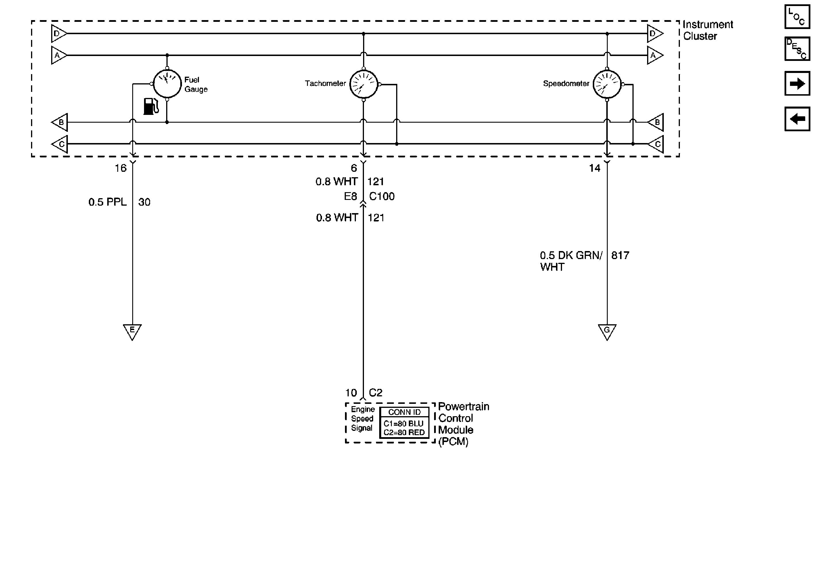
Figure 2:

Speedometer, Tachometer, and Fuel Gage


Object Number: 1449216  Size: FS
Master Electrical Component List
Instrument Cluster Description and Operation
Indicators and Illumination Lamps
Oil Pressure, Coolant Temperature, and Voltage Gages, Battery, and Check Gages Indicators
Oil Pressure, Coolant Temperature, and Voltage Gages, Battery, and Check Gages Indicators
Indicators and Illumination Lamps
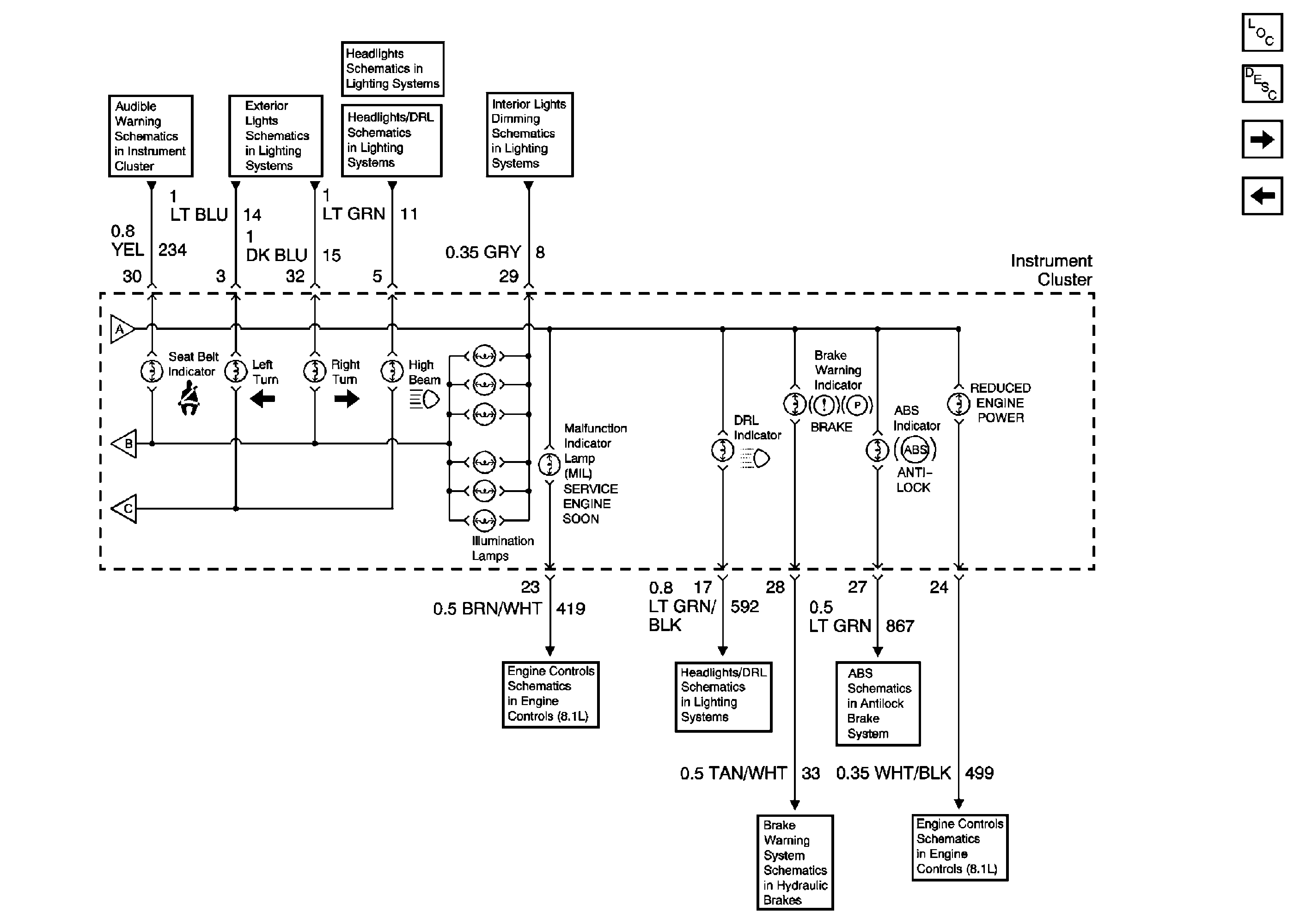
Figure 3:

Indicators and Illumination Lamps


Object Number: 1449217  Size: FS
Master Electrical Component List
Indicator/Warning Message Description and Operation
Fuel Tank Level Sensor Circuits
Speedometer, Tachometer, and Fuel Gage
Speedometer, Tachometer, and Fuel Gage
Audiable Waring Schematics
Park Lamps Control, Front Park, Turn and Side Marker Lamps
Headlights Schematics
Daytime Running Lamps Control Circuits
Interior Dimming Schematics
2004 CK 400 Mexico TAC Power, Grounding, Data Circuits, and Indicator Control
EBCM Power, Grounding, DLC, and Indicator Lamps
Brake Warning System Schematics
Daytime Running Lamps Control Circuits
Theft Deterrent System Schematics
PCM Power, Grounding, DLC, and MIL
Figure 4:

Fuel Tank Level Sensor Circuits


Object Number: 1449218  Size: FS
Master Electrical Component List
Instrument Cluster Description and Operation
Indicators and Illumination Lamps
Speedometer, Tachometer, and Fuel Gage
Speedometer, Tachometer, and Fuel Gage
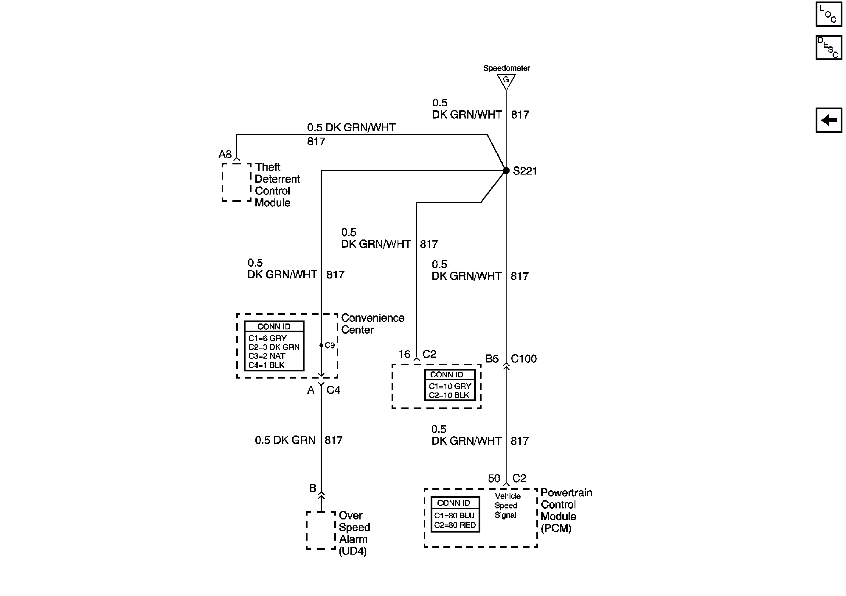
Figure 5:

Vehicle Speed Sensor Circuits


Object Number: 1449221  Size: FS
Master Electrical Component List
Instrument Cluster Description and Operation
Fuel Tank Level Sensor Circuits
Speedometer, Tachometer, and Fuel Gage
Speedometer, Tachometer, and Fuel Gage