GM Service Manual Online
For 1990-2009 cars only
Makes
🢒
Chevrolet
🢒
2000
🢒
Chevy C Silverado - 2WD
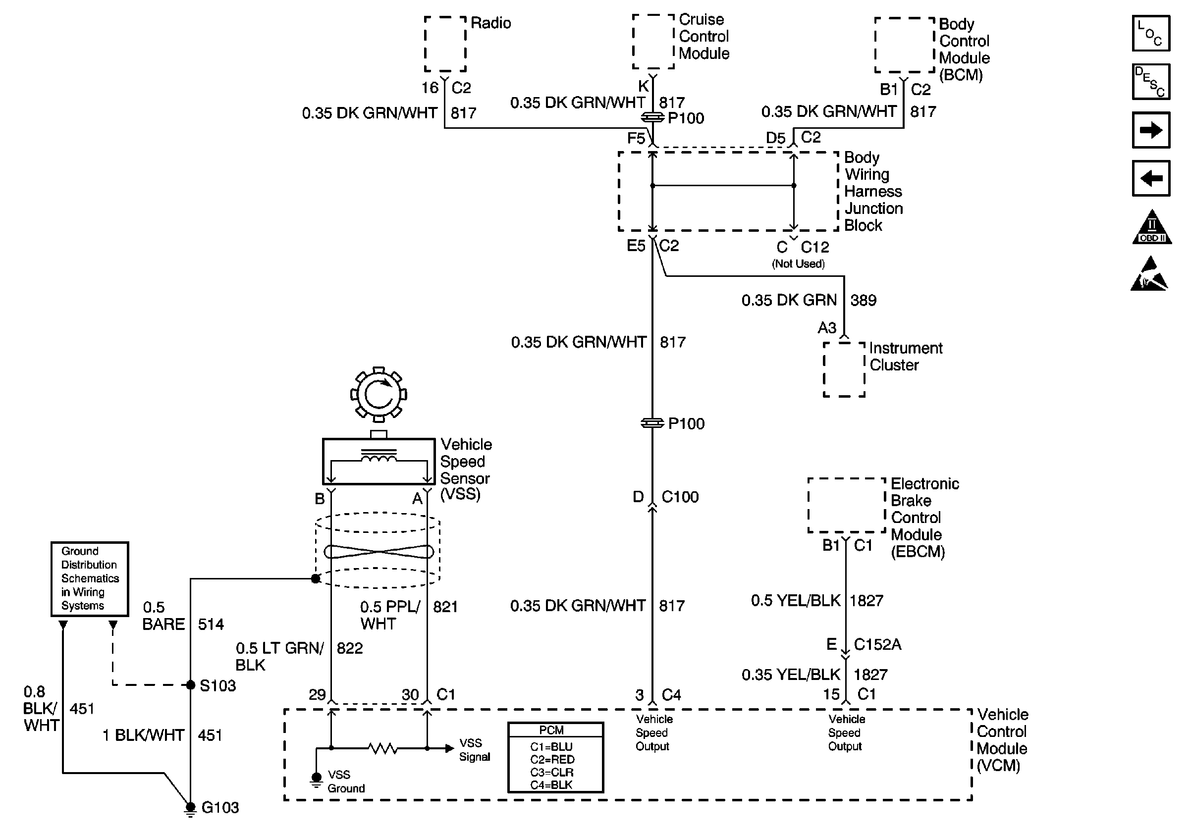
🢒 VSS Circuit, EBCM, VCM
VSS Circuit, EBCM, VCM
VSS Circuit, EBCM, VCM
Ground Distribution Schematics
Engine Controls Components
Evaporative Emission Control System Operation Description Enhanced
VCM, HO2 Sensors, G104
AIR Relay, AIR Pump, G104, VCM, IGN E Fuse
OBD II Symbol Description Notice
Handling ESD Sensitive Parts Notice