GM Service Manual Online
For 1990-2009 cars only
Makes
🢒
Chevrolet
🢒
2002
🢒
Chevy C Silverado - 2WD
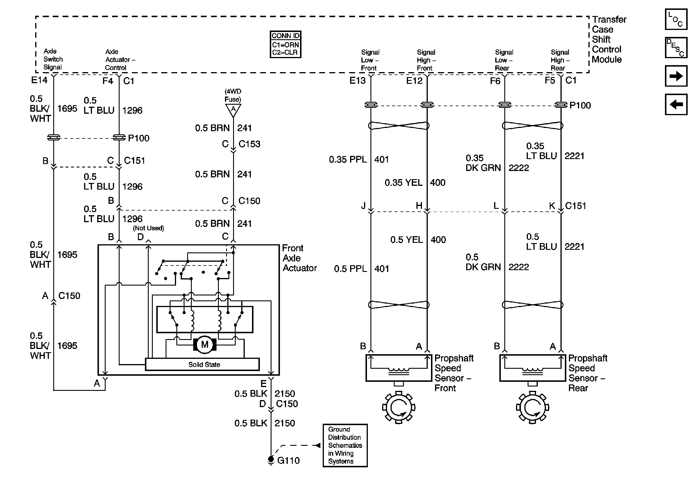
🢒 Propshaft Speed Sensors and Front Axle Actuator
Propshaft Speed Sensors and Front Axle Actuator
Propshaft Speed Sensors and Front Axle Actuator
Master Electrical Component List
Transfer Case Description and Operation
Switch Inputs and Class 2
Power, Ground and Transfer Case Encoder Motor
Power, Ground and Transfer Case Encoder Motor
G100 and G110