GM Service Manual Online
For 1990-2009 cars only
Makes
🢒
Chevrolet
🢒
2007
🢒
Colorado Pickup - 2WD
🢒 Traction Control
Traction Control
Traction Control
Master Electrical Component List
ABS Description and Operation
Body Control Module Programming and Setup
Power, Ground, and Electric Brake Control Module
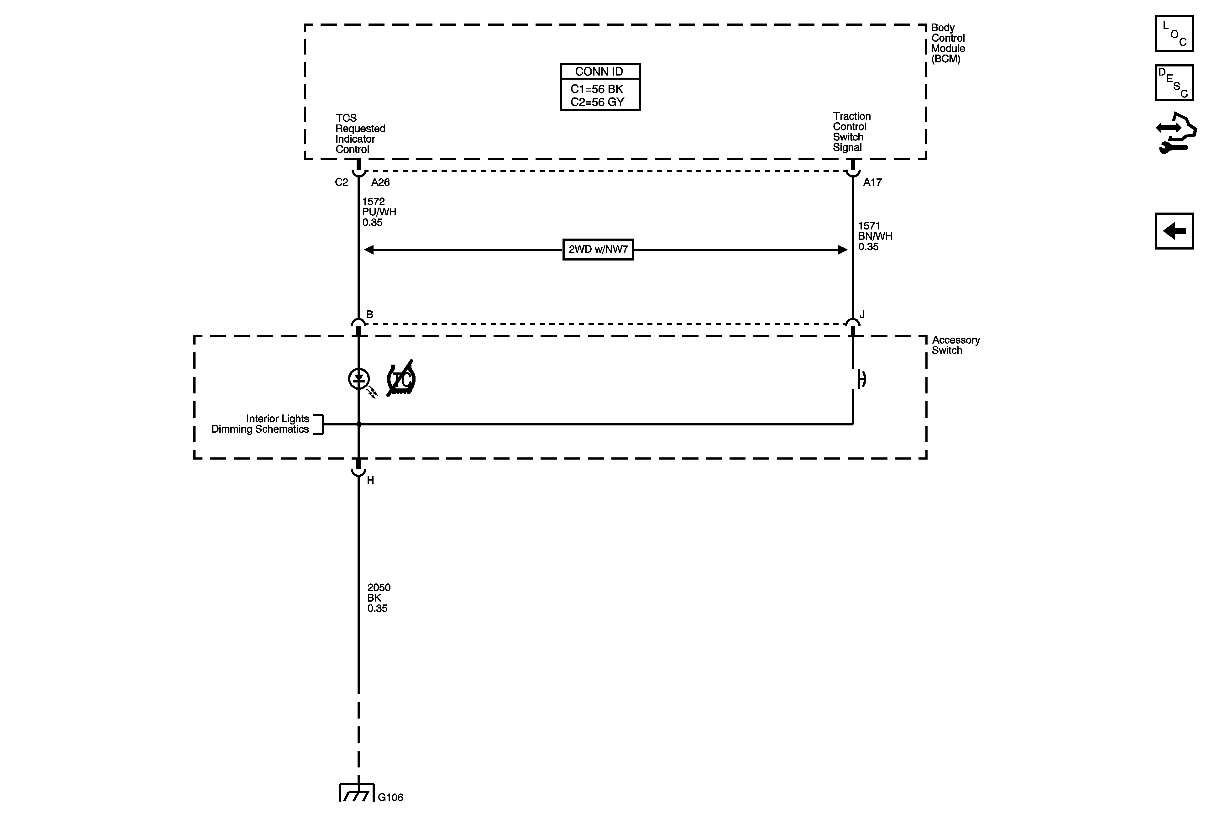
Interior Lights Dimming Schematics
Splice Pack SP106 and G106 - 1 of 2