GM Service Manual Online
For 1990-2009 cars only
Makes
🢒
Chevrolet
🢒
2005
🢒
Corvette
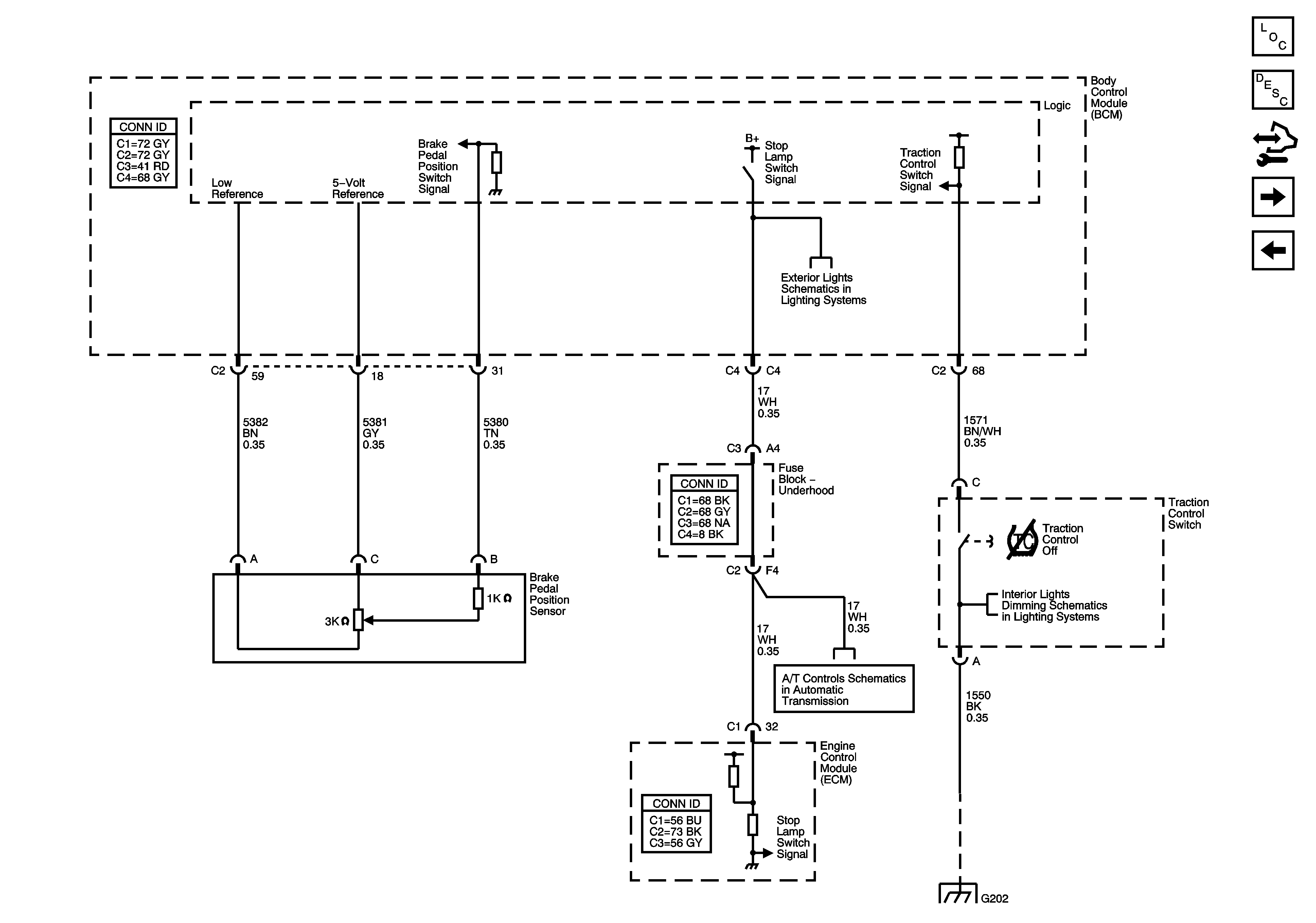
🢒 Brake Pedal Signal and Traction Control Switch
Brake Pedal Signal and Traction Control Switch
Brake Pedal Signal and Traction Control Switch
Master Electrical Component List
ABS Description and Operation
Control Module References
Stability Control Sensors
Wheel Speed Sensors
Hazard, Stop Lamps and Turn Signal Outputs
DLC, HVAC Control Module, Radio and Switches
DLC, Ground, MIL and Power
G202 1 of 2