GM Service Manual Online
For 1990-2009 cars only
Makes
🢒
Chevrolet
🢒
2005
🢒
Corvette
🢒 Passenger
Passenger
Passenger
Master Electrical Component List
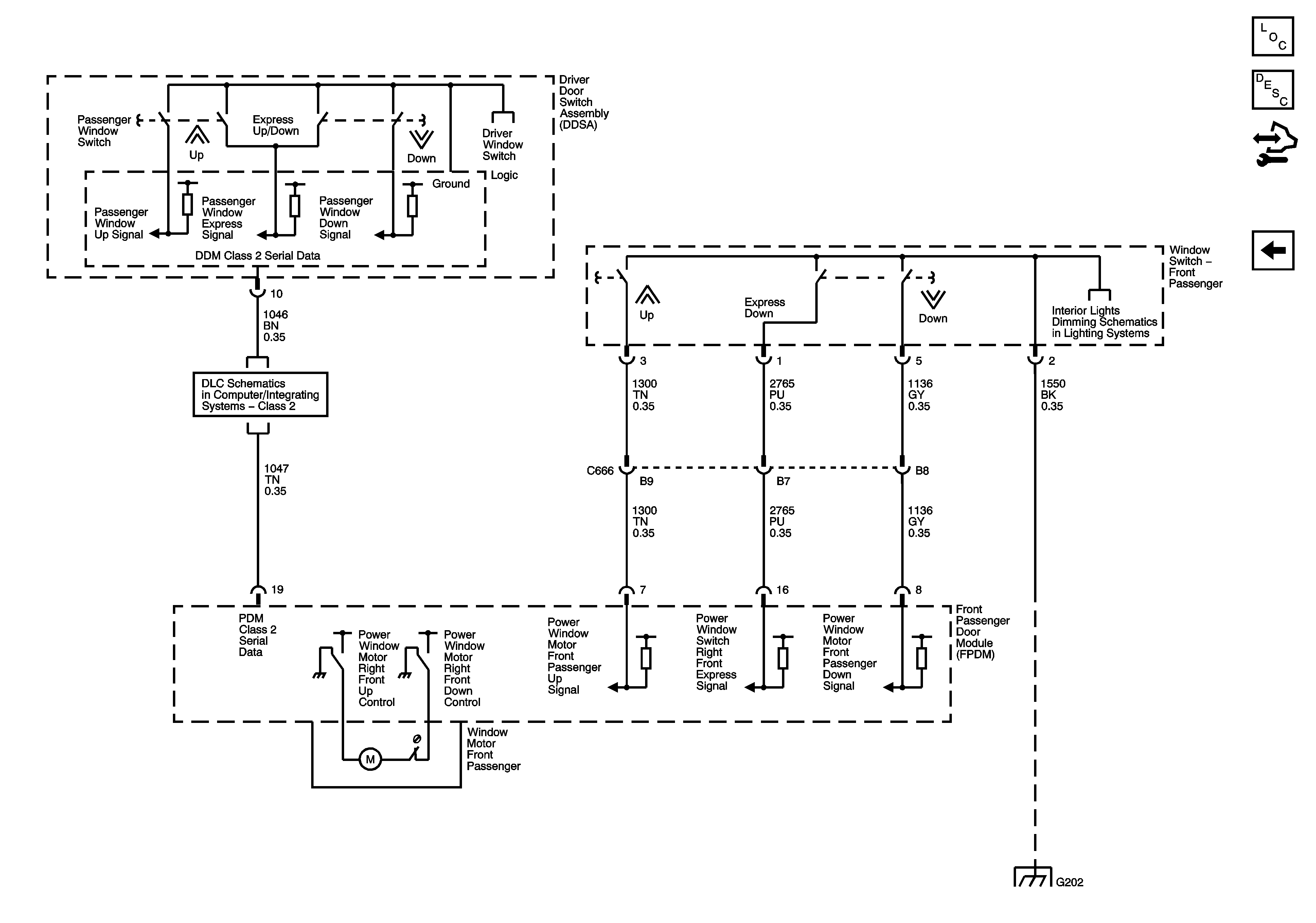
Power Windows Description and Operation
Control Module References
Driver
Driver
Class 2
DLC, HVAC Control Module, Radio and Switches
G202 1 of 2