GM Service Manual Online
For 1990-2009 cars only
Makes
🢒
Chevrolet
🢒
2008
🢒
Epica
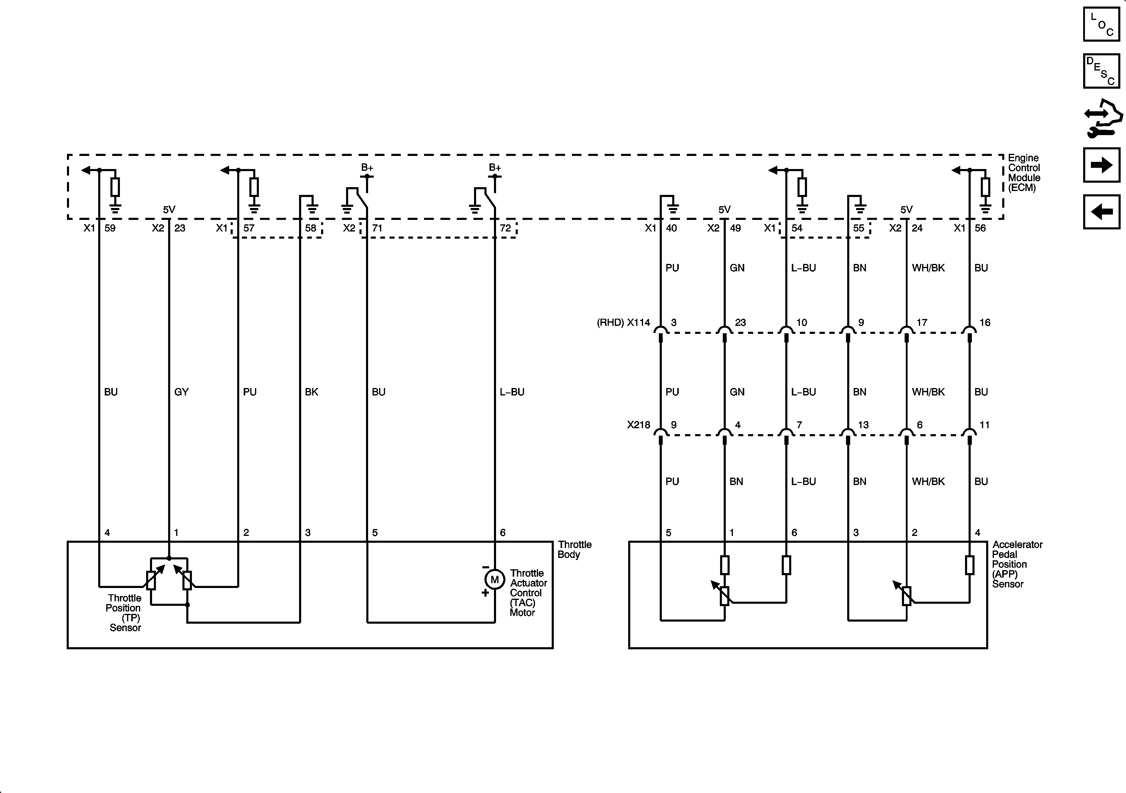
🢒 Electronic Throttle Controls
Electronic Throttle Controls
Electronic Throttle Controls
Master Electrical Component List
Throttle Actuator Control (TAC) System Description
Control Module References
Ignition System, 1 of 2
Engine Data Sensors - Oxygen Sensors