GM Service Manual Online
For 1990-2009 cars only
Makes
🢒
Chevrolet
🢒
2008
🢒
Epica
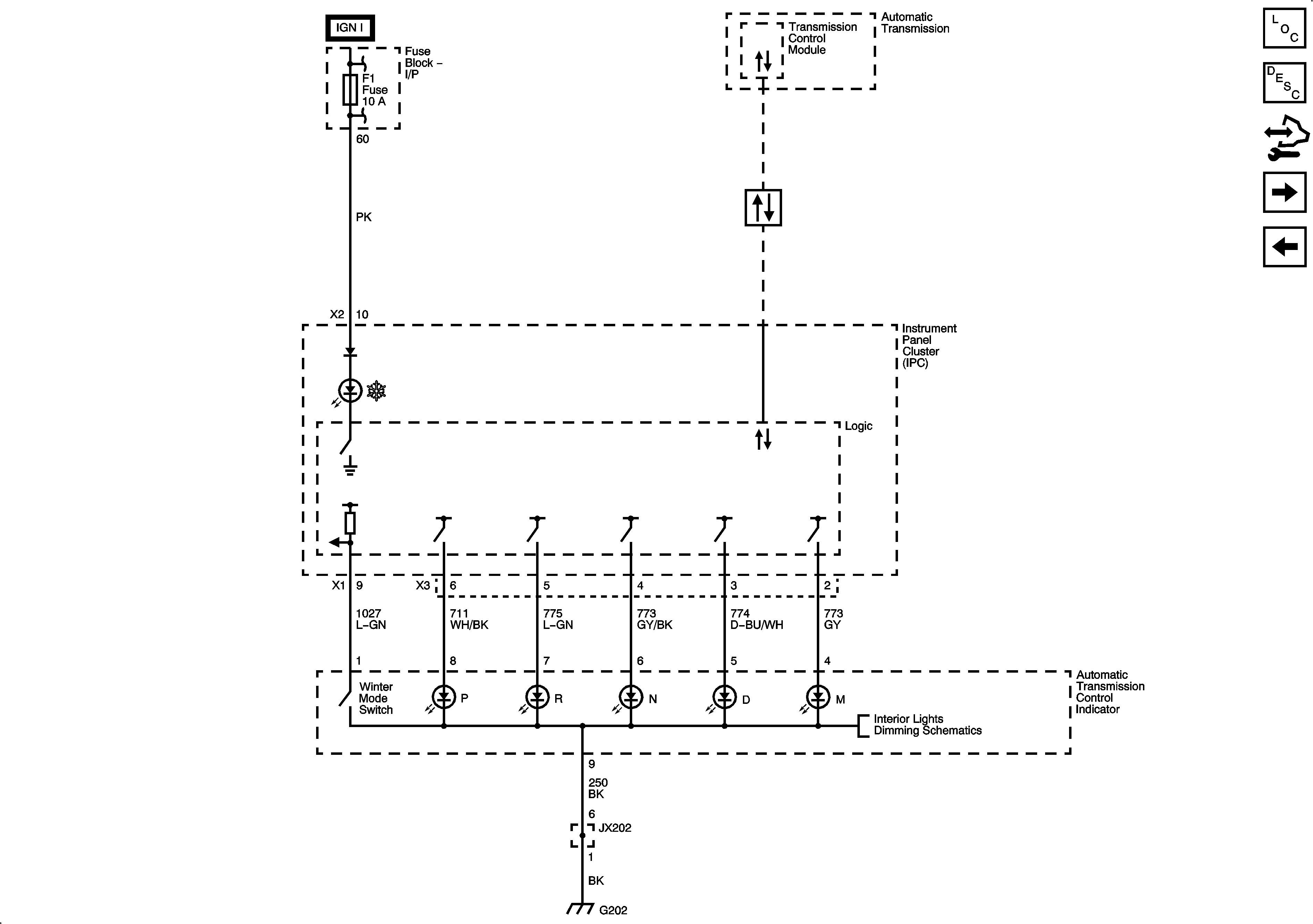
🢒 Automatic Transmission Control Indicator (MH7/MH8)
Automatic Transmission Control Indicator (MH7/MH8)
Automatic Transmission Control Indicator (MH7/MH8)
Master Electrical Component List
Instrument Cluster Description and Operation
Control Module References
Indicators 1 of 3
Power, Ground, Gages and Serial Data (Diesel)
Ignition Switch
Fuse Block - I/P F1, F2, F3, F11, F12, F18 Fuses
High Speed GMLAN - MH7/MH8
Illumination
G202, 2 of 2