GM Service Manual Online
For 1990-2009 cars only
Makes
🢒
Chevrolet
🢒
1999
🢒
Express
🢒 Secondary Air Injection Controls
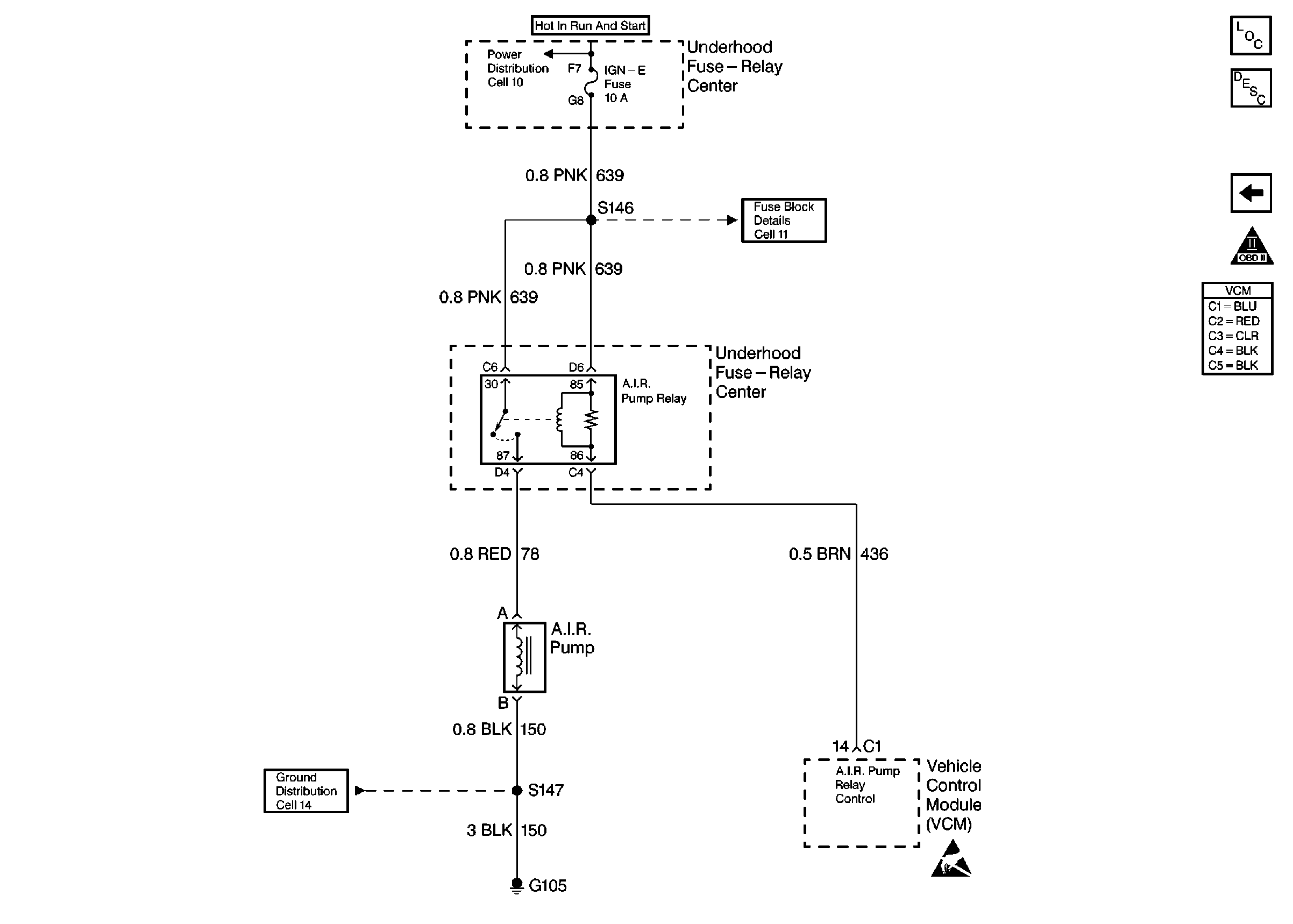
Secondary Air Injection Controls
AIR Pump Controls
Engine Controls Components
Information Sensors/Switches Description
Power, Ground, MIL and DLC
A/C Controls
OBDII Symbol Description Notice