GM Service Manual Online
For 1990-2009 cars only
Makes
🢒
Chevrolet
🢒
2005
🢒
Express
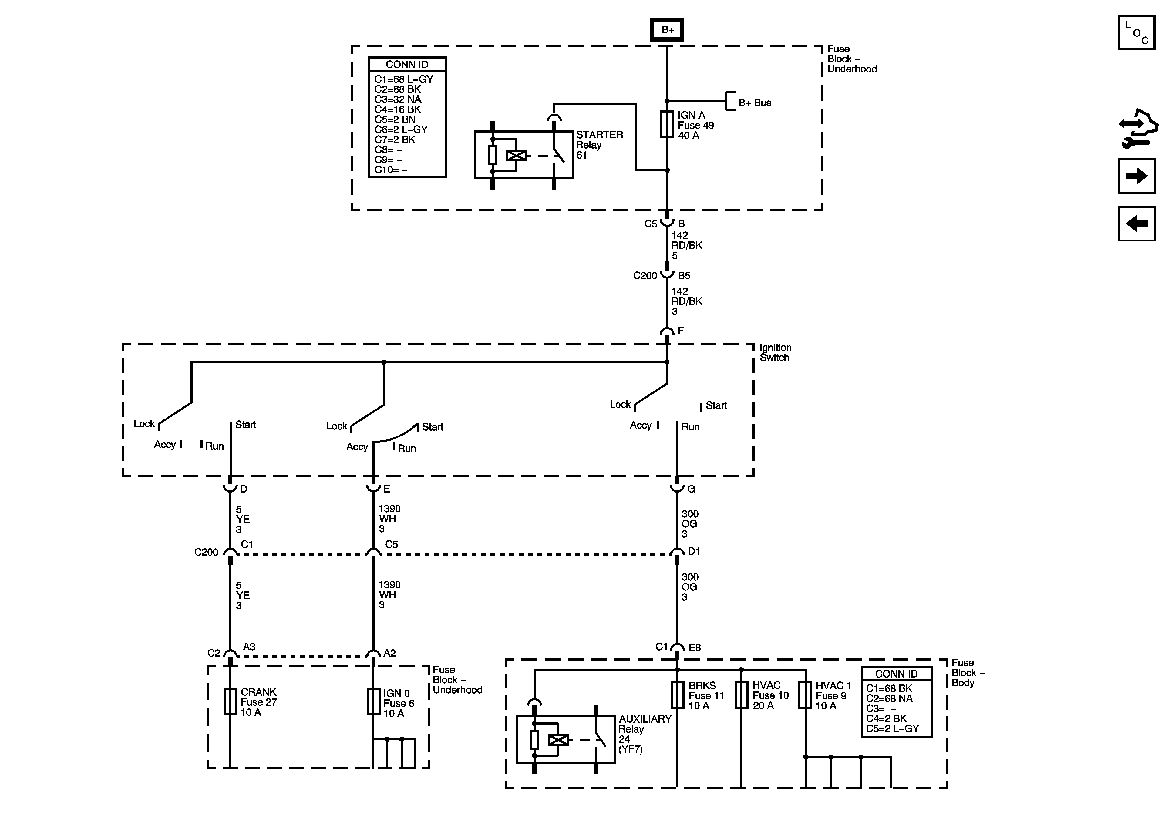
🢒 Ignition Switch - ACCY/RUN, RUN/START Bus Bars and IGN A Fuse
Ignition Switch - ACCY/RUN, RUN/START Bus Bars and IGN A Fuse
Ignition Switch - ACCY/RUN/START, RUN, START Bus Bars and IGN A Fuse
Master Electrical Component List
Control Module References
BTSI, BTSI/BU, O2A, O2B, PCM IGN 1, SPARE and TRLR BU Fuses
Ignition Switch - ACCY/RUN, RUN/START Bus Bars and IGN B Fuse
B+ Bus - Underhood Fuse Block
B+ Bus - Underhood Fuse Block