GM Service Manual Online
For 1990-2009 cars only

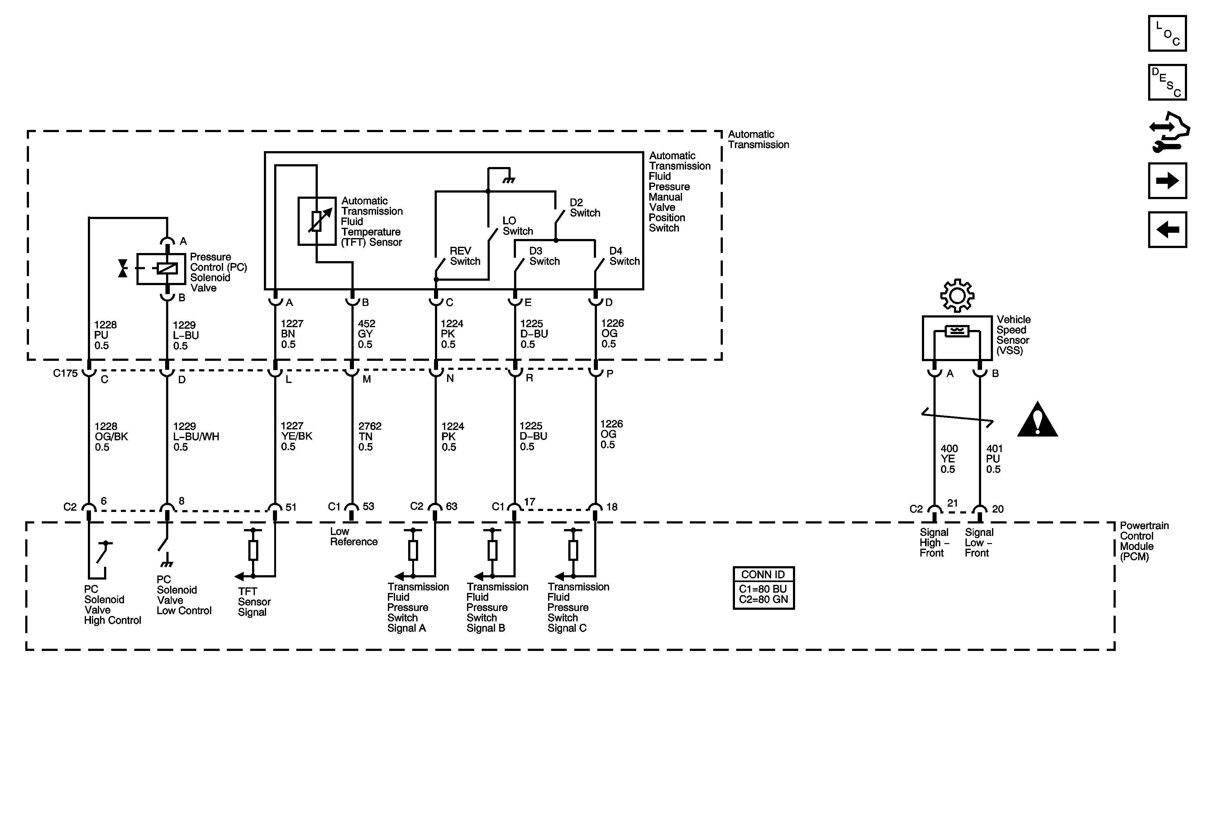
Pressure Controls, Temperature and VSS

Pressure Controls, Temperature, and VSS


Object Number: 1753680  Size: FS
Master Electrical Component List
Electronic Component Description
Control Module References
PNP Switch, Tow/Haul Switch, Serial Data and Indicator
Shift Controls and Stop Lamp Switch
Automatic Transmission Schematic Icons