GM Service Manual Online
For 1990-2009 cars only
Makes
🢒
Chevrolet
🢒
2005
🢒
Malibu
🢒 Engine Data Sensors - Electronic Throttle Controls
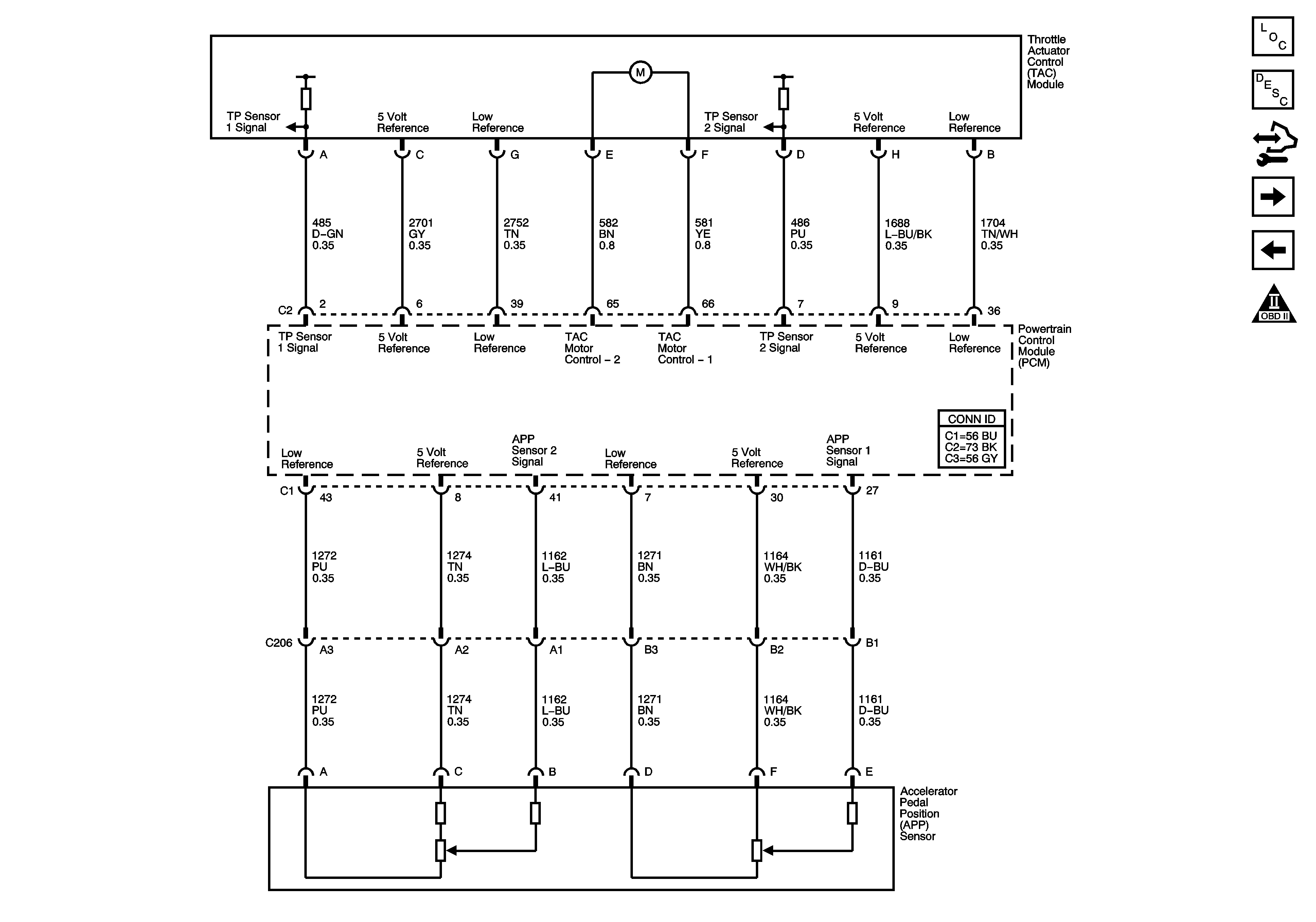
Engine Data Sensors - Electronic Throttle Controls
Engine Data Sensors - Electronic Throttle Controls
Master Electrical Component List
Throttle Actuator Control (TAC) System Description
Control Module References
Ignition Controls - Ignition System
Engine Data Sensors - Oxygen Sensors
OBD II Symbol Description Notice