GM Service Manual Online
For 1990-2009 cars only
Makes
🢒
Chevrolet
🢒
2007
🢒
Optra
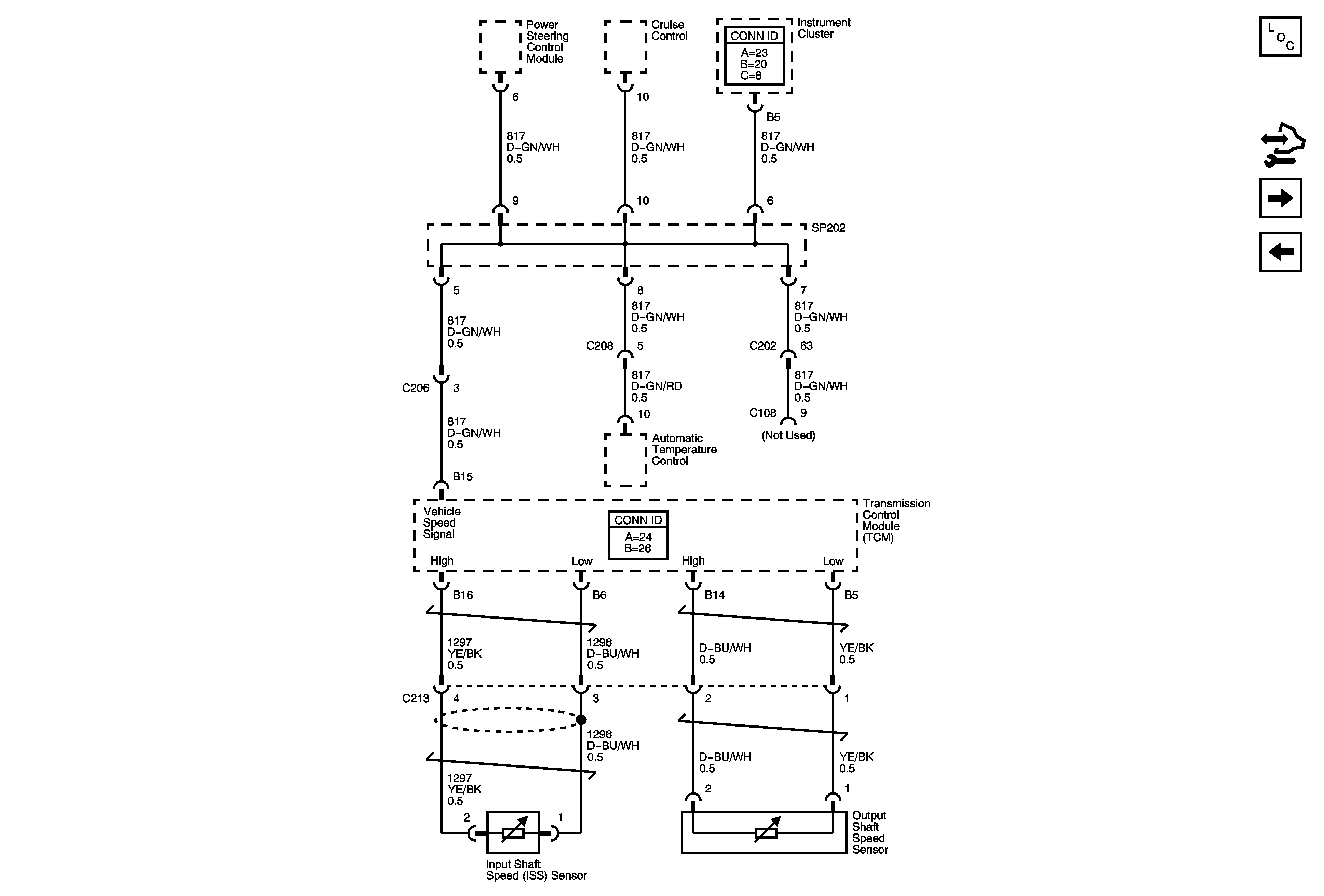
🢒 Input Shaft, Output Shaft, Vehicle Speed Sensors
Input Shaft, Output Shaft, Vehicle Speed Sensors
Input Shaft, Output Shaft, Vehicle Speed Sensors
Master Electrical Component List
Control Module References
Park/Neutral Position (PNP) Switch
Transmission Solenoids, Stoplamp Switch