GM Service Manual Online
For 1990-2009 cars only
Makes
🢒
Chevrolet
🢒
2008
🢒
Optra
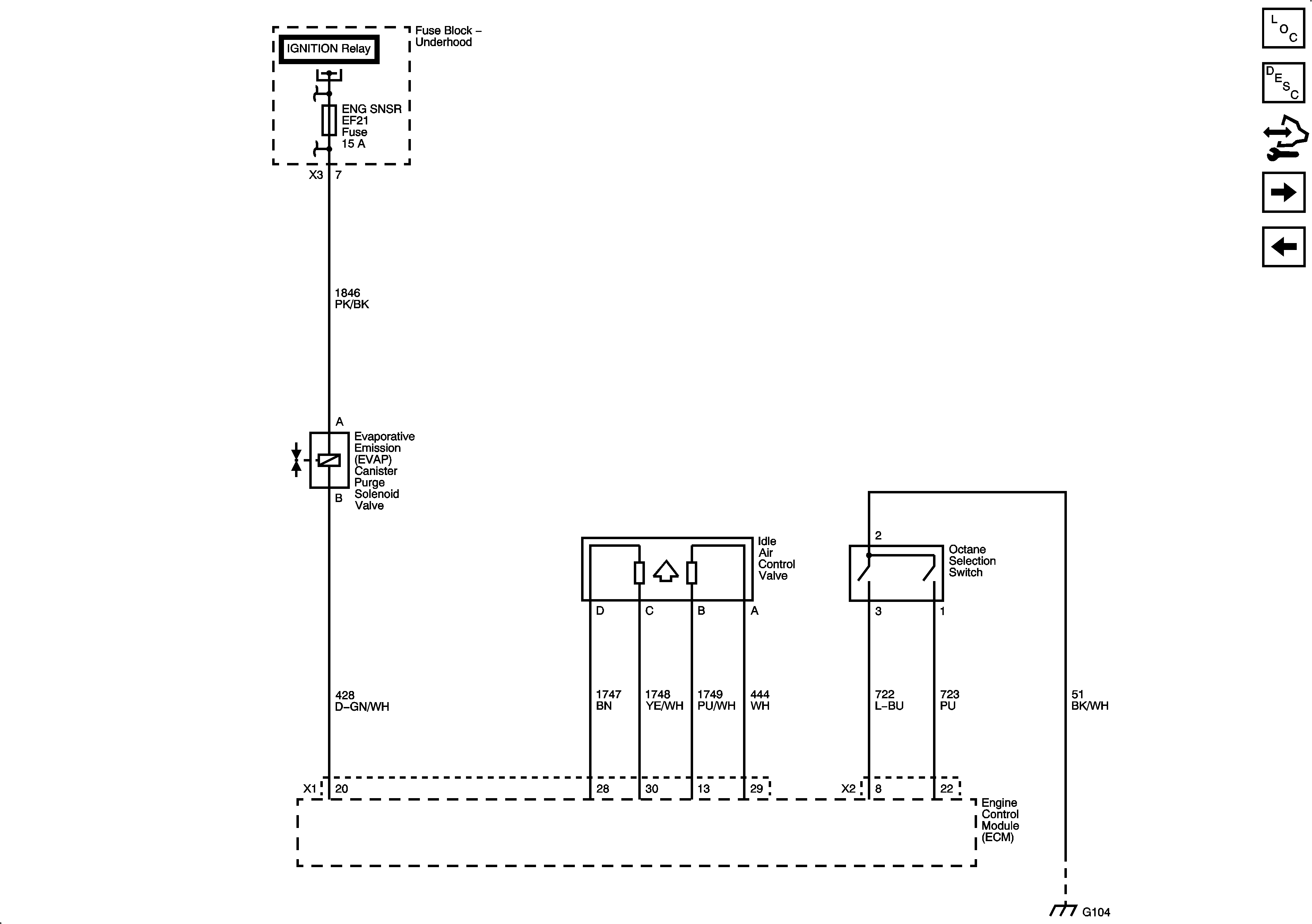
🢒 EVAP, IAC, Octane Selection Switch
EVAP, IAC, Octane Selection Switch
EVAP, IAC, Octane Selection Switch
Master Electrical Component List
Evaporative Emission Control System Description
Control Module References
Controlled/Monitored Subsystem References
Fuel Pump and Fuel Injectors
Fuse Block - Underhood B+ Bus, 1 of 3
G104