GM Service Manual Online
For 1990-2009 cars only
Makes
🢒
Chevrolet
🢒
2000
🢒
S10 Pickup - 2WD
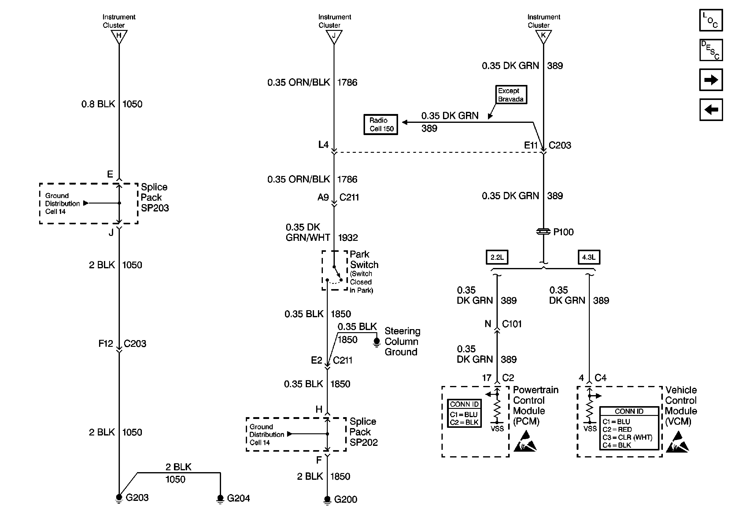
🢒 Cell 81: G203, G204, Park Switch and PCM/VCM
Cell 81: G203, G204, Park Switch and PCM/VCM
Cell 81: G203, G204, Park Switch and PCM/VCM
Cell 81: ILLUM, CLSTR and GAUGES Fuses and Instrument Cluster
Cell 81: ILLUM, CLSTR and GAUGES Fuses and Instrument Cluster
Cell 81: ILLUM, CLSTR and GAUGES Fuses and Instrument Cluster
Instrument Cluster Components
Instrument Cluster Circuit Description
Cell 81: G105 and PCM/VCM
Cell 81: ILLUM, CLSTR and GAUGES Fuses and Instrument Cluster
Cell 14: G203 and G204 (Pickup)
Cell 150: Power and Ground (Chevy/GMC)
Cell 14: G200, G201 and G207 (Pickup)
Powertrain Control Module Connector End Views
Handling ESD Sensitive Parts Notice
VCM Connector End Views
Handling ESD Sensitive Parts Notice