GM Service Manual Online
For 1990-2009 cars only
Makes
🢒
Chevrolet
🢒
2000
🢒
S10 Pickup - 2WD
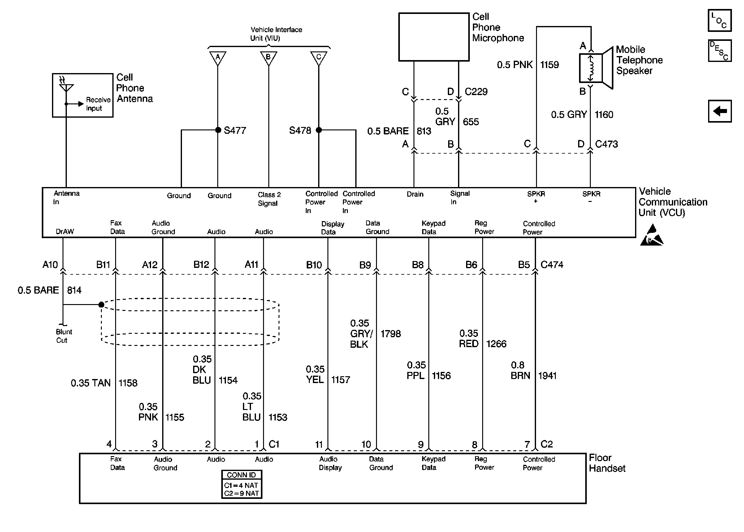
🢒 Cell 154: Vehicle Communication Unit (VCU) and Floor Handset
Cell 154: Vehicle Communication Unit (VCU) and Floor Handset
Cell 154: Vehicle Communication Unit (VCU) and Floor Handset
Cell 154: Vehicle Interface Unit (VIU)
Cellular Communication Components
OnStar Circuit Description
Cell 154: Vehicle Interface Unit (VIU)
Handling ESD Sensitive Parts Notice