GM Service Manual Online
For 1990-2009 cars only
Makes
🢒
Chevrolet
🢒
2000
🢒
S10 Pickup - 2WD
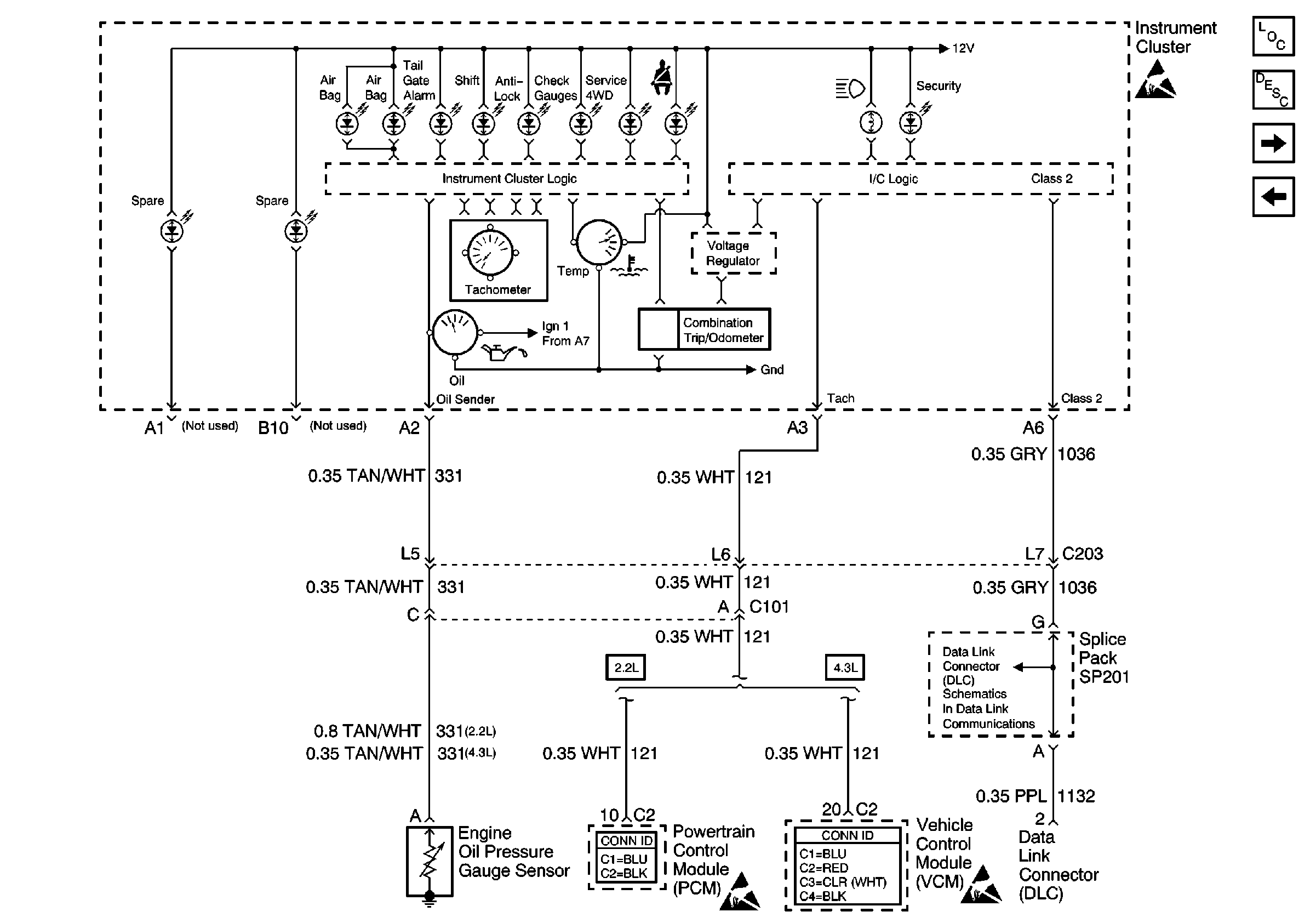
🢒 Data Link Connector (DLC), PCM/VCM, Engine Oil Pressure Gauge Sensor
Data Link Connector (DLC), PCM/VCM, Engine Oil Pressure Gauge Sensor
Data Link Connector (DLC), PCM/VCM, Engine Oil Pressure Gauge Sensor
Instrument Cluster Components
Instrument Cluster Description
Ground
Power
Handling ESD Sensitive Parts Notice
Powertrain Control Module Connector End Views
Handling ESD Sensitive Parts Notice
VCM Connector End Views
Handling ESD Sensitive Parts Notice
SP201 (2.2L)