GM Service Manual Online
For 1990-2009 cars only
Makes
🢒
Chevrolet
🢒
2007
🢒
Silverado - 2WD
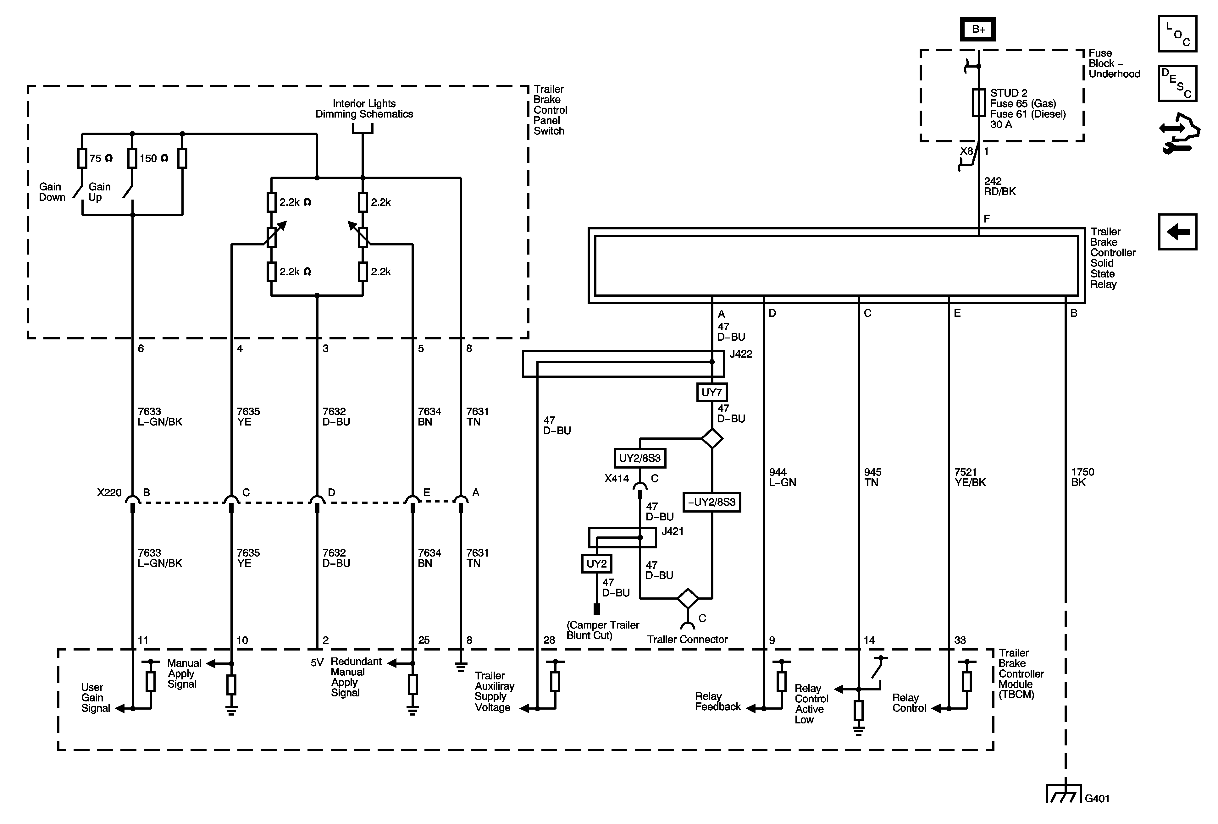
🢒 Trailer Brake Controls
Trailer Brake Controls
Trailer Brake Controls
Master Electrical Component List
Trailer Brake Controls Description and Operation
Control Module References
Module Power and Ground
Dimming Control and LED Dimming 1 of 3
ABS-1, ABS-2, HEAVY DUTY ABS, HVAC BLWR, STUD 1, STUD 2 and WSW/HTR Fuses
G401 and G403